海淀区·国风上观

混搭三居室180㎡

案例说明

设计师简介

张林
高级主任

京北二处

12年设计经验
37套案例
12216次浏览
168人预约
约TA

客厅

这是一间现代风格的客厅,整体以简约大气的设计为主,色调沉稳且富有质感。客厅中央摆放着黑色的皮质沙发,搭配几个样式简洁的抱枕,尽显时尚与舒适。旁边的黑色休闲椅,造型独特,为空间增添了设计感。中间的圆形茶几,简洁大方,方便放置物品。 墙面装饰有大幅的艺术画作和大理石纹理的装饰板,提升了空间的艺术氛围与格调。一侧的小边几上摆放着花瓶与烛台,增添了自然生机与温馨感。

餐厅

餐厅区域,圆形餐桌搭配造型各异的椅子,既具设计感又能满足不同使用需求。上方悬挂着层次分明的吊灯,为用餐提供充足且富有氛围的照明。餐桌上摆放着花瓶与花枝,增添了自然生机与雅致感。厨房部分,以白色橱柜为主,搭配深色台面,简洁大方,收纳与操作空间规划合理。旁边的深色储物柜,兼具展示与收纳功能,柜上摆放的物品丰富了空间层次。

卧室

这是一间现代风格的卧室,整体以柔和的暖色调为主,营造出温馨舒适的氛围。卧室中央摆放着一张造型简约大气的床,搭配多个质感柔软的抱枕,床尾的软包床凳,既美观又能提供临时坐卧的便利。床两侧是白色的床头柜,上面摆放着灯具、水杯等物品,满足日常使用需求。一侧有嵌入式的大衣柜,柜门部分采用木质与布艺结合的设计,兼具美观与收纳功能,打开的柜门内可看到挂放的衣物,收纳空间充足。

卧室

这是一间现代风格的卧室,整体以柔和的暖色调为主,营造出温馨舒适的氛围。 卧室中央摆放着一张简约大气的床,搭配多个质感柔软的抱枕,床尾的设计简洁利落。床两侧是小巧的床头柜,左侧床头柜上放置着一盏造型别致的台灯,右侧则有一些小物件,满足日常使用需求。 一侧是大面积的嵌入式衣柜,柜门采用简洁的设计,提供了充足的收纳空间,方便整理衣物等物品。靠近窗户的位置,悬挂着双层窗帘。

儿童房

这是一间儿童房,整体采用温暖柔和的色调,营造出舒适且充满童趣的氛围。 房间内,床的设计简洁,上面摆放着多个可爱的毛绒玩具,增添了温馨感。床旁的墙面挂有一幅装饰画,画中是与书籍相关的元素,契合儿童房的学习氛围。 靠窗区域设置了书桌与书架,书架上整齐摆放着书籍和一些小摆件,书桌旁配有一把蓝色的椅子,为孩子提供了专属的学习空间。窗户边的飘窗,铺上软垫,放上几个抱枕,成为一处惬意的休闲小角落。

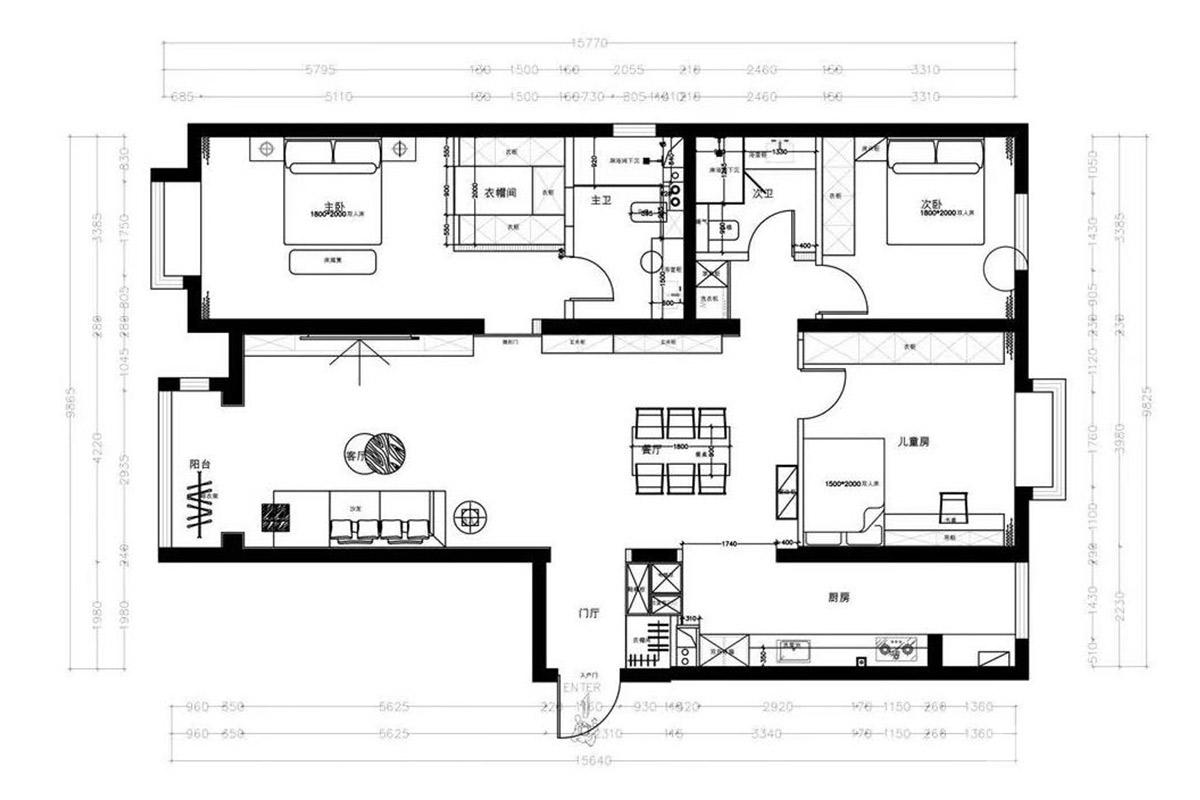
户型图

这份户型平面图呈现出较为规整且功能分区明确的布局。从居住空间来看,有主卧、次卧和儿童房,能满足多人口家庭的居住需求。主卧配备衣帽间与主卫,提升了居住的私密性与便利性,为主人提供专属的收纳和洗漱空间。次卧和儿童房也有合理的空间规划,可根据家庭实际情况用作卧室或书房等。公共区域方面,客厅、餐厅相连,形成开阔的活动空间,适合家庭聚会或日常休闲娱乐。
查看更多

张林的其他案例