设计师简介
钛马赫别墅事务所
12年设计经验
37套案例
709572次浏览
261人预约
中国室内高级建筑师 国家注册高级室内设计师
中国建筑装饰协会会员 私人豪宅定制设计师 别墅.会所.酒店空间结构规划师
进修于中央工艺美术学院、台湾亚洲大学
进修于意大利米兰理工学院、布雷拉美术学院.日本东京大学
「获得奖项」
2009年-2010年荣获“ 全国美化家居大奖赛” 优秀设计奖
2014年荣获“ 建筑装饰协会美化家居设计大赛” 优秀设计奖
2015年荣获“ 上海金外滩国际设计大赛” 设计奖
2016年荣获Boloni.Tellmach最强设计空间规划奖
2017年荣获《创新中国》别墅类作品金奖、全国十佳别墅设计师
2018年荣获第八届筑巢奖别墅空间优秀奖
2019年担任第九届筑巢奖特邀评委
2019年第九届筑巢奖别墅空间奖
IFI设计源·世界观2019年度设计公益精英人物
2020年美国MUSE设计金奖
2021法国巴黎PARISDESIGN AWARDS【GOLD金奖】
作品刊登在《瑞丽家居》《人民日报》等设计杂志,
连续两年代表中国设计师在意大利接受人民日报和中央电视台采访
中国广州塔国际项目/远洋lavie万平住宅项目/越南私人住宅/新加坡私人住宅/北京香江花园别墅/北京新新家园别墅/北京碧水庄园别墅/北京格拉斯别墅/北京霄云路8号/上海金融总部中心项目等
展开 ▾
客厅
首层作为家庭的核心社交与活动区域,总面积约60㎡,涵盖入户玄关、客厅、餐厅、厨房及南向庭院,采用“客餐厨一体化”设计,打通空间隔断,形成开阔通透的公共动线。入户处设置简约现代风格玄关,左侧定制通顶收纳柜(深度0.6m),用于收纳鞋履、外套及杂物,右侧预留端景台位置,摆放艺术摆件或绿植,营造简洁有序的入户仪式感。
客厅
客厅中央摆放模块化皮艺沙发,搭配极简造型的木质茶几,背景墙采用浅灰色乳胶漆搭配嵌入式收纳柜,兼具装饰性与收纳功能。
卧室
顶面重点采用现代风格异形设计,以“功能与美学共生”为核心,摒弃传统平顶的单调感,结合卧室空间尺度打造多元造型。设计选用石膏板作为核心材质,通过流畅的弧形线条、非对称几何切面或局部悬浮造型勾勒层次,避免繁复装饰,契合现代简约基调;同时融入无主灯设计理念,在异形顶面的转折处、凹陷区域嵌入线性灯带或隐藏式射灯,光线漫射而下柔和不刺眼,既解决基础照明需求,又通过光影变化强化层次感。
其他
楼梯采用现代感十足的玻璃堆叠设计,以多层钢化玻璃错落堆叠形成护栏主体,搭配实木踏步与极简金属扶手,既利用玻璃的通透质感减少空间遮挡,让首层公共区视野更显开阔,又通过堆叠造型增添设计层次感,成为衔接上下空间的视觉亮点。
其他
电梯内部采用浅米色防划面板,搭配嵌入式暖光照明,营造温馨舒适的乘坐体验,同时电梯运行联动全屋智能系统,可实现首层、二层、三层及地下室的一键直达,提升居住便捷性。
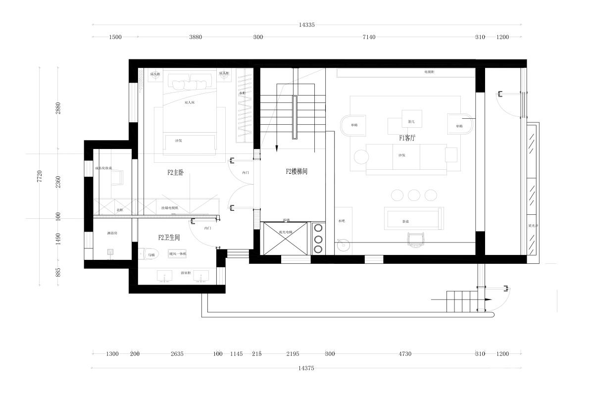
户型图
联排住宅的核心优势在于垂直空间的可塑性,本次设计以“分层递进、动线流畅”为布局原则,结合现代家庭生活场景,规划出“首层公共区-上层私密区-地下功能区-庭院拓展区”四大核心板块,各区域功能独立又相互衔接,充分满足家庭多元生活需求。