





公区以奶白 + 浅木为基底,客餐厅用弧形线条消弭棱角,圆餐桌、软包沙发裹着低饱和蓝棕,把烟火气揉进柔和肌理;隐形柜与嵌入式收纳藏起杂乱,只留光影在墙面漾开松弛感。 卧室延续暖调基底,人字拼木地板衬着柔棕床品,壁龛灯串裹着器物的温润;次卧融入轻复古细节,花漾床品、石膏线与自然肌理碰撞,让每处空间都有 “不刻意的精致”。 卫浴以同色系肌理砖铺陈,玻璃隔断与壁龛藏起实用,让沐浴也成了浸在暖调里的疗愈时刻 —— 整个空间用 “柔” 作骨,以 “简” 为衣,把生活的松弛感藏进每一寸温柔里。
更多客厅灵感
奶白基底揉着胡桃木的温润,人字拼地板漾开柔和肌理,软包沙发裹着蓬松质感,连吊扇灯都藏着实用与温柔的平衡。隐形柜收走杂乱,只留墙面的呼吸感;低饱和绿抽屉、弧形落地灯缀出轻复古细节,肌理地毯裹着光影,让每一寸空间都浸着不刻意的松弛 —— 窝在这里,连日常的发呆都成了裹在柔暖里的疗愈时刻。
更多餐厅灵感
奶白基底衬着胡桃木色的温润,低饱和蓝绒餐椅撞出精致层次感,弧形吊灯洒下柔暖光线。餐柜藏着收纳巧思,一边衔接厨电区让备餐动线流畅,一边预留鞋物收纳适配入户需求,肌理面板与隐形设计收走杂乱。自然光漫进来,与器物的质感交织,让每一次用餐都浸在松弛又雅致的氛围里,把烟火气藏进不刻意的精致中。
更多卧室灵感
这个卧室是 “揉进轻复古里的奶油松弛场”:奶白基底裹着石膏线的柔缓肌理,人字拼木地板漾开温润质感;黑棕床架衬着蝶纹床品,把轻复古的雅致藏进软绵里。 窗边书桌借自然光织就休憩角落,壁龛灯串裹着器物的暖调,连柜门的细柄都透着不张扬的精致 —— 既用奶油色裹住松弛睡眠,又以复古细节缀满生活的细碎诗意,每一处都像被温柔浸透过的日常。
更多卧室灵感
奶白基底裹着人字拼地板的温润,整面隐形柜收走杂乱,只留墙面的呼吸感。柔棕床品叠着肌理纹理,窗边单椅借自然光织就休憩角落,壁龛灯串裹着器物的暖调,连落地灯的光晕都揉得软绵。光影漫过床沿,把窗外的绿意也浸成温柔的底色 —— 躺在这里,连睡眠都成了裹在轻暖里的疗愈,每一寸空间都藏着 “不费力的舒适”。
更多卫生间灵感
以同色系肌理砖铺陈,低饱和暖棕调营造温润松弛的氛围,弱化卫浴空间的冷硬感; 功能布局:采用干湿分区设计,壁龛整合置物功能,悬空马桶提升空间整洁度与清洁便利性;局部绿植点缀柔化空间,嵌入式灯光补充氛围,实现实用与美学的平衡。 该设计将卫浴的功能性与诧寂风的松弛感结合,让沐浴成为兼具实用与疗愈的日常体验。
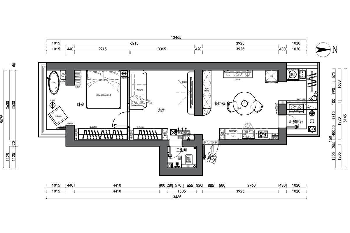
更多户型图灵感
以LDK一体化打通客餐厨,让生活动线流畅如行云流水,圆桌餐厅+开放式厨房,聚会烹饪都能互动满分~ 主卧连接休憩沙发,私密区也能拥有小客厅的松弛感;浴室配浴缸+落地灯,把泡澡变成治愈仪式;隐形收纳柜藏满细节,连扫地机器人都有专属“家”。