×
北京
手机博洛尼 售前:400-6868-692 售后:400-666-3706
所在位置/首页优秀案例/望京西园三区
点击浏览下一张
案例信息
  • 楼盘名称
  • 案例风格
  • 望京西园三区
  • 中古
  • 案例户型
  • 服务店面
  • 案例面积
  • 设计师
  • 220㎡
  • 王跃杰
案例说明

本设计以 “暖调轻舒,分区适配” 为核心,采用浅暖基底 + 木作肌理的主调,营造温馨松弛的居家氛围。客餐厅通过嵌入式收纳、柔光灯带与艺术软装,平衡美观与互动性;主卧 / 次卧以暖棕软装 + 柔和灯光,打造静谧休憩场域;儿童房融入活泼色彩与童趣摆件,适配成长场景;餐厨区用藤编元素 + 通透布局,强化烹饪与用餐的烟火互动。整体空间连贯统一,既保风格温润,又适配休闲、休憩、亲子等多元日常需求。

客厅
更多客厅灵感

以浅暖墙作基底,木作肌理(茶几、收纳柜)奠定怀旧调性,嵌入式收纳柜带复古展示格,复古装饰画、布艺沙发 + 几何地毯呼应风格细节,洗烘一体机藏于空间兼顾实用,柔光灯带晕染温润松弛氛围,平衡复古质感与日常需求。

客厅
更多客厅灵感

以浅暖墙作基底,木作茶几、复古纹理大理石背景墙奠定怀旧调性,嵌入式展示格搭配复古器皿呼应风格,壁炉装饰强化中古风质感,几何地毯柔化空间,旁连厨房动线顺畅,柔光灯带晕染温润氛围,平衡复古质感与日常实用。

餐厅
更多餐厅灵感

浅暖基底搭配木作餐桌、藤编椅,奠定怀旧调性,复古吊灯呼应风格细节。嵌入式收纳(玻璃格)兼顾展示与储物,与厨房动线顺畅衔接,柔光灯带晕染温润氛围,平衡复古质感与烹饪用餐的日常实用。

卧室
更多卧室灵感

以浅暖墙作基底,木作床头柜、暖棕床具奠定怀旧调性,复古装饰画点缀细节。定制衣柜整合收纳需求,柔光灯带晕染温润氛围,几何床品柔化空间,平衡复古质感与休憩起居的日常实用。

卧室
更多卧室灵感

浅暖墙作基底,木作书桌延续复古调性,撞色床头(蓝 + 暖黄)、复古卡通装饰画融入青春感,悬浮书桌 + 收纳架兼顾学习与储物,柔光灯带晕染温润氛围,平衡中古风质感与青少年起居的活泼实用。

卧室
更多卧室灵感

浅暖墙作基底,木作桌椅延续复古调性,复古卡通装饰画、童趣玩偶(小熊摆件)融入童真感,悬浮书桌 + 收纳架兼顾学习与储物,柔光灯带晕染温润氛围,平衡中古风质感与儿童起居的活泼实用。

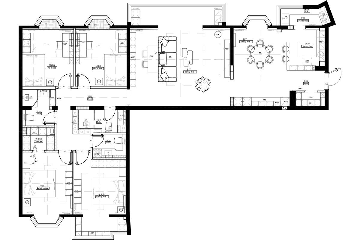
户型图
更多户型图灵感

客餐厅一体联动,拓展互动场域;多卧室(含主卧、次卧)配独立卫浴,保障起居隐私;书房、厨房等功能区动线合理,收纳空间充足。整体适配中古风调性,平衡互动与私密,契合大家庭日常起居需求。

本案设计师

王跃杰

特级主任设计师

  1. 168次
  2. 预约数
  1. 15年
  2. 从业年限
  1. 44套
  2. 作品案例

预约TA

中古风格的其它案例
更多

【案例】【康乐里小区】中古 二居室 103㎡

张洋 张洋 6 3796浏览 这样装修多少钱?

【案例】【枫丹丽舍】中古 三居室 160㎡

吕宏音 吕宏音 6 2154浏览 这样装修多少钱?

【案例】【棕榈泉国际公寓】中古 三居室 135㎡

渠海东 渠海东 9 3349浏览 这样装修多少钱?

四居室的其它案例
更多

【案例】【金盛家园】古典 四居室 155㎡

霍禹晨 霍禹晨 5 3624844浏览 这样装修多少钱?

【案例】【西钓鱼台庄园】古典 四居室 141㎡

霍伯骞 霍伯骞 8 2497浏览 这样装修多少钱?

【案例】【潘庄一号院】古典 四居室 160㎡

博洛尼 博洛尼 6 3186276浏览 这样装修多少钱?