





融奥园自然肌理,塑现代生活本真。以简约线条勾勒空间轮廓,用克制色彩铺陈生活底色,让每一处设计都贴合日常需求,每一寸光影都藏着舒适温度。从布局规划到细节打磨,让高级感与实用性相融,让房子真正成为承载生活的温柔容器。不负信任,终得圆满,业主的满意,是设计最好的答卷。
更多客厅灵感
高挑空的双层客厅,以奶油米白为基底,融合了复古与自然元素。大面积落地窗引入充沛自然光,搭配轻盈的白纱帘,让空间通透又柔和。 家具与软装:深绿色复古丝绒沙发搭配木质雕花扶手,与同风格单人椅形成呼应;中央是深色实木茶几,自然纹理的编织地毯奠定了空间的质朴基调。
更多客厅灵感
深绿色复古丝绒沙发搭配木质雕花扶手,与同风格单人椅形成呼应;中央是深色实木茶几,自然纹理的编织地毯奠定了空间的质朴基调。 贝壳片造型的水晶吊灯是视觉中心,与墙面的线性壁灯共同营造出层次光影;复古落地钟与楼梯处的白色栏杆,为空间注入了经典的仪式感。
更多卧室灵感
主卧延续了全屋的温柔调性,以奶油色与木色为主,营造出松弛的睡眠氛围。 • 核心布局:软包床体搭配浅色系床品,随意搭放的咖色毛毯增添了慵懒感;床头的木质半高墙与悬浮柜,既划分了空间,又保证了通透感。
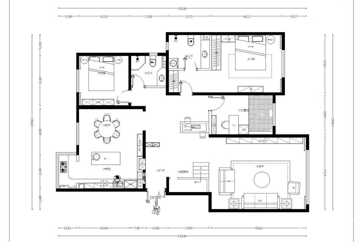
更多户型图灵感
左侧是开放式餐厨区,圆形餐桌与中岛式操作台让空间互动性强;右侧是大面宽客厅,采光充足,适合家庭聚会。 左上与右上各有一间卧室,均配有独立卫生间,私密性强;中间的儿童房紧邻公卫,动线合理。 餐厨一体设计提升了空间利用率,卧室均带独立卫浴,兼顾了隐私与便利。
更多户型图灵感
超大主卧带独立卫浴和步入式衣帽间,形成完整的“睡眠-洗漱-更衣”流线;主卧还连通南向露台,可作为休闲观景区。 楼梯上来是一个开阔的休闲区,可作为书房或家庭厅,与主卧形成动静分区;整体布局强调主人的专属感与舒适度。