





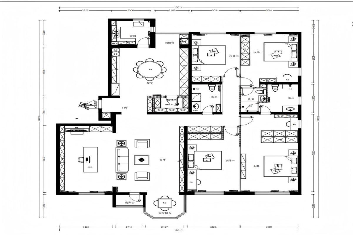
本方案以动静分区为核心,打造四室三卫格局,通过双阳台、套房主卧与独立收纳系统,实现功能完备、动线流畅、采光通透的多元适配居住空间。
更多餐厅灵感
本餐厨空间以现代轻奢为基调,融合新中式的雅致底蕴。整体采用米白与深棕的配色,搭配大理石餐桌与实木家具,营造出温润而精致的氛围。通顶定制柜与玻璃展示柜结合,兼顾储物与展示功能,中央圆形餐桌强化了家人围坐的仪式感,线性灯带与吊灯的层次照明,让空间在实用中透出东方美学的雅致。
更多卧室灵感
本卧室设计以现代简约为基调,融合东方美学的雅致意境,打造兼具舒适感与格调的休憩空间。整体色调以米白、浅灰为基底,搭配胡桃木色地板与暖棕床品,营造出温润柔和的氛围,弱化了空间的边界感,让视觉更显开阔。
更多卧室灵感
本卧室以现代简约为基底,融合东方美学,通过米白与胡桃木的温润配色,打造兼具休憩与办公功能的空间。整面通顶衣柜与书桌吊柜最大化利用储物,床头水墨挂画与纸灯营造雅致意境,层次照明与自然材质交织,实现舒适与格调的统一。