
五居室因为其空间大且多,所以除去主卧、次卧之外,可以根据家庭情况设为儿童房、老人房、书房、家庭室、保姆间等。五居室也因为其大,在装修上有很多注意事项,想获取更多设计师信息,欢迎关注我们。也可以点击阅读原文,获取跟设计师一对一免费咨询的机会。

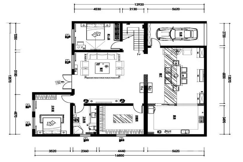
楼盘名称:西山壹号院
户型面积:308┫
设计师:董永
欧式风格采用白色、淡色为主,以淡色的色调对比跳跃的沙发靠垫颜色。家具主要特色是强调力度、变化和动感,沙发华丽的布面与精致的雕刻相互配合。门的设计有突出的凹凸感,又有优美的弧线,两种造型相映成趣,风情万种。






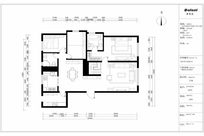
楼盘名称:观湖国际
户型面积:220┫
设计师:路刚
客户是一对中年夫妻,男主人有很多朋友,经常会来家里做客,希望家里奢华、大气、有品质。女主人偏爱浅色调,白色米色为主,喜欢法式的细节和曲线。









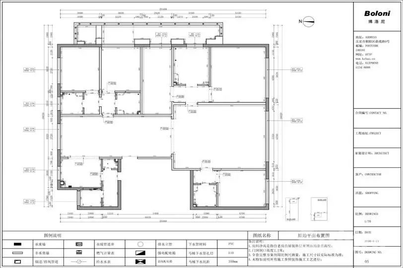
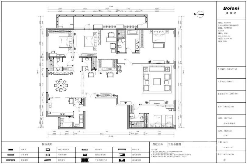
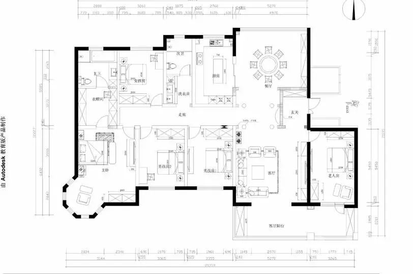
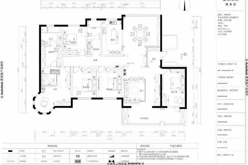
楼盘名称:红玺台
户型面积:400┫
设计师:韩宇
现代简约风格非常讲究材料的质地和室内空间的通透哲学。一般室内墙地面及顶棚和家具陈设,乃至灯具器皿等均以简洁的造型、纯洁的质地、精细的工艺为其特征。尽可能不用装饰和取消多余的东西,任何复杂的设计,没有实用价值的特殊部件及任何装饰都会增加建筑造价,强调形式应更多地服务于功能。





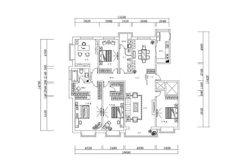
楼盘名称:亚运新新家园
户型面积:400┫
设计师:王日坤
业主为事业成功人士,本案以“韵”为题,在整体空间中和谐基调上彰显出浪漫的气质,软装与硬装上的中式元素的运用,成就了本案的精髓与灵魂,设计中不拘泥于单一的设计风格,力图在奢华优雅中呈现出中式的文化气息,追求深沉里显露尊贵,典雅中浸透奢华的设计表现。







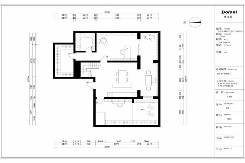
楼盘名称:亦庄金茂悦
户型面积:225┫
设计师:任雪梅
新中式风格诞生于中国传统文化复兴的新时期,在中国文化风靡全球的现今时代,中式元素与现代材质的巧妙兼柔,明清家具、窗棂、布艺床品相互辉映,再现了移步变景的精妙小品。中式风格适合人群:性格沉稳、喜欢中国传统文化的人。






楼盘名称:怡景尚都
户型面积:236┫
设计师:黎敏
此户型装修风格为低调奢华欧式风格,设计中打破了传统欧式古典设计的观念,将皇家古典的部分装饰元素融入设计,使整个空间高贵典雅,客厅大气,沉稳,采用一些暗花壁纸,硬包等高档材质,体现业主的内蕴品性。






楼盘名称:万城华府
户型面积:380┫
设计师:张宇恒
简约不等于简单,它是经过深思熟虑和创新得出的设计和思路的延展,不是简单的“堆砌”和平淡的“摆放”,不是粗浅的理解为“直白”。比如此次设计的卧室床头背景墙,简约到只做一个硬包装,但是它独具匠心,既美观又实用。








楼盘名称:朗琴园
户型面积:230┫
设计师:郭镭
家是心灵的港湾,随着人们在旅游中感受到简约的魅力。当疲惫的身心对家的依恋越发强烈,人们想要的是轻松、自由的环境,“现代简约风格”自然就成为家居设计的一种风尚。注重大小色块间的组合,地域性的后期配饰融入设计风格之中。





楼盘名称:格拉斯小镇
户型面积:1000┫
设计师:章锦蓉
业主为外籍人员,长期在国外生活,在设计方面主要以客户个人喜好为主,采用欧式古典轻法式奢华风格,注重装饰效果,运用了大量的装饰图案、大理石、护墙板等奢侈表现手法。






楼盘名称:棕榈泉
户型面积:260┫
设计师:徐霜
线条有的柔美雅致,有的遒劲而富于节奏感,整个立体形式都与有条不紊的、有节奏的曲线融为一体。尽可能不用装饰和取消多余的东西,认为任何复杂的设计,没有实用价值的特殊部件及装饰都会增加建筑造价,强调形式应更多地服务于功能。




想获取更多家装信息
请关注我们
点击阅读原文
给自己最好的选择
分享: