






在喧嚣的都市生活中,我们渴望一片宁静与纯粹。轻奢风,一种低调的奢华,正悄然成为现代家居的新宠。今天,就让我们一起探索轻奢风的独特魅力,感受它如何为我们的生活增添一抹不凡的色彩。
更多客厅灵感
选用高品质的大理石、金属、玻璃等材质,通过精致的工艺处理,让材质本身的光泽和质感得以充分展现,营造出一种低调而奢华的氛围。在设计中注重细节处理,如家具的雕刻、灯具的造型、墙面的装饰等,都经过精心设计和挑选,展现出轻奢风格的精致感。
更多卧室灵感
在快节奏的生活中,每个人都渴望拥有一片属于自己的安静空间。想象一下,走进一个由柔和色彩和简洁线条构成的现代风格卧室。每一处设计,都不仅追求视觉的美感,更考虑到了实用性与舒适度。极简的床头柜、舒适的床铺、恰到好处的光线设计……每一个细节,都在无声地讲述着对品质生活的追求。
更多儿童房灵感
一间小小的房间,反映人们的心灵。世界热爱生活的人会把它装修成喜欢的样子,如云轻柔的奶油白、舒缓清新的莫兰迪绿,治愈又很温柔的颜色默契配比,带来治愈人心的魔力让空间顿生优雅质感,舒适自然
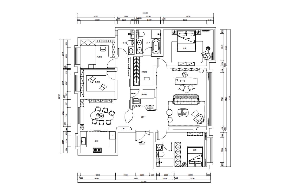
更多户型图灵感
客厅选的布艺沙发,弧线优雅的通感。让整个大横厅散发出了内敛、奢华的氛围。背景墙做储物展示的柜子,即是装饰又能储物。主卧兼具了休憩、休闲化妆的功能。L型大飘窗.视野开阔。在午后,男女主人可以坐在窗前喝上一杯咖啡,欣赏美丽的风景。