×
北京
手机博洛尼 售前:400-6868-692 售后:400-666-3706
所在位置/首页优秀案例/观承别墅
点击浏览下一张
案例信息
  • 楼盘名称
  • 案例风格
  • 观承别墅
  • 轻奢
  • 案例户型
  • 服务店面
  • 案例面积
  • 设计师
  • 350㎡
  • 周永超
案例说明

该户型呈规整的矩形,整体布局紧凑有序,采用动静分区设计理念,将休息空间与活动空间合理分隔,提升居住舒适度与私密性。

客厅
更多客厅灵感

以浅灰色沙发为中心,搭配圆形地毯,形成视觉焦点与舒适的围合交流空间。旁边黑色单人椅与金属脚架,增添时尚感与个性。两组茶几高低错落,材质对比丰富视觉层次。

餐厅
更多餐厅灵感

本餐厅设计采用现代简约风格,以简洁流畅的线条、淡雅中性的色调和精致的软装搭配,营造出时尚大气、舒适温馨且富有质感的用餐氛围

卧室
更多卧室灵感

这间卧室呈现出优雅精致的现代轻奢风格,通过简洁线条、柔和色彩与精致软装的搭配,营造出舒适且富有格调的睡眠空间。

其他
更多其他灵感

此茶室设计融合现代与中式元素,营造出简约雅致、宁静舒适的氛围,传递出东方禅意与文化韵味。一侧设置长榻,搭配柔软抱枕,兼具坐卧功能,可在此放松休憩、静享茶香。

其他
更多其他灵感

此影音室采用现代简约风格,以简洁的线条、低调的色彩和精致的软装,营造出舒适、静谧且富有格调的观影空间。

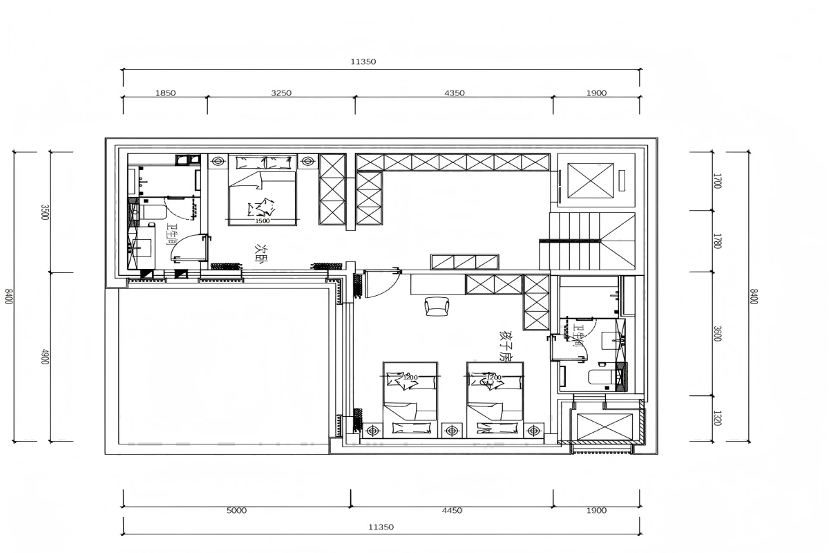
户型图
更多户型图灵感

功能分区明确,动静分离。主要涵盖睡眠休息区、收纳区和辅助功能区,为居住者提供舒适便捷且具私密性的居住体验。

户型图
更多户型图灵感

设计注重空间的合理利用与功能分区,整体布局方正,动静分离。将休息空间与公共活动空间明确区分,保障居住的私密性与舒适性,适合家庭居住。

本案设计师

周永超

高级主任设计师

  1. 269次
  2. 预约数
  1. 17年
  2. 从业年限
  1. 13套
  2. 作品案例

预约TA

轻奢风格的其它案例
更多

【案例】【西山御园】轻奢 五居室 300㎡

闫磊 闫磊 6 4382837浏览 这样装修多少钱?

【案例】【西山壹号院】轻奢 四居室 400㎡

谭为 谭为 9 1142951浏览 这样装修多少钱?

【案例】【宝坻时光小镇101】轻奢 别墅 220㎡

博洛尼 博洛尼 6 903687浏览 这样装修多少钱?

别墅的其它案例
更多

【案例】【龙熙瓦德拉玛庄园】古典 别墅 1314㎡

博洛尼 博洛尼 6 3505607浏览 这样装修多少钱?

【案例】【自在香山】古典 别墅 300㎡

高宏寅 高宏寅 6 1539205浏览 这样装修多少钱?

【案例】【懋源景玺】古典 别墅 775㎡

渠海东 渠海东 11 823311浏览 这样装修多少钱?