





本案融合了奶油色调与中古元素的独特设计风格。在色彩方面,以柔和的奶油色为主调,营造出温馨、舒适的氛围。这种温暖的色调能够让人感到放松和愉悦,为家居空间带来宁静的氛围。中古元素的运用是奶油中古风的重要特点。复古的家具、灯具、装饰品等,展现出历史的韵味和独特的魅力。这些中古物件经过时间的洗礼,更具质感和故事性为空间增添了一份复古的情怀。
更多客厅灵感
软装上面的色彩比较偏简约高级和理性,所以想要整个空间能眼前一亮、达到出彩的效果,软装颜色需要局部出挑。多功能房内部的色彩比较丰富,在选择灯具或是摆件时,选择硬装里的对比色。同时暖色调可以中和硬装的理性和冰冷感,让家多一些感性和温度。
更多客厅灵感
尊重住宅本身的结构,依据居者需求做具体的空间划分,避免不必要的动线迂回。基于出色的色彩感知力和空间把控力,注重光线和通风的同时,稀释简化法式经典元素,色彩和质感和谐融合,不喧不闹地构成井然有序的画面,传达品味与个性。
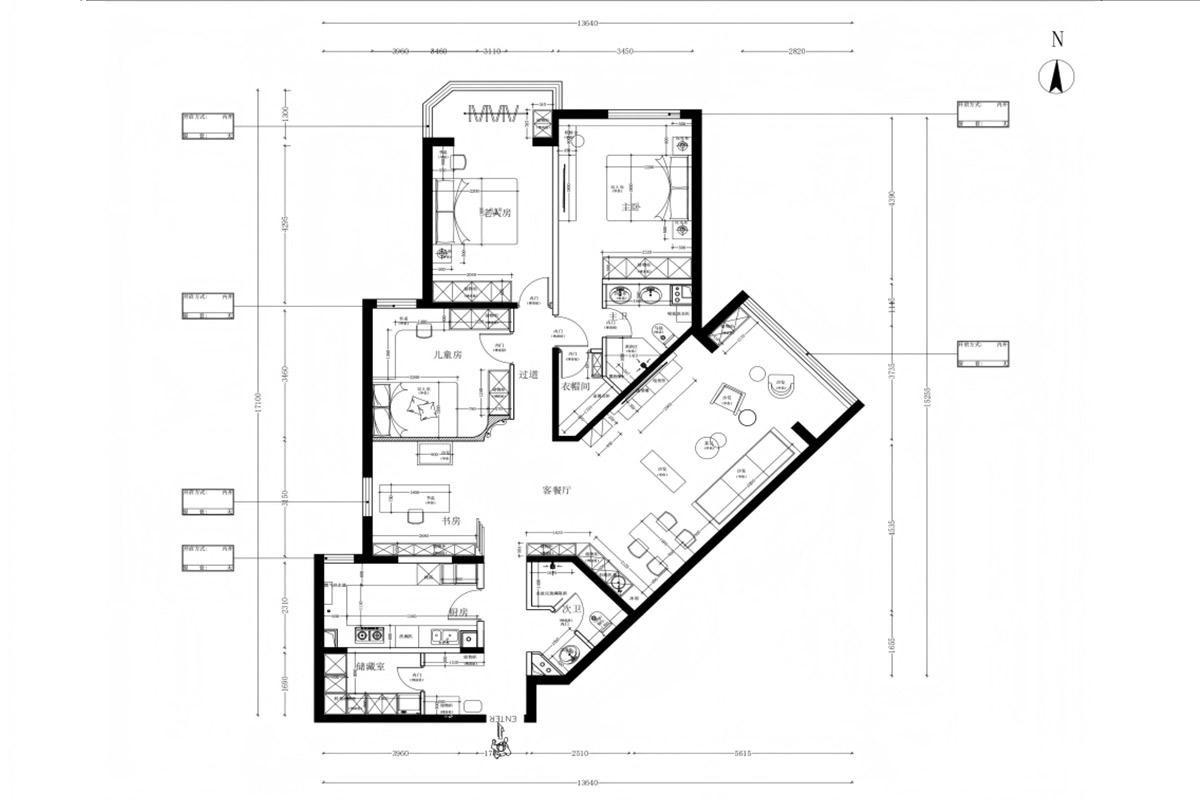
更多户型图灵感
本案融合了奶油色调与中古元素的独特设计风格。在色彩方面,以柔和的奶油色为主调,营造出温馨、舒适的氛围。这种温暖的色调能够让人感到放松和愉悦,为家居空间带来宁静的氛围。中古元素的运用是奶油中古风的重要特点。复古的家具、灯具、装饰品等,展现出历史的韵味和独特的魅力。这些中古物件经过时间的洗礼,更具质感和故事性为空间增添了一份复古的情怀。