×
北京
手机博洛尼 售前:400-6868-692 售后:400-666-3706
所在位置/首页优秀案例/青云上府
点击浏览下一张
案例信息
  • 楼盘名称
  • 案例风格
  • 青云上府
  • 原木
  • 案例户型
  • 服务店面
  • 案例面积
  • 设计师
  • 300㎡
  • 杨廷
案例说明

原木风格别墅注重居住的舒适度和宁静感。通过合理布局和精心挑选的装饰品,如天然石材、植物和手工艺品,营造出宁静而放松的氛围。

客厅
更多客厅灵感

原木风格别墅的室内设计注重自然与现代生活的结合。原木元素与现代家具和装饰品搭配,创造出舒适而时尚的居住环境。

餐厅
更多餐厅灵感

原木风格别墅注重居住的舒适度和宁静感。通过合理布局和精心挑选的装饰品,如天然石材、植物和手工艺品,营造出宁静而放松的氛围。

卧室
更多卧室灵感

原木风格别墅以其独特的自然魅力和温馨氛围,成为现代人追求高品质生活的理想选择。它不仅是一种居住空间的设计,更是一种生活哲学的体现。通过将原木元素融入家居设计,我们可以在繁忙的生活中找到一片宁静的港湾,享受自然带来的无尽美好。

其他
更多其他灵感

这是一个独属于一家人的亲子活动空间,篮球空间同时即能大人和小孩一起在这里打篮球,整个地下室因为全部开放也能变成孩子肆意奔跑的空间

衣帽间
更多衣帽间灵感

原木风格别墅体现了现代生活理念——回归自然、注重健康和可持续发展。它鼓励人们减少对人工材料的依赖,更多地利用自然材料。

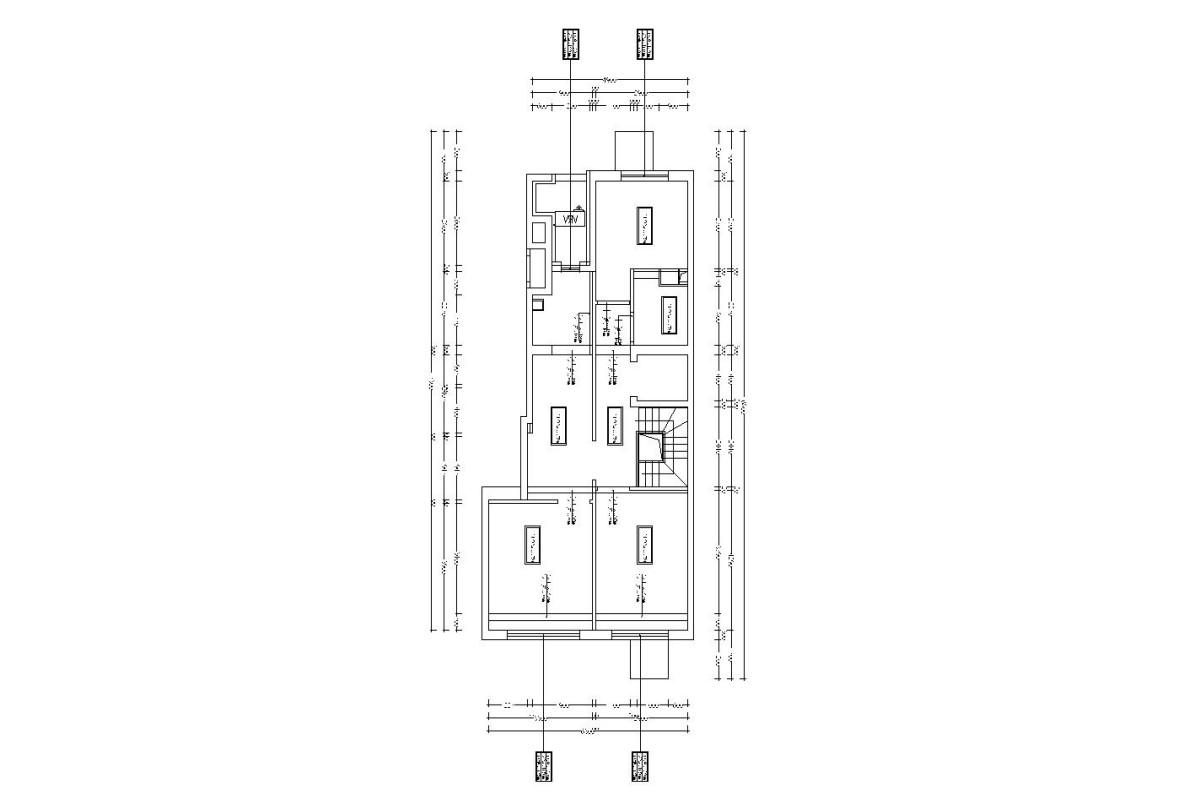
户型图
更多户型图灵感

原木风格别墅的最大特点是大量运用自然材料,尤其是原木。这些木材保留了天然纹理和色泽,为室内空间带来原始而纯粹的美感。

本案设计师

杨廷

资深设计师

  1. 168次
  2. 预约数
  1. 12年
  2. 从业年限
  1. 20套
  2. 作品案例

预约TA

原木风格的其它案例
更多

【案例】【北京香颂】原木 跃层/loft 370㎡

渠海东 渠海东 14 1323691浏览 这样装修多少钱?

【案例】【玉桥南里】原木 二居室 95㎡

张时月 张时月 6 446151浏览 这样装修多少钱?

【案例】【金域学府】原木 二居室 82㎡

倪美苹 倪美苹 6 170558浏览 这样装修多少钱?

别墅的其它案例
更多

【案例】【龙熙瓦德拉玛庄园】古典 别墅 1314㎡

博洛尼 博洛尼 6 3502810浏览 这样装修多少钱?

【案例】【自在香山】古典 别墅 300㎡

高宏寅 高宏寅 6 1538790浏览 这样装修多少钱?

【案例】【懋源景玺】古典 别墅 775㎡

渠海东 渠海东 11 821120浏览 这样装修多少钱?