×
北京
手机博洛尼 售前:400-6868-692 售后:400-666-3706
所在位置/首页优秀案例/北卫新园
点击浏览下一张
案例信息
  • 楼盘名称
  • 案例风格
  • 北卫新园
  • 其他
  • 案例户型
  • 服务店面
  • 案例面积
  • 设计师
  • 100㎡
  • 马翠翠
案例说明

设计风格以意式为主,沙发背面有一排背柜,增加储物的同时使空间感上更有层次。但同时背柜的玻璃柜门和灯带的设计避免空间压抑。

客厅
更多客厅灵感

客厅背面的沙发背柜链接西厨台面和冰箱,补充了厨房的操作空间。跳色的设计和玻璃柜门加灯带设计避免了空间太过压抑。

客厅
更多客厅灵感

客厅的电视墙做了大理石设计,与整体的意式风格相呼应,电视背景墙与旁边主卧的隐形门相互呼应,整体上更和谐。

卧室
更多卧室灵感

次卧采用边吊的形式,避免压低层高使人感觉压抑。衣柜链接书桌和背景墙的设计既节省了空间的同时也使整体上有关联。

卧室
更多卧室灵感

主卧做了L型衣柜的设计,很好的利用空间。背景墙加灯带的设计使立面上更有层次,同时补充了光源,立面上的边吊避免空间压抑。

其他
更多其他灵感

多功能房做了榻榻米的设计,避免了空间太小压抑的问题。旁边做了书桌,使空间使用率上更高,上方的书柜增加书籍收纳。

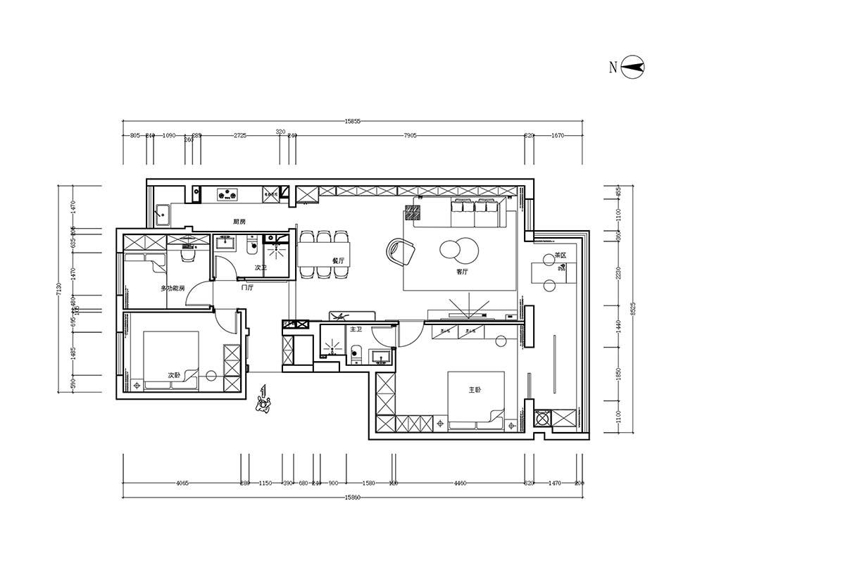
户型图
更多户型图灵感

户型为三居一厨两卫两厅,整体风格为意式轻奢风格,立面上采用边吊的设计避免太低使空间太过压抑。无主灯的设计使空间更简约明亮。

本案设计师

马翠翠

主任设计师

  1. 168次
  2. 预约数
  1. 12年
  2. 从业年限
  1. 30套
  2. 作品案例

预约TA

其他风格的其它案例
更多

【案例】【中信墅】其他 四居室 420㎡

博洛尼 博洛尼 8 2633829浏览 这样装修多少钱?

【案例】【远洋天著】其他 别墅 350㎡

博洛尼 博洛尼 6 3594754浏览 这样装修多少钱?

【案例】【昆仑府】其他 别墅 630㎡

刘一禛 刘一禛 9 3662837浏览 这样装修多少钱?

三居室的其它案例
更多

【案例】【富贵园】古典 三居室 200㎡

博洛尼 博洛尼 6 3481923浏览 这样装修多少钱?

【案例】【中海凯旋】古典 三居室 135㎡

于自奇 于自奇 7 5459浏览 这样装修多少钱?

【案例】【世纪城远大园】古典 三居室 140㎡

薛超 薛超 6 1686浏览 这样装修多少钱?