×
北京
手机博洛尼 售前:400-6868-692 售后:400-666-3706
所在位置/首页优秀案例/青云上府
点击浏览下一张
案例信息
  • 楼盘名称
  • 案例风格
  • 青云上府
  • 法式
  • 案例户型
  • 服务店面
  • 案例面积
  • 设计师
  • 163㎡
  • 康明
案例说明

萃取法式古典美学的浪漫基因,注入现代轻奢的精致质感,以柔和的米杏色为主色调,搭配暖棕木地板与金属光泽的软装细节,营造出优雅、奢华却不失温馨的空间氛围,既保留法式风格的仪式感,又契合当代生活的舒适需求。

客厅
更多客厅灵感

米杏色软包沙发搭配人字拼木地板,营造温润质感;水晶吊灯、金属壁灯点缀奢华细节,电视背景墙融合艺术壁纸与护墙板,平衡法式浪漫与现代舒适,打造兼具仪式感与实用性的优雅居所。

客厅
更多客厅灵感

餐厨区以简约中岛台搭配柔美餐椅,满足餐厨需求并衔接空间;客厅用弧形软包沙发、金属边几衬出轻奢感,电视墙以护墙板+艺术壁纸平衡法式与现代,让空间通透有层次。

客厅
更多客厅灵感

以“浪漫与实用共生”为理念,将法式风格的仪式感注入现代居住场景,通过色彩、材质的精准搭配,打造出既适合亲友欢聚、又能独处休憩的理想空间,实现美学与功能的双重价值。

卧室
更多卧室灵感

法式深棕实木床架搭配米白软包,尽显法式典雅质感;暖棕墙面配艺术挂画,营造温馨氛围;水晶吊灯、金属边几点缀轻奢细节,人字拼地板与雕花地毯丰富层次,实现舒适与精致的平衡。

卧室
更多卧室灵感

法式暖棕系床品搭配浅灰软包床头,营造温馨质感;几何艺术挂画、金属细节灯具点缀轻奢氛围,人字拼地板与柔化窗帘丰富层次,结合嵌入式收纳柜体,实现舒适与精致的平衡,打造静谧雅致的休憩空间。

卧室
更多卧室灵感

动物植物主题壁画注入自然活力,米棕系床品搭配软包床头尽显雅致;金属细节灯具、几何地毯点缀轻奢质感,飘窗设计拓展休憩空间,在法式浪漫中营造温馨童趣的休憩氛围。

卫生间
更多卫生间灵感

水墨花卉壁纸注入浪漫诗意,棕白撞色洗手台搭配金属镜框尽显雅致;几何花砖、铜色五金点缀轻奢质感,玻璃淋浴房实现干湿分离,在功能性中融合法式美学,营造优雅舒适的洗漱氛围。

其他
更多其他灵感

法式暖木色层架搭配弧形边缘,柔化视觉轮廓;几何摆件、艺术书籍与复古收音机点缀细节,人字拼地板呼应自然质感,在实用收纳中融入雅致美学,营造兼具温度与格调的展示场景。

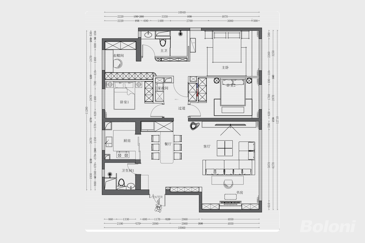
户型图
更多户型图灵感

本案采用全明通透式布局,客餐厨一体化设计提升空间互动性,主卧配独立衣帽间与主卫保障私密;书房、家政间等功能区完善,动线流畅。以合理分区实现居住舒适感与空间利用率的平衡,打造功能完备的现代家居场景。

本案设计师

康明

特级主任设计师

  1. 168次
  2. 预约数
  1. 18年
  2. 从业年限
  1. 99套
  2. 作品案例

预约TA

法式风格的其它案例
更多

【案例】【大郊亭】法式 三居室 160㎡

赵波 赵波 6 5046浏览 这样装修多少钱?

【案例】【玉海园】法式 跃层/loft 120㎡

代伟欣 代伟欣 7 1197070浏览 这样装修多少钱?

【案例】【京西悦府】法式 别墅 300㎡

赵波 赵波 6 2244浏览 这样装修多少钱?

四居室的其它案例
更多

【案例】【金盛家园】古典 四居室 155㎡

霍禹晨 霍禹晨 5 3624457浏览 这样装修多少钱?

【案例】【陶然亭】古典 四居室 117㎡

袁媛 袁媛 6 2512浏览 这样装修多少钱?

【案例】【西钓鱼台庄园】古典 四居室 141㎡

霍伯骞 霍伯骞 8 1937浏览 这样装修多少钱?