





轻奢风不是“奢华堆砌”,而是轻简外壳+奢级内核”:以极简的空间基底为骨架,用材质、灯光、软装的细节提升质感,既避免过度复杂的装饰,又能体现品质感。色调:低饱和+局部跳色基底以中性低饱和色(灰、米白、深棕)为主,保证空间的冷静高级;再用高质感跳色(深蓝、焦糖棕、暖橙)的软装(沙发、餐椅)点缀,避免单调,同时控制色彩比例(跳色占比≤20%),维持整体协调。 材质:对比与融合用“硬柔/冷暖”材质碰撞提升层次: 硬材质:哑光护墙板、大理石纹理岩板、金属线条(提升高级感);柔材质:绒布沙发、皮质餐椅、布艺软装(中和冷硬感,增加舒适感)。
更多客厅灵感
以深灰、浅灰为主调,搭配深蓝、焦糖棕等跳色软装,营造高级冷静的氛围;材质:哑光护墙板+金属线条+大理石纹理背景墙,通过材质对比提升质感;灯光:嵌入式筒灯+悬浮吊顶氛围灯+展示柜灯带,打造层次丰富的“无主灯”照明;细节:弧形灯带、艺术雕塑摆件、隐藏式收纳柜,兼顾美观与实用性。
更多餐厅灵感
开放式一体化设计 设计重点:布局:厨房+吧台+餐厅连通,最大化空间通透感;材质:厨房采用哑光灰色柜面+岩板台面,餐厅搭配黑白撞色餐桌+皮质餐椅,统一中体现层次;灯光:餐厅吊灯采用艺术曲线造型,厨房吊柜内嵌灯带,既满足功能照明,又强化设计感;细节:内嵌式冰箱+高柜收纳,让空间更整洁。
更多卧室灵感
简约治愈风设计重点:色调:浅米白+原木色为主,营造温柔放松的睡眠氛围;材质:护墙板+木纹地板+布艺软装,弱化冷硬感,提升温馨度; 灯光:悬浮吊顶灯带+床头壁灯,打造柔和的间接照明;细节:定制整面衣柜(含玻璃展示区)+床尾凳,兼顾收纳与仪式感。
更多儿童房灵感
童趣太空主题设计重点:主题:墙面采用星球+火箭壁画,搭配月球造型吸顶灯,打造沉浸式“太空舱”氛围;功能:左侧定制书架+书桌,满足学习收纳需求;床铺搭配软包床头,兼顾安全与舒适;色调:以深蓝、浅灰为主,搭配白色软装,既符合儿童审美,又避免过于花哨。
更多卫生间灵感
暗黑系轻奢卫浴 材质:深灰色大理石纹理瓷砖+玻璃隔断,提升高级感与通透感; 功能:干湿分离(淋浴区+浴缸区独立),嵌入洗衣机,实现“洗烘浴”一体化;灯光:嵌入式筒灯+壁龛灯带,增强空间精致感;细节:壁挂式马桶+悬空台盆,减少卫生死角,便于清洁。
更多户型图灵感
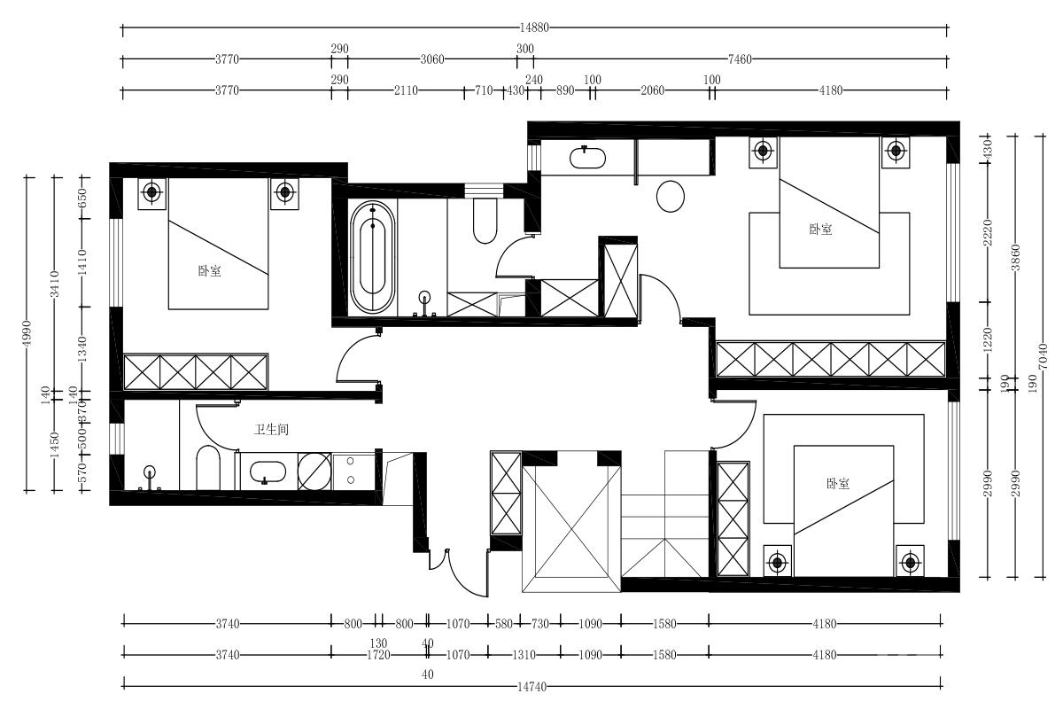
空间利用特点:户型通过“紧凑布局”最大化利用面积,卧室、卫浴的尺寸适配常规家具摆放(如卧室预留了床的摆放空间);部分区域(如图中斜线条标注处)应为阳台/飘窗,增加了空间的拓展性。入户后可直接衔接公共功能区,卧室与卫浴间的动线较短,日常使用便利性较高。潜在优化方向入户区域可增加玄关收纳,提升归家仪式感与储物能力;