










以 “低调精致,质感至上” 为核心,甄选天然肌理材质与细腻金属线条碰撞。去繁就简的轮廓里,藏着精准比例与细腻工艺,柔和色调搭配局部亮色点缀,不张扬却自带格调。既摒弃浮夸堆砌,又保留品质感与仪式感,让空间在简约中透着高级,适配追求精致却不盲从奢华的生活态度。
更多卧室灵感
本卧室以低饱和驼棕为主调,绒面床具糅合金属脚架,床头几何壁饰嵌暖光。 bedside灯垂坠黄铜线条,绒毯肌理呼应窗幔。借木、皮、金属的层次交融,在极简布局里藏起“精于毫厘”的轻奢叙事,让静谧与矜贵共眠。
更多其他灵感
本空间以米白与木色奠定轻奢基调,皮质单椅配金属细脚,悬浮哑黑壁炉勾勒焦点。弧形拱门柔化边界,线性光与自然光交织,借材质肌理(皮、木、金属)与极简轮廓,将精致隐于克制,诠释「轻逸而矜贵」的生活美学。
更多衣帽间灵感
本衣帽间以对称秩序勾勒轻奢骨架,黑玻衣柜嵌线性灯,冷冽光泽与暖棕皮质坐凳碰撞。浅灰石材台面利落,极简配饰呼应。借光影串联材质层次,将收纳化作仪式感,在克制布局里藏起「精于毫厘」的隐贵格调。
更多户型图灵感
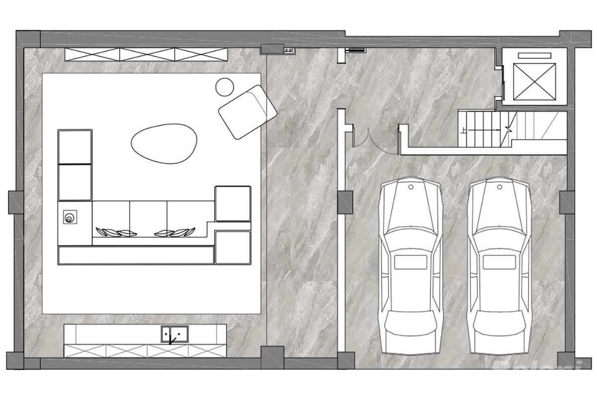
本层以轻奢勾勒起居与泊车的优雅衔接 :会客厅通铺浅灰仿石砖,沙发组配真皮 + 金属脚架,弧形茶几柔化硬朗;车库双车位以金属收边呼应秩序,材质肌理与线条细节交融,于简约中藏精工,让质感在低调里自然流淌。
更多户型图灵感
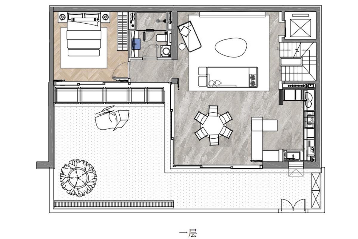
一层以浅灰石材铺陈开放基调,餐区圆桌搭配金属饰边餐椅,客厅沙发糅合真皮与哑黑钢脚。木质卧室区借弧形收边柔化边界,户外区与室内材质呼应。嵌入式灯光勾勒轮廓,于简约布局中,以材质层次与细节工艺,诠释轻奢「简而愈精」的质感哲学。
更多户型图灵感
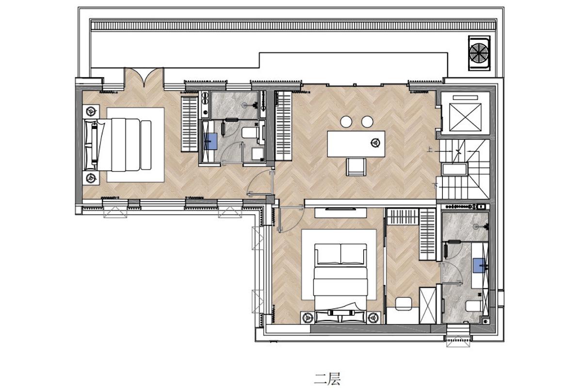
二层以人字拼木铺叙静谧基底,卧室皮质床具嵌金属线条,卫浴石材搭哑黑五金。书房极简桌案配绒面单椅,暗藏灯带柔化边界。借温润木调与精工细节,在私密场域诠释轻奢「隐贵」质感,让舒适与精致悄然交融。
更多户型图灵感
三层以人字拼木营造温润私域,主卧绒面床具缀金属线条,休闲区石材基底配皮质单椅,卫浴云纹石糅合哑黑五金。嵌入式灯光柔化边界,借材质冷暖碰撞与细节精工,将奢华藏于静谧秩序,诠释轻奢「克制而矜贵」的私享美学。