










以法式优雅为骨,浪漫肌理为魂,本次设计延续古典对称美学,用柔润石膏线勾勒空间轮廓,搭配米白与奶油杏的柔和色调,融入亚麻布艺、胡桃木的自然质感。曲线廊柱与简约雕花暗藏精致,光影透过百叶窗洒下斑驳暖意,既复刻法式生活的仪式感,又以现代笔触简化繁复,让浪漫与松弛感渗透日常每一处。
更多客厅灵感
以法式优雅为基底,石膏线轻描吊顶轮廓,弧形拱龛晕染浪漫层次。人字拼地板铺展温润肌理,亚麻沙发、大理石桌交织质感。纱帘滤入天光,电子壁炉暗藏仪式感,让现代起居自然浸润法式松弛与精致的平衡韵律 。
更多户型图灵感
借法式浪漫诠释空间:采光井引自然光漫溯,与 240㎡花园形成光影呼应。以弧形线条柔化边界,石膏线勾勒仪式感,胡桃木与亚麻布艺交织温润。休闲区衔接户外,让优雅松弛浸润起居,复刻法式生活的诗意日常 。
更多户型图灵感
二层作为私密休憩场域,法式美学在此演绎松弛与精致:小客厅围合出社交氛围,圆弧线柔化棱角;主卫与衣帽间串联优雅秩序,胡桃木衬丝绒织物显温润。阳台纳光,卧室以简化石膏线勾勒浪漫,让慵懒与仪式感共生 。
更多户型图灵感
地下一层以法式松弛感重构社交场:42㎡花园引光入室,中岛与圆厅围合对称秩序。休闲区圆弧造景柔化边界,石材肌理衬亚麻布艺显温润。借光影晕染仪式感,让地下空间挣脱沉闷,成为优雅与烟火共生的浪漫容器 。
更多户型图灵感
地下二层借法式基因激活地下场域:螺旋梯旋出灵动韵律,弧形边界柔化硬朗。阅读区围合静谧,健身、客房铺展松弛秩序。以胡桃木温润基底,衬丝绒与亚麻的优雅肌理,间接光晕染层次,让 245㎡地下空间成为浪漫与烟火交织的私享容器 。
更多户型图灵感
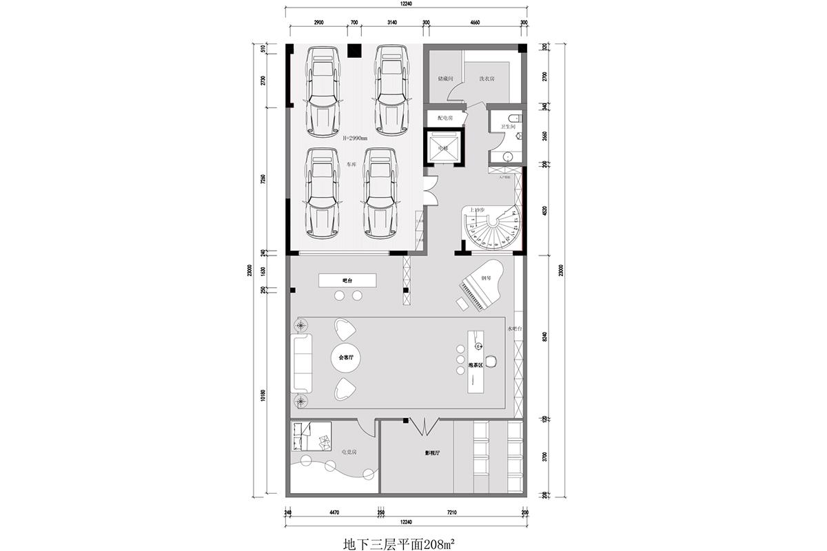
地下三层以法式浪漫编织 208㎡复合场域:螺旋梯旋出艺术韵律,钢琴区晕染优雅光晕,会客厅围合对称秩序。吧台、酒水区藏精致肌理,电竞与影院铺展松弛日常。胡桃木衬丝绒质地,间接光柔化边界,让功能区成为浪漫与烟火共生的私享天地