×
北京
手机博洛尼 售前:400-6868-692 售后:400-666-3706
所在位置/首页优秀案例/观承下跃
点击浏览下一张
案例信息
  • 楼盘名称
  • 案例风格
  • 观承下跃
  • 奶油
  • 案例户型
  • 服务店面
  • 案例面积
  • 设计师
  • 300㎡
  • 康明
案例说明

奶油风以米白、奶咖等柔和色调为基底,甄选棉麻、原木等温润材质,搭配去棱角的圆润形态,弱化尖锐线条适配居家动线。让空间自带柔光滤镜,将治愈感融入功能细节,用温柔消解疲惫,让居家成为松弛疗愈的港湾,诠释简约纯粹的生活本真。

客厅
更多客厅灵感

以奶白为主调,整面收纳柜消弭杂乱,去棱角软质沙发裹满温润,暖光轻晕空间。局部黑调与小摆件缀出层次,让客厅在整洁里浸着松弛暖意,是日常休憩的温柔场域。

客厅
更多客厅灵感

以奶白为基底,去棱角软沙发裹满温润,整面收纳柜消弭杂乱,柔光灯带晕染暖调。浅调软装与潮玩轻缀趣味,让空间在整洁里浸着松弛,日常休憩时,满是温柔裹身的舒适感。

餐厅
更多餐厅灵感

以奶白为底糅合浅木调,用大理石台面衬温润木作,嵌入式家电 + 隐藏收纳消弭杂乱。线性柔光弱化硬朗,圆润椅具适配用餐动线,让餐厨空间裹着暖调松弛感,颜值与实用共融,三餐时光都浸着温柔。

餐厅
更多餐厅灵感

以奶白为基底糅合浅木调,柔光灯带晕染暖意,圆润椅具弱化棱角适配用餐动线。通透隔断引自然光入室,隐藏收纳消弭杂乱,让餐厨在温柔质感里平衡颜值与实用,三餐时刻都浸着松弛氛围。

卧室
更多卧室灵感

以奶白为底揉入浅木调,柔纱帘、棉麻床品铺陈温润质感,去棱角家具适配休憩动线。嵌入式柔光 + 圆弧镜弱化冷硬,条纹单椅轻缀层次,让每一寸空间裹着松弛暖意,是专属于睡前的疗愈休憩场。

书房
更多书房灵感

以奶白为底糅合浅木调,收纳区玻璃门配内嵌暖光,弱化冷硬更显温润。休闲区软质铺陈,潮玩摆件轻缀趣味,柔光裹满空间,既实现收纳规整,又让日常停留浸着松弛温柔,是治愈的轻享角落。

户型图
更多户型图灵感

以奶白 + 浅木为基底,客厅休闲区用去棱角软装、柔光裹合松弛感;门厅弱化边界,与公共区柔和衔接;厨房配温润材质适配动线。整体让空间浸着奶油系温柔,让居家核心区满是舒适疗愈感。

户型图
更多户型图灵感

以奶白 + 浅木为基底,室内去棱角软装裹满暖调,餐厅客厅连动显通透;柔化庭院与室内边界,让自然轻渗空间,卧室铺温润材质适配休憩。整体让奶油系温柔裹合每处,是疗愈的居家场域。

户型图
更多户型图灵感

本案以奶油风营造松弛感:暖白基底糅合浅棕木质肌理,双卧软装柔化线条,公共区轻透质感串联动线,阳台植入自然绿植,让每处都裹着温和暖意,治愈日常起居。

户型图
更多户型图灵感

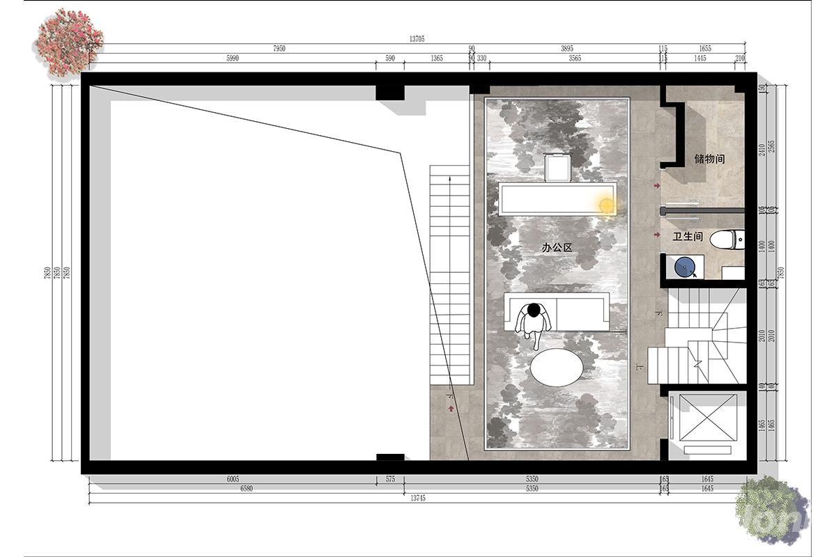
本案以奶油暖调铺陈空间:办公区用浅木家具柔化功能感,大面积柔雾质感软装 + 隐形储物门统一视觉,卫生间浅杏瓷砖延续柔和,让松弛暖意裹满每处,平衡实用与治愈氛围。

户型图
更多户型图灵感

以柔润奶油色为基底,搭配主卧人字拼木饰面的暖调肌理,卫浴用轻透质感石材柔化边界,衣帽间与休息区通透衔接,让整个私域浸在松弛治愈的温柔里,藏着松弛的生活温度。

本案设计师

康明

特级主任设计师

  1. 168次
  2. 预约数
  1. 18年
  2. 从业年限
  1. 100套
  2. 作品案例

预约TA

奶油风格的其它案例
更多

【案例】【澳林观邸】奶油 四居室 200㎡

康明 康明 9 72498浏览 这样装修多少钱?

【案例】【首城国际】奶油 二居室 150㎡

叶曼 叶曼 6 515073浏览 这样装修多少钱?

【案例】【豪柏公寓】奶油 三居室 128㎡

蒋胜 蒋胜 6 2382浏览 这样装修多少钱?

别墅的其它案例
更多

【案例】【龙熙瓦德拉玛庄园】古典 别墅 1314㎡

博洛尼 博洛尼 6 3502993浏览 这样装修多少钱?

【案例】【自在香山】古典 别墅 300㎡

高宏寅 高宏寅 6 1538809浏览 这样装修多少钱?

【案例】【懋源景玺】古典 别墅 775㎡

渠海东 渠海东 11 821197浏览 这样装修多少钱?