








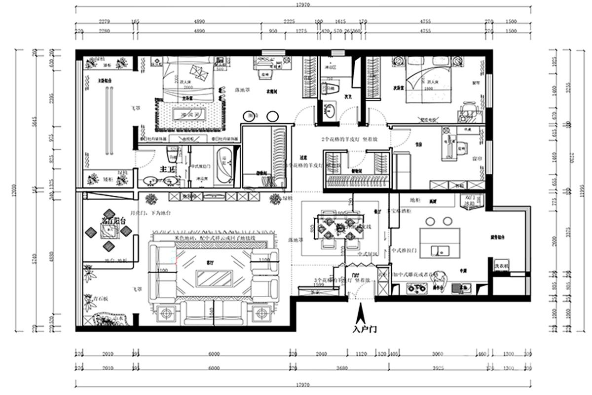
澳林观邸项目,小区南北通透,户型方正,采光通风良好。经过与业主多次沟通最终采用中式风格作为本案例最终设计风格
更多客厅灵感
此客厅以奶油极简为基调,弧形吊顶 + 线性灯柔化空间,一体化柜体藏嵌电视与壁炉,显整洁高级。软包家具搭纹理地毯增舒适,红色摆件点睛,开放式布局联动餐厨,借自然光与低饱和色调,营造松弛且通透的居感。
更多客厅灵感
这个客厅采用奶油系极简风,以柔和米白为主调,弧形吊顶搭配线性灯光营造松弛氛围。柜体与墙面一体化设计扩容空间,软包家具 + 纹理地毯增加舒适感,局部深色置物架与酒红抱枕点缀层次,兼顾颜值与实用。
更多餐厅灵感
该餐厨区以奶油极简为核,浅调柜体隐嵌厨电,黑灰细节点缀层次。长虹玻璃隔断柔化空间又保通透,岛台 + 软包椅串联餐厨动线,竖百叶引自然光,简约软装适配开放布局,营造松弛有序的互动式餐厨氛围。
更多餐厅灵感
该餐厨区延续奶油极简风格,浅色调一体化柜体隐藏厨电,黑色开放格点缀层次。岛台 + 软包餐椅兼顾实用与舒适,弧形吊顶配线性灯柔化空间,借通透布局联动客区,以低饱和色调与简约软装,营造松弛有序的餐厨氛围。
更多卧室灵感
该卧室以奶油极简为调,浅色系一体化柜体 + 嵌入式书桌实现空间复用,弧形吊顶配线性灯柔化氛围。软包床搭低饱和床品增舒适,简约摆件点缀层次,大窗引自然光,兼顾休憩与轻办公功能,营造松弛高效的静谧空间。