×
北京
手机博洛尼 售前:400-6868-692 售后:400-666-3706
所在位置/首页优秀案例/诺德阅墅
点击浏览下一张
案例信息
  • 楼盘名称
  • 案例风格
  • 诺德阅墅
  • 法式
  • 案例户型
  • 服务店面
  • 案例面积
  • 设计师
  • 540㎡
  • 康明
案例说明

以复古为骨,优雅为魂,勾勒中古法式空间格调。萃取法式经典线条与简化拱券、雕花元素,搭配胡桃木、藤编等温润材质,辅以米白、焦糖色、墨绿等静谧色调,平衡经典与日常,于细节处流露慵懒惬意,让居住者沉浸在兼具质感与温度的雅致生活中。

客厅
更多客厅灵感

以人字拼木作中古法式基底,白软包沙发柔化法式松弛感,焦糖棕单椅、复古球形灯锚定中古质感,米白与暖棕轻撞色,佐以艺术挂画,让优雅藏于日常肌理,平衡复古腔调与当代舒适。

客厅
更多客厅灵感

以石膏线吊顶铺展法式优雅基底,奶白护墙搭木色柜体柔化氛围,人字拼地板衬出温润质感。藤编单椅、复古陶罐锚定中古腔调,柔色调与自然肌理相融,让法式松弛裹着复古温度,落于日常起居的细节里。

客厅
更多客厅灵感

以石膏线吊顶铺展法式优雅基底,人字拼地板衬出温润中古质感。奶白软包沙发柔化松弛氛围,藤编单椅、复古陶罐锚定复古腔调,木色柜体与大理石细节补缀质感,让法式优雅裹着中古温度,落于日常起居的松弛里。

客厅
更多客厅灵感

以简化拱券勾勒法式基底,焦糖皮沙发、藤编屏风锚定中古质感,米白底色衬出松弛氛围,黑白艺术画与几何地毯补缀轻复古腔调,让法式优雅裹着中古温度,落于日常起居的松弛质感里。

卧室
更多卧室灵感

以柔缓线条铺展法式卧室基底,藤编床头、木作家具锚定中古质感,米白底色衬暖棕肌理,简约艺术画与柔光灯带补缀松弛氛围,让法式优雅裹着复古温度,落于休憩空间的温柔质感里。

卫生间
更多卫生间灵感

这套中古法式卫浴,以简化拱券、复古植物墙纸铺展法式基底,米白与焦糖棕撞色柔化氛围,深色柜配金属五金点睛中古质感。在功能卫浴里嵌入优雅松弛,让日常洗漱浸满复古温柔的居住温度。

户型图
更多户型图灵感

此户型以庭院联动客餐厅的通透布局为底,植入中古法式元素:简化石膏线柔化空间线条,胡桃木 + 藤编材质锚定复古质感,暖棕米白作基调,让优雅松弛裹着复古温度,落于起居与庭院的自然联动里。

户型图
更多户型图灵感

此二层户型以通透动线串联功能区,植入中古法式细节:简化石膏线柔化空间轮廓,胡桃木 + 藤编材质锚定复古质感,暖棕米白作基调,让书房浸满松弛、卧室裹着柔缓,将法式优雅落于复古温度里。

户型图
更多户型图灵感

此地下一层以通透动线串联休闲区、卧室与下沉庭院,植入中古法式细节:简化石膏线柔化空间轮廓,胡桃木 + 藤编锚定复古质感,暖棕米白作基调,休闲区浸松弛、卧室裹柔缓,衔庭院自然,让法式优雅落于复古温度里。

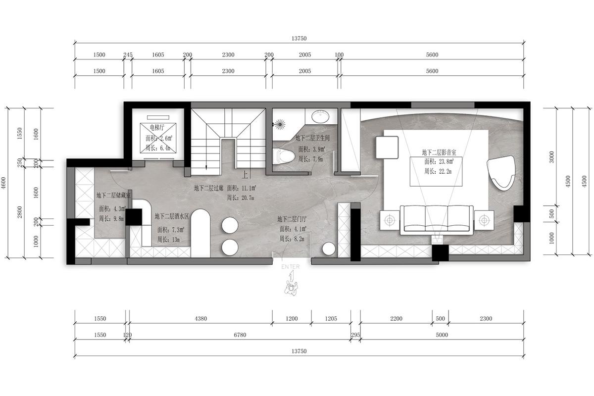
户型图
更多户型图灵感

本地下二层以中古法式定调:复古雕花线条、温润木作承续法式浪漫,酒水区缀黄铜细节衬优雅,影音室借柔质软装铺陈慵懒;楼梯与公区的复古肌理,让中古质感与休闲功能妥帖兼容。

本案设计师

康明

特级主任设计师

  1. 168次
  2. 预约数
  1. 18年
  2. 从业年限
  1. 100套
  2. 作品案例

预约TA

法式风格的其它案例
更多

【案例】【大郊亭】法式 三居室 160㎡

赵波 赵波 6 4224浏览 这样装修多少钱?

【案例】【玉海园】法式 跃层/loft 120㎡

代伟欣 代伟欣 7 1196750浏览 这样装修多少钱?

【案例】【京西悦府】法式 别墅 300㎡

赵波 赵波 6 1380浏览 这样装修多少钱?

别墅的其它案例
更多

【案例】【龙熙瓦德拉玛庄园】古典 别墅 1314㎡

博洛尼 博洛尼 6 3502993浏览 这样装修多少钱?

【案例】【自在香山】古典 别墅 300㎡

高宏寅 高宏寅 6 1538809浏览 这样装修多少钱?

【案例】【懋源景玺】古典 别墅 775㎡

渠海东 渠海东 11 821197浏览 这样装修多少钱?