






本四居室采用法式+现代双风格融合设计,兼顾浪漫童趣与实用属性。 私密空间方面,两间女儿房定位法式风格,以柔和色彩搭配精致线条,融入浪漫软装与童趣元素,适配孩童成长需求;主卧延续法式风格的温馨质感,打造静谧舒适的休憩氛围。 公共空间的客厅、餐厅、厨房及卫生间采用现代风格,以浅灰、米白为主色调,通过通透布局、简约家具与无主灯设计,打造开阔便捷的活动区域。 为实现风格自然衔接,法式空间的精致线条元素延伸至公共区软装细节,现代空间的简约质感点缀于卧室灯具,让整体空间既有层次变化,又和谐统一。
更多客厅灵感
现代简约风客厅,以浅米为主调,质感轻盈通透:无主灯+悬浮吊顶搭配环形吊灯,弱化空间压迫感;墙面做线条与格栅拼接,搭配几何装饰画,简约中显层次。 浅色系沙发配棕调抱枕,柔和又温馨;右侧嵌入式电视柜带氛围灯,兼顾收纳与颜值;落地灯+弧形单椅,再加上通阳台的采光,让空间既舒适又通透。
更多餐厅灵感
这是现代轻奢风餐厨一体空间,实用与精致兼具:浅灰橱柜+大理石纹台面,搭配玻璃门柜与氛围灯,通透又显高级;嵌入式饮水机、分层壁龛,最大化利用收纳空间。 黑棕撞色餐桌配黑白餐椅,简约中带质感;窗边台面可作备餐区,自然光与灯光结合,让烹饪、用餐氛围更温馨,整体是功能与颜值双在线的生活空间。
更多餐厅灵感
这是现代轻奢风餐厨一体空间,实用与精致兼具:浅灰橱柜+大理石纹台面,搭配玻璃门柜与氛围灯,通透又显高级;嵌入式饮水机、分层壁龛,最大化利用收纳空间。 黑棕撞色餐桌配黑白餐椅,简约中带质感;窗边台面可作备餐区,自然光与灯光结合,让烹饪、用餐氛围更温馨,整体是功能与颜值双在线的生活空间。
更多卧室灵感
法式风格女儿房,以浅白+柔粉为主调,满是浪漫精致感:墙面做雕花护墙板,吊顶配装饰花纹+水晶吊灯,自带优雅滤镜;粉色软包床头带雕花线条,搭配同色系丝绒椅、书桌,柔化空间质感;衣柜用弧形门+金色拉手,和整体风格呼应。 一侧嵌入式书架带暖光氛围灯,兼顾储物与温馨感;粉棕渐变窗帘,搭配床品蕾丝边、层次抱枕,甜而不腻,既契合女孩审美,又通过柔和色调与精致细节,营造出舒适又梦幻的休憩空间。
更多儿童房灵感
法式童趣风女儿房,以柔和米白为基底,点缀暖棕与浅蓝,氛围温馨又灵动:墙面做精致的线条装饰,搭配云朵造型床头,软萌感十足;弧形元素贯穿空间(如左侧墙面的拱形装饰、波浪纹地毯),弱化硬朗感。 书桌区是嵌入式设计,搭配马卡龙色系座椅,实用又可爱;顶部的球形吊灯、墙面的河马挂画,以及小摆件等软装,既契合孩童审美,又通过细腻的细节处理,让空间兼具舒适休憩与轻量学习的功能。
更多卫生间灵感
现代轻奢风卫浴间,以浅米色调为基底,通过细节营造精致感:淋浴区墙面选用淡雅花卉瓷砖,柔和了空间硬朗感;玻璃隔断+悬浮式马桶,让动线更通透。 右侧嵌入洗烘一体机,兼顾实用收纳;洗漱区做了带氛围灯的镜柜与壁龛,既扩容又提升格调,整体在简约中融入柔美元素,平衡了功能性与视觉美感。
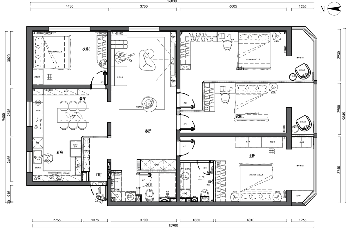
更多户型图灵感
整体布局既保留了公共区的通透互动性,客餐厨一体化 + 洄游动线,又通过巧妙的分区,让每个卧室都拥有独立且安静的私域感—— 主卧自带卫浴 + 专属收纳区,次卧们也配备了舒适的休憩 + 储物空间,连卫浴都做了双卫布局,日常起居效率直接拉满~ 细节里藏着巧思:比如客厅的开放式布局能适配多种生活场景,餐厨区的衔接既流畅又显通透,加上每个空间都预留了充足的收纳点位,实用与颜值并。