×
北京
手机博洛尼 售前:400-6868-692 售后:400-666-3706
所在位置/首页优秀案例/丽春湖墅
点击浏览下一张
案例信息
  • 楼盘名称
  • 案例风格
  • 丽春湖墅
  • 中式
  • 案例户型
  • 服务店面
  • 案例面积
  • 设计师
  • 327㎡
  • 王惠伟
案例说明

本项目以 “新中式轻奢” 为核心,融合木饰面、大理石等自然材质与现代光影设计。空间串联起餐厨、茶区、客厅、阳光房等区域,通过红棕色调点缀、水墨纹理软装与弧形线条,既保留东方雅致气韵,又以玻璃、金属元素强化现代质感,实现传统意境与当代生活的平衡。

客厅
更多客厅灵感

客厅以浅灰沙发为核心,墨绿、棕褐抱枕点缀出层次感,大理石茶几呼应轻奢质感;水墨纹地毯与窗外绿意呼应东方意境,落地灯与艺术画提升精致度,让空间既适配休闲放松,又显雅致格调。

餐厅
更多餐厅灵感

餐厨区以浅木色为基底,大理石岛台衔接厨房与用餐区,兼顾实用与通透;朱红座椅成为视觉焦点,圆形灯组与长虹玻璃移门呼应东方意境,暗藏灯强化层次,让空间在雅致中适配日常用餐与轻烹饪需求。

玄关
更多玄关灵感

玄关以水墨纹大理石墙为视觉核心,嵌入式壁炉增添暖意,水晶吊灯强化轻奢质感;木饰面收纳架与红绒背板呼应新中式基调,艺术摆件与灯光结合,让过渡区域兼具仪式感与展示功能,成为空间的美学起点

庭院
更多庭院灵感

阳光房以玻璃顶引入自然光线,岩石纹墙面与仙人掌造景营造自然野趣;休闲躺椅与猫爬架兼顾人居与宠物需求,圆形灯组柔化氛围,玻璃移门衔接室内,让空间成为 “室内庭院”,适配放松与观景。

其他
更多其他灵感

品茗区以整面木饰面书架铺垫温润氛围,浅蓝座椅平衡色调,艺术吊灯如 “飘带” 柔化空间;茶具与绿植点缀其间,既保留新中式的雅致,又以简洁线条适配现代品茗场景,实现功能与美学的统一。

其他
更多其他灵感

延续木饰面基调,红绒背板与艺术挂画强化东方质感,大理石茶台搭配浅蓝座椅,平衡厚重与轻盈;暗藏灯勾勒收纳架层次,让空间在传统韵味中兼具展示与社交功能,适配茶叙与藏品陈列。

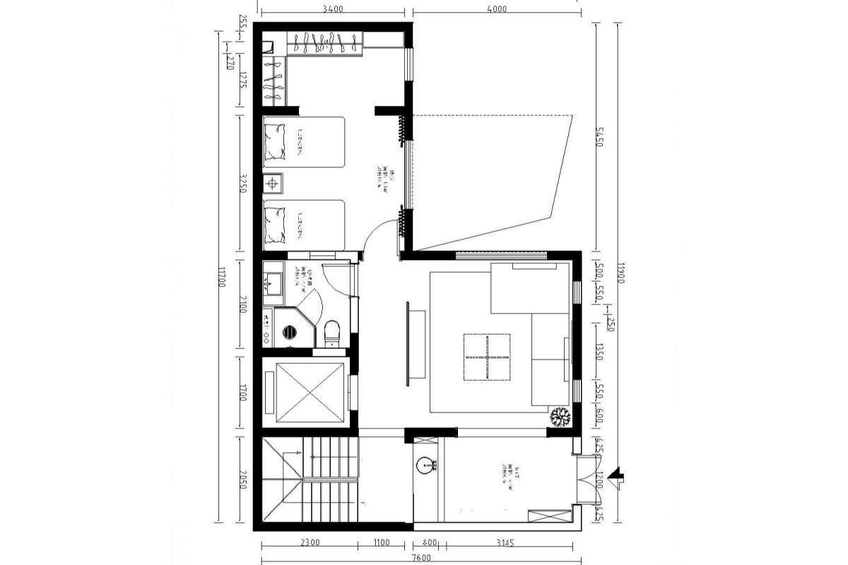
户型图
更多户型图灵感

户型功能分层明确:上层是卧室 + 卫浴,中层布局餐厨与会客区,下层设双车位车库,顶层规划双卧与起居空间,既覆盖居住、社交需求,也兼顾停车功能,整体空间利用合理,功能配置比较完善。

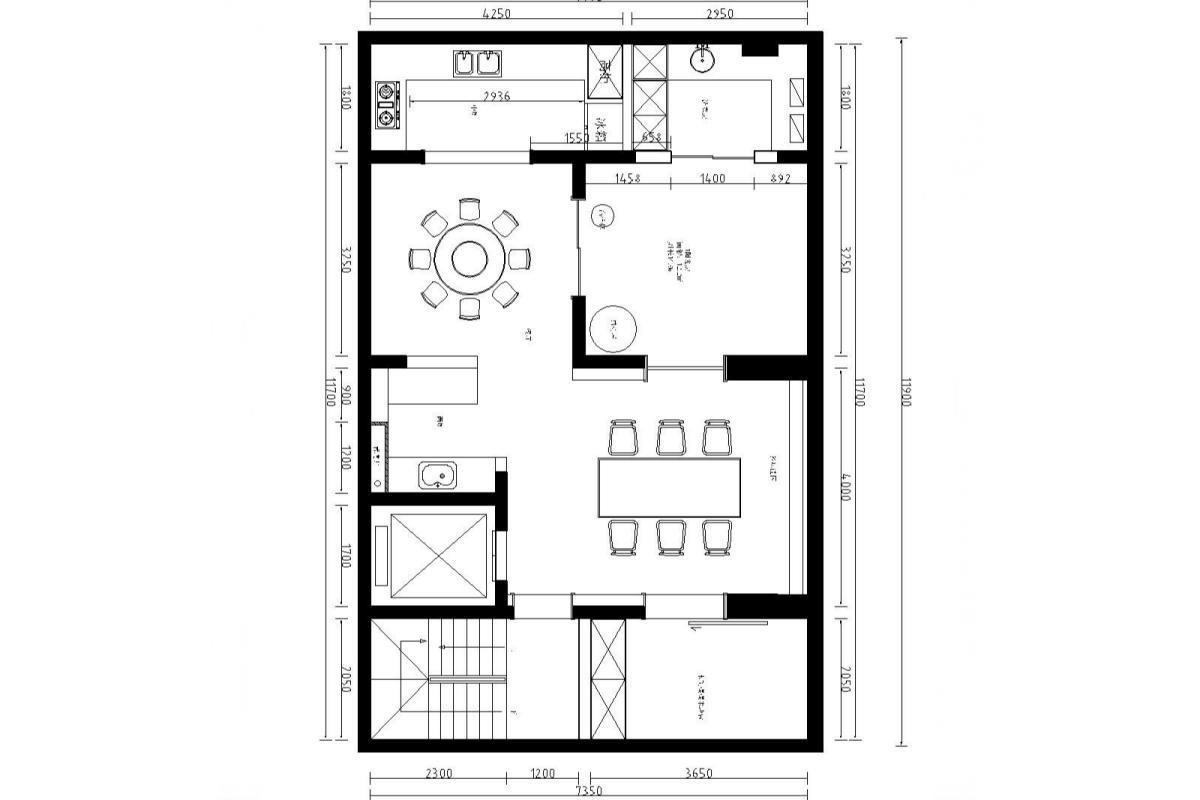
户型图
更多户型图灵感

户型功能分层明确:上层是卧室 + 卫浴,中层布局餐厨与会客区,下层设双车位车库,顶层规划双卧与起居空间,既覆盖居住、社交需求,也兼顾停车功能,整体空间利用合理,功能配置比较完善。

户型图
更多户型图灵感

户型功能分层明确:上层是卧室 + 卫浴,中层布局餐厨与会客区,下层设双车位车库,顶层规划双卧与起居空间,既覆盖居住、社交需求,也兼顾停车功能,整体空间利用合理,功能配置比较完善。

本案设计师

王惠伟

钛马赫别墅主任设计师

  1. 168次
  2. 预约数
  1. 20年
  2. 从业年限
  1. 6套
  2. 作品案例

预约TA

中式风格的其它案例
更多

【案例】【远洋山水】中式 跃层/loft 210㎡

底路彬 底路彬 6 3534630浏览 这样装修多少钱?

【案例】【西山艺境】中式 别墅 222㎡

博洛尼 博洛尼 10 3961229浏览 这样装修多少钱?

【案例】【天通苑】中式 二居室 170㎡

博洛尼 博洛尼 7 3330717浏览 这样装修多少钱?

别墅的其它案例
更多

【案例】【龙熙瓦德拉玛庄园】古典 别墅 1314㎡

博洛尼 博洛尼 6 3505531浏览 这样装修多少钱?

【案例】【自在香山】古典 别墅 300㎡

高宏寅 高宏寅 6 1539147浏览 这样装修多少钱?

【案例】【懋源景玺】古典 别墅 775㎡

渠海东 渠海东 11 823236浏览 这样装修多少钱?