×
北京
手机博洛尼 售前:400-6868-692 售后:400-666-3706
所在位置/首页优秀案例/天悦壹号
点击浏览下一张
案例信息
  • 楼盘名称
  • 案例风格
  • 天悦壹号
  • 法式
  • 案例户型
  • 服务店面
  • 案例面积
  • 设计师
  • 800㎡
  • 关蕾
案例说明

这个房屋设计兼具优雅质感与现代舒适的法式轻奢风,整体氛围柔和、精致且充满格调。以温柔的米白色为基底,搭配浅木色线条与金色点缀,营造出温暖又高级的视觉感受。

卧室
更多卧室灵感

天花板的圆形雕花造型与水晶吊灯相互呼应,奠定了空间的浪漫基调;墙面的护墙板与精致线条,延续了法式风格的优雅细节。

书房
更多书房灵感

穹顶造型的天花板搭配暗藏式灯带,提升了空间的纵向感与仪式感;背景墙的深木色书柜与米白色护墙板形成材质对比,暖光层板灯则为陈列的书籍与艺术品赋予了柔和的氛围感。

玄关
更多玄关灵感

这个空间是以法式优雅与现代轻奢感的挑高楼层休闲区,整体氛围柔和舒适,又不失精致细节。顶部的天窗设计让自然光倾泻而入,与嵌入式筒灯、灯带形成多层次照明,营造出通透敞亮的视觉效果。

玄关
更多玄关灵感

这是一处挑高复式户型的客厅核心区,以法式轻奢为设计基调,通过材质与光影的巧妙结合,营造出既大气又精致的空间氛围。

庭院
更多庭院灵感

整体采用浅灰色的清水混凝土墙面与地面,材质统一且质感细腻,营造出干净利落的视觉基底。墙面嵌入式的线性灯带与壁灯,为夜晚增添了温馨的氛围感。

户型图
更多户型图灵感

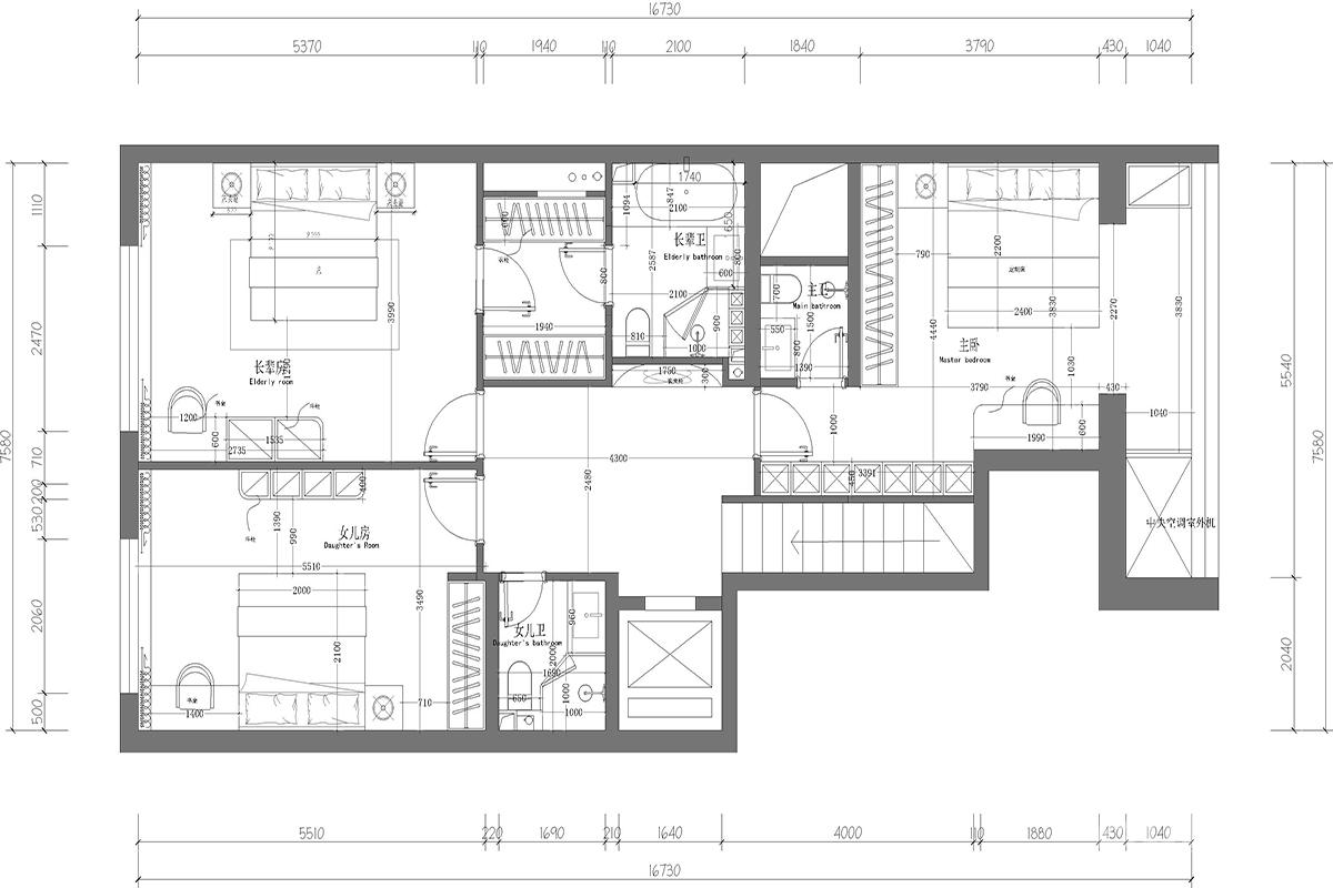
此图为地上二层,主要功能为卧室区域,均配置了大床、床头柜、衣柜等家具,满足双人居住需求。是典型的现代多居室住宅的功能布局方案。

户型图
更多户型图灵感

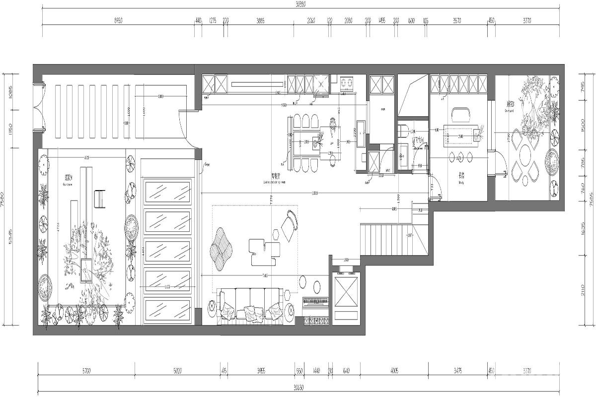
此图为地上一层,这是一个开放式的复合空间,融合了休闲、景观与收纳功能。大面积的绿植布置和灵活的家具摆放,营造出充满自然气息的放松角落,旁边的通顶柜则提供了充足的储物空间。

户型图
更多户型图灵感

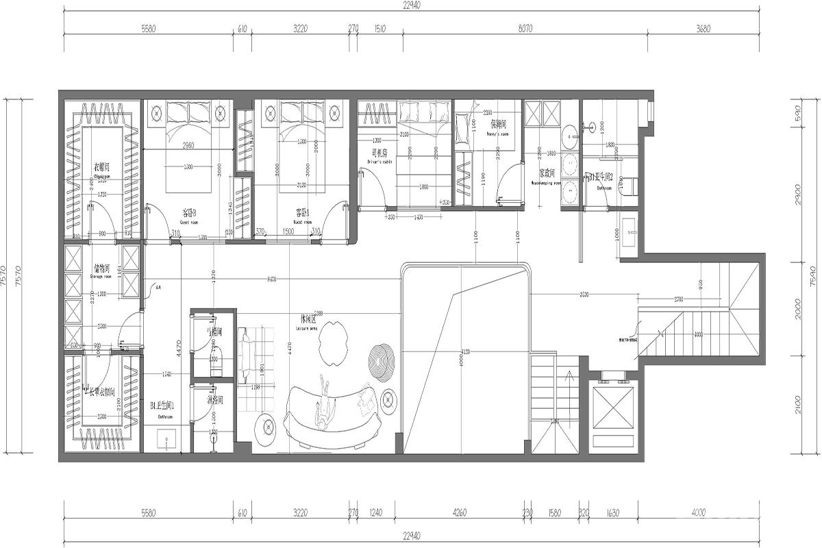
此图为地下一层,包含卧室和独立衣帽间。卧室配置了完整的睡眠区与储物空间,满足多代同堂或访客居住需求。

户型图
更多户型图灵感

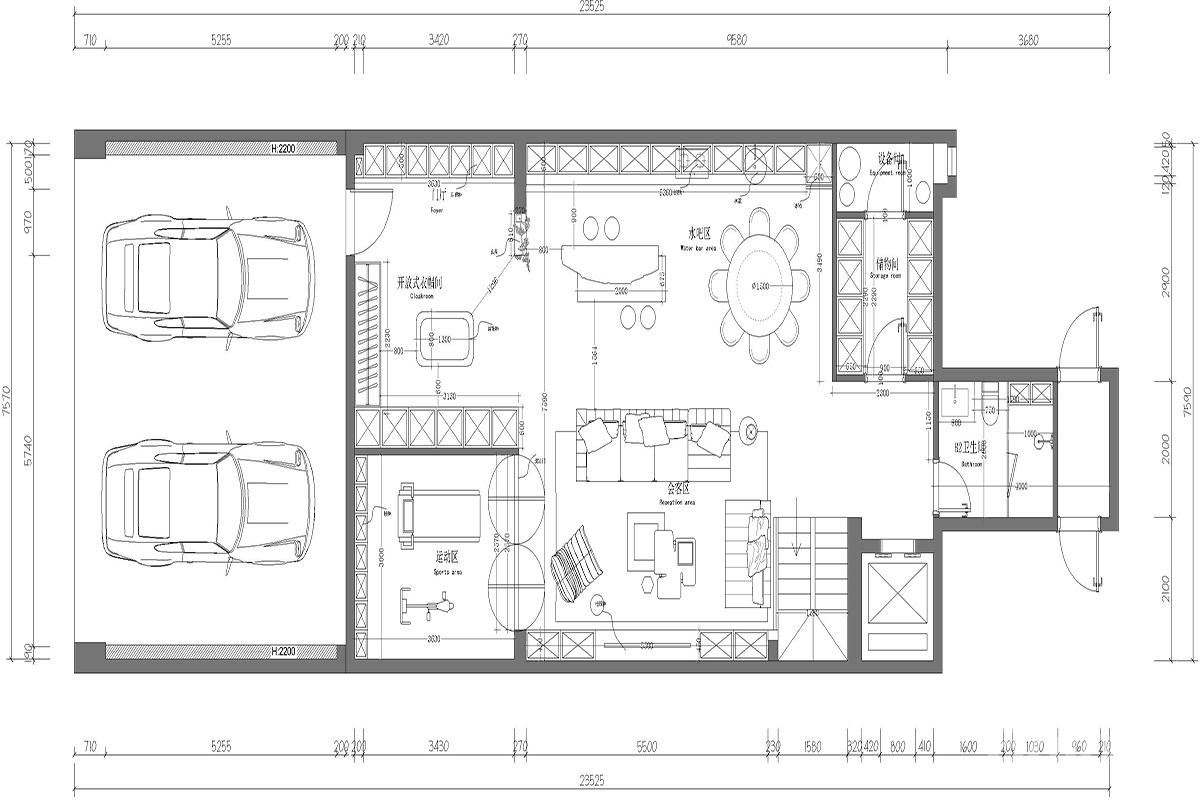
此图为地下二层,直接入户的双车位设计,提供了便利的停车体验,车库与室内空间无缝衔接,满足高端居住的需求。该层作为家庭的主要活动区,既保证了居住的私密性,又能满足家庭内部及外部的社交需求。

本案设计师

关蕾

高级主任设计师

  1. 168次
  2. 预约数
  1. 13年
  2. 从业年限
  1. 15套
  2. 作品案例

预约TA

法式风格的其它案例
更多

【案例】【大郊亭】法式 三居室 160㎡

赵波 赵波 6 5880浏览 这样装修多少钱?

【案例】【玉海园】法式 跃层/loft 120㎡

代伟欣 代伟欣 7 1197398浏览 这样装修多少钱?

【案例】【京西悦府】法式 别墅 300㎡

赵波 赵波 6 3200浏览 这样装修多少钱?

别墅的其它案例
更多

【案例】【龙熙瓦德拉玛庄园】古典 别墅 1314㎡

博洛尼 博洛尼 6 3504987浏览 这样装修多少钱?

【案例】【自在香山】古典 别墅 300㎡

高宏寅 高宏寅 6 1539078浏览 这样装修多少钱?

【案例】【懋源景玺】古典 别墅 775㎡

渠海东 渠海东 11 822778浏览 这样装修多少钱?