






本项目以宋代雅致美学为内核,面向追求东方人文气质与现代舒适生活的高净值人群,旨在打造 “古意今用” 的居住空间。通过将宋代极简、雅致的审美与当代居住需求深度融合,既传承传统文人的精神追求,又满足现代家庭的功能与体验需求,最终实现 “雅而不奢、简而不凡” 的居住体验。
更多客厅灵感
空间布局:采用开放式布局,将客厅与观景阳台相连,最大化引入自然光线,营造开阔通透的视觉感受。 材质与色彩:浅米色沙发搭配原木色茶几,地面铺设质感细腻的编织地毯,电视背景墙以木饰面与留白墙面结合,传递宋式 “素以为绚” 的美学特质。 细节亮点:无主灯设计配合线性灯带与磁吸轨道灯,营造层次丰富的柔和光影;定制木质收纳柜兼具展示与储物功能,让空间整洁有序。
更多餐厅灵感
空间布局:紧邻厨房形成高效餐厨动线,六人位餐桌满足家庭聚餐需求,靠窗位置预留充足采光。 材质与色彩:选用北美橡木餐桌,搭配线条利落的木质餐椅,浅灰色墙面与木质柜面形成温润的色彩层次。 细节亮点:餐边柜结合开放格与封闭收纳,内嵌暖光灯带展示藏品;双层圆环吊灯呼应宋式器物的简约线条,提升空间精致感。
更多卧室灵感
睡眠核心区:床体居中布局,两侧对称设置悬浮床头柜,保障动线流畅,契合宋代 “中正平和” 的空间哲学。 收纳系统:右侧整面木饰面暗藏通顶衣柜,无拉手设计维持视觉简洁性,满足储物需求的同时不破坏空间整体感。 采光与观景:左侧大面积落地窗搭配双层窗帘,既保障自然采光,又可通过纱帘营造 “半隐半透” 的朦胧意境,呼应宋式文人的含蓄审美。
更多卫生间灵感
采用干湿分离设计,洗手台、马桶区与淋浴区独立分区,优化使用效率。 以米白瓷砖为基底,搭配浅木色浴室柜与黑色金属边框,形成简洁雅致的视觉平衡。 智能马桶、恒温花洒提升使用舒适度;镜柜暗藏收纳空间,电热毛巾架保障卫浴干爽,兼具美观与实用。
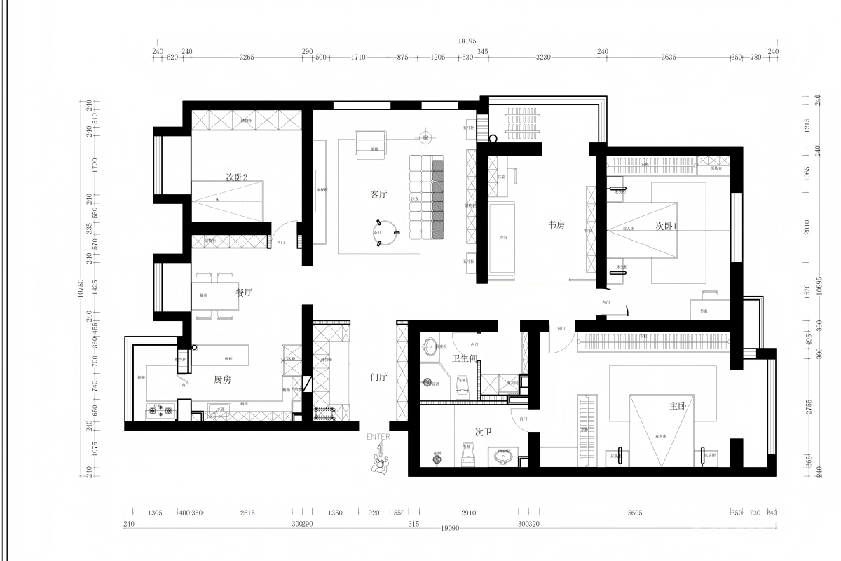
更多户型图灵感
用 “动静分区” 布局:公共区域(客厅、餐厅、厨房)集中在西侧,私密区域(主卧、次卧、书房)分布在东侧,有效减少了家庭活动对休息区的干扰。 双卫生间设计:主卫与次卫分离,满足多成员家庭的同时使用需求,提升生活效率。