×
北京
手机博洛尼 售前:400-6868-692 售后:400-666-3706
所在位置/首页优秀案例/国锐金嵿
点击浏览下一张
案例信息
  • 楼盘名称
  • 案例风格
  • 国锐金嵿
  • 混搭
  • 案例户型
  • 服务店面
  • 案例面积
  • 设计师
  • 180㎡
  • 梁春英
案例说明

将原房结构改为上下两层加电梯,F1 为休闲娱乐区,F2 用于满足家庭成员的居住需求,提供舒适、实用和美观的居住环境。设计风格以简约、实用为主,注重空间的利用和采光通风效果。

客厅
更多客厅灵感

客厅以现代简约为基底,浅米色沙发与深色复古电视柜形成冷暖平衡,橙色单人沙发成为视觉亮点,格纹地毯与百叶窗强化空间层次,柔和自然光与简洁软装共同营造出松弛且兼具质感的日常栖居氛围。

客厅
更多客厅灵感

采用开放式布局,公共区域的视觉联动性强,能让家人在休闲时自然互动。浅色系基底与木质地面弱化了空间边界,百叶窗与格纹地毯形成的光影与纹理变化,为日常休憩营造出富有呼吸感的动态氛围。

卧室
更多卧室灵感

主卧室以现代轻法式为核心,浅米色调搭配木质元素营造温润松弛感,墙面石膏线造型与弧形家具柔化空间线条,自然采光与柔和灯光交织,打造兼具优雅仪式感与舒适休憩功能的主卧套房。

卧室
更多卧室灵感

次卧1以现代轻奢为基调,浅米白墙面搭配石膏线造型勾勒优雅轮廓,深色床头与橙色台灯形成视觉焦点,嵌入式收纳柜与无主灯设计兼顾实用与美学,营造出兼具仪式感与松弛感的休憩空间。

卧室
更多卧室灵感

次卧2以现代极简为核心,纯白床品与整面收纳柜营造干净通透感,格纹地毯与艺术挂画增添层次,大尺度落地窗引入充足自然光,无主灯设计强化空间松弛感,打造兼具实用与美学的休憩场景。

厨房
更多厨房灵感

U型开放式厨房以极简白为基底,搭配大理石纹理墙面强化质感,中岛台兼顾备餐与社交功能,嵌入式电器与充足收纳保障高效动线,自然光与无主灯设计共同营造出兼具实用与美学的现代餐厨空间。

户型图
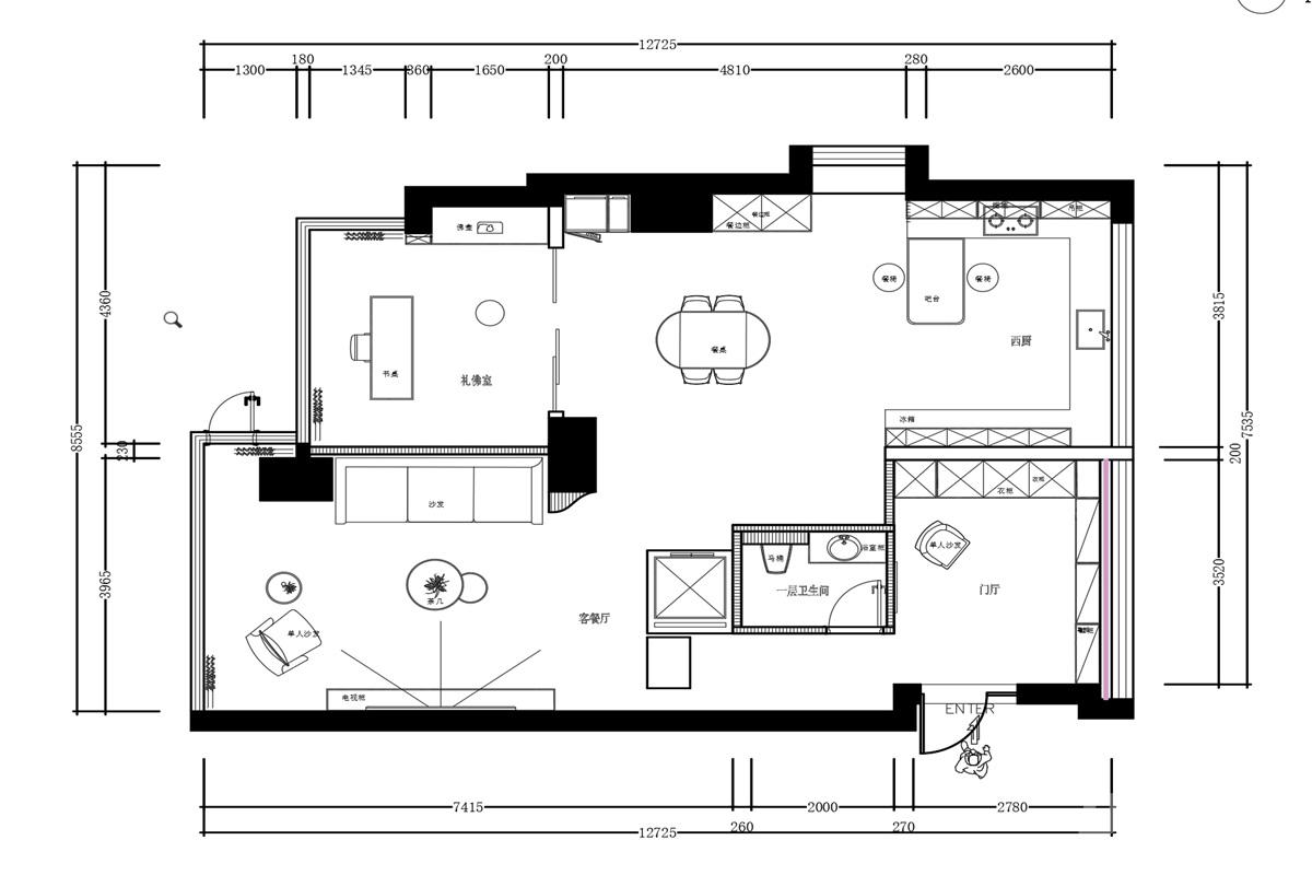
更多户型图灵感

一层主要为休闲娱乐空间,打造开放式空间,增强空间流动性,让动线看上去流畅减少交叉,兼具实用性与居住舒适度。

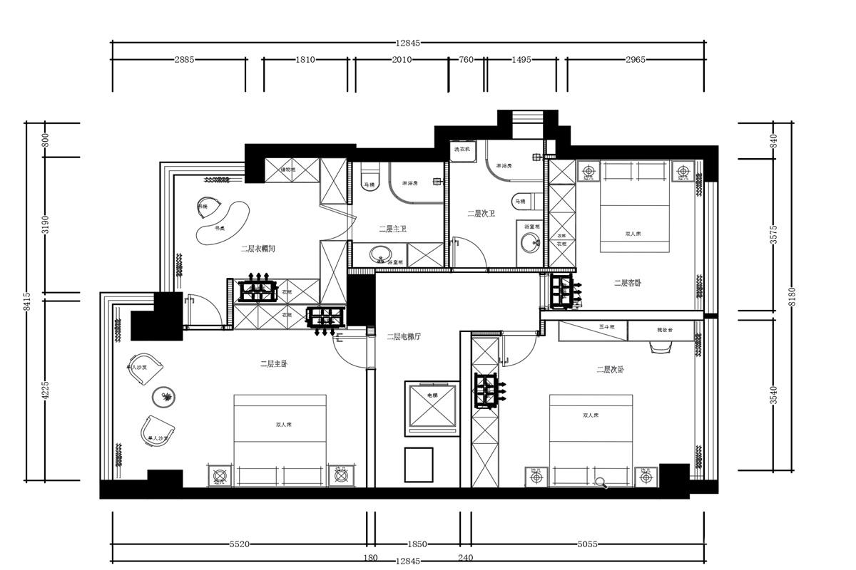
户型图
更多户型图灵感

二层奢居布局,主卧套房配备独立衣帽间与卫浴,保障居住私密与舒适;次卧空间规整实用,公区与休息区动线清晰,兼具仪式感与居住效率,适配改善型家庭的品质生活需求。

本案设计师

梁春英

高级主任设计师

  1. 168次
  2. 预约数
  1. 15年
  2. 从业年限
  1. 15套
  2. 作品案例

预约TA

混搭风格的其它案例
更多

【案例】【首开华润家园】混搭 三居室 150㎡

周超 周超 6 253055浏览 这样装修多少钱?

【案例】【观承别墅】混搭 其他 225㎡

吴佳璇 吴佳璇 8 3566浏览 这样装修多少钱?

【案例】【中海云筑】混搭 三居室 89㎡

梁春英 梁春英 6 2786浏览 这样装修多少钱?

跃层/loft的其它案例
更多

【案例】【航天城小区】古典 跃层/loft 200㎡

博洛尼 博洛尼 10 2969354浏览 这样装修多少钱?

【案例】【上城郡】古典 跃层/loft 280㎡

博洛尼 博洛尼 7 524792浏览 这样装修多少钱?

【案例】【中海9号公馆御龙府】古典 跃层/loft 360㎡

博洛尼 博洛尼 9 4323987浏览 这样装修多少钱?