






从中古风格为核心,强调空间的纯净与线条的流畅,追求简约而不简单的设计理念。通过精简的家具、柔和的色彩和适度的留白,打造出一个舒适、宁静而充满现代感的居住空间。
更多客厅灵感
色彩与基底 以奶白色墙面 + 浅灰柔光地面为基底,奠定柔和通透的奶油基调。 用深胡桃木色家具(边柜、茶几、单椅框架)作为中古元素锚点,平衡浅色空间的轻盈感,形成温暖对比。 局部点缀酒红色抱枕、黑白纹样软装,提升视觉层次与复古氛围。 硬装与线条 墙面采用简约石膏线框造型,弱化极简的冰冷感,同时保留法式优雅的精致感。 顶面为无主灯设计:线性灯带 + 磁吸轨道灯 + 嵌入式筒灯组合,营造均匀柔和的漫射光
更多客厅灵感
色彩与材质 以奶白 + 深胡桃木为主色调,木饰面的温润质感与白色柜体的简洁形成平衡,弱化了厚重感。 地面采用浅灰柔光砖,顶面为同色系乳胶漆,保证空间通透干净。 软装延续了黑白曲线纹样地毯、米色布艺单椅与木质家具,风格统一。 电视背景墙设计 木饰面 + 悬浮柜体:整面深胡桃木饰面打底,中间嵌入白色悬浮电视柜与封闭收纳柜,视觉上整洁大气。 暗藏灯带:电视柜下方预留灯带槽,暖光氛围灯提升夜间氛围感,同时
更多餐厅灵感
色彩与材质 以奶白 + 深胡桃木为主色调,延续全屋风格:白色柜体清爽干净,木饰面带来温润复古感。 地面采用浅灰柔光砖,与客厅地面一致,保证空间视觉连贯。 局部点缀金属、布艺、绿植,丰富层次且不破坏整体调性。 柜体与收纳设计 高柜 + 地柜 + 吊柜组合:左侧高柜可做隐藏式收纳(如冰箱、杂物),中间地柜 + 吊柜形成操作区,收纳容量充足。 开放格 + 灯带:吊柜下方预留开放酒架 / 置物
更多卧室灵感
色彩与基底 以奶白色墙面 + 暖棕木地板为基底,营造柔和温暖的睡眠氛围。 深棕床头软包、木质家具与金属灯具形成复古质感锚点,避免甜腻感。 局部点缀暖金色、米白、深棕,层次丰富却不杂乱。 硬装与线条 床头墙采用简约石膏线框造型,与客厅墙面呼应,保持全屋风格统一。 顶面为无主灯 + 线性灯带设计,搭配嵌入式空调出风口,简洁精致。 右侧大窗搭配半透白纱 + 深棕布帘,兼顾采光与隐私,自然光感柔和。 家具
更多卧室灵感
色彩与基底 以奶白色墙面 + 浅橡木地板为核心,奠定温柔治愈的基调,视觉上更显明亮通透。 深胡桃木床头与家具作为复古质感锚点,平衡浅色空间的轻盈感,呼应全屋中古风元素。 局部点缀暖棕、脏粉、金属铜色,让层次更丰富却不杂乱。 硬装与线条 床头墙采用简约石膏线框造型,与主卧、客厅的墙面设计形成呼应,保证全屋风格连贯性。 顶面为无主灯 + 线性灯带设计,搭配嵌入式空调出风口,简洁精致且不压抑。
更多玄关灵感
色彩与材质 以奶白墙面 + 深胡桃木饰面为基底,延续全屋 “温柔 + 复古” 的调性,木饰面的温润质感中和了白色的清冷。 地面采用浅灰柔光砖,与客餐厅地面完全一致,保证空间视觉连贯。 局部点缀金属铜色挂钩、暖光灯带、艺术画,提升精致感与复古氛围。 功能与收纳设计 挂衣区:右侧墙面设置铜色挂钩与木质挂衣杆,方便临时悬挂外套、包包,兼顾实用与展示。 悬浮置物台:中部设计悬浮式木饰面台板,下方暗藏暖光灯
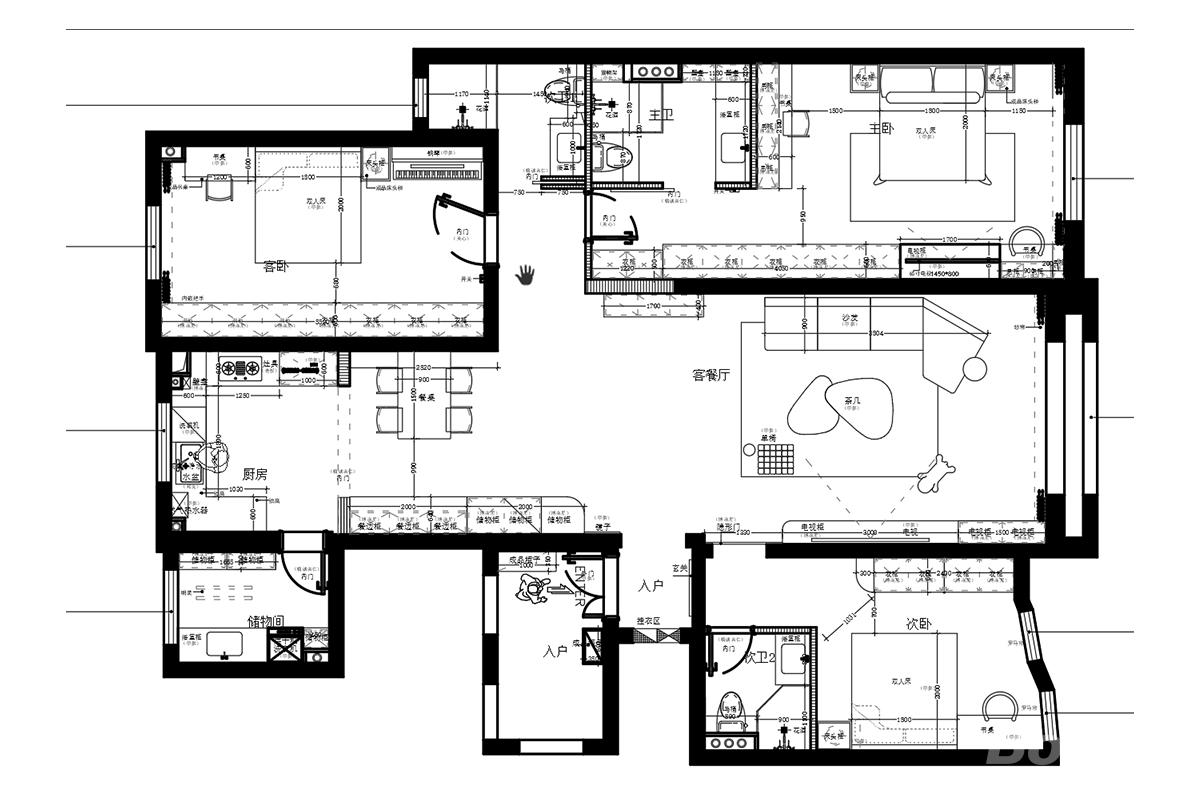
更多户型图灵感
格局方正,动静分区清晰 动区(客餐厅、厨房、入户)与静区(卧室)完全分离,日常活动不干扰睡眠,居住舒适度高。 双卫 + 主卧套房设计 主卧配备独立主卫和步入式衣帽间,隐私性与便利性拉满;次卫靠近次卧与客餐厅,满足多人同时使用需求。 收纳系统充足且分布合理 入户玄关 + 丝衣区、各卧室衣柜 / 书柜、独立储物间,以及厨房、餐边柜等,能充分满足多人口家庭的杂物、衣物、家电等收纳需求。