







这是一套轻奢法式风设计。整体以暖米色为基底,搭配深木色地板与精致石膏线,营造优雅氛围。白色雕花壁炉为视觉中心,搭配复古黑色水晶吊灯与古典挂画,尽显法式浪漫。
更多客厅灵感
这个空间是轻奢法式风格的客厅设计,整体以暖米色为基调,搭配深木色地板与精致石膏线、雕花吊顶,营造出优雅复古的氛围。白色雕花壁炉作为视觉核心,搭配古典建筑挂画与黑色水晶吊灯,尽显浪漫质感。浅米色拉扣沙发与丝绒单人椅围合出舒适会客区,大落地窗引入充足自然光,左侧带灯台阶的弧形楼梯与大理石吧台,兼顾美观与实用性,整体奢华大气又温馨宜居。
更多客厅灵感
这是一间轻奢法式风的多功能休闲厅,整体以暖米色为基调,搭配深木色人字拼地板与精致雕花石膏线护墙板,顶部格状吊顶内嵌灯带,搭配华丽水晶吊灯,尽显复古精致感。左侧大理石拱形背景墙与白色电视柜形成视觉焦点,深蓝色弧形沙发与红白条纹单人椅围合出舒适会客区,右侧摆放健身器材,实现休闲与运动功能的融合,整体优雅大气又充满生活气息。
更多餐厅灵感
这个空间是轻奢法式复古风的餐厅设计,整体以暖米色为基调,搭配深木色人字拼地板与精致石膏线,营造出优雅温馨的氛围。弧形吊顶内嵌暖光灯带,搭配复古黑色水晶吊灯,提升了空间精致感。整面通顶的拱形玻璃酒柜与大理石背景墙,兼具收纳与展示功能。深木色圆餐桌搭配藤编与软包结合的餐椅,大窗户引入自然光,整体复古雅致又充满生活气息。
更多卧室灵感
这是一间轻奢法式复古风卧室,整体以柔和暖米色为基调,搭配深木色地板与精致石膏线护墙板,营造出优雅静谧的氛围。顶部雕花吊顶搭配华丽水晶吊灯,两侧金色壁灯点缀其间,尽显复古精致感。深灰色软包大床搭配层次丰富的床品,与同色系床头柜相得益彰。左侧大飘窗引入自然光线,右侧通顶衣柜满足收纳需求,整体温馨雅致,兼具美观与实用性。
更多儿童房灵感
这是一间儿童房,整体以暖米色为基调,搭配深木色地板与精致石膏线,营造出柔和治愈的氛围。浅米色软包单人床搭配层次丰富的床品与条纹盖毯,舒适又温馨。右侧通顶衣柜与开放式书桌一体设计,满足收纳与学习需求,雾霾蓝座椅增添活泼感。云朵造型吊灯与趣味卡通挂画、地面玩具组合,让空间充满童趣,同时兼顾实用性与美观度。
更多卫生间灵感
这是一间轻奢法式复古风的卫生间,整体以暖米色为基底,搭配纹理自然的粉调大理石墙面,营造出优雅精致的氛围。双盆设计的悬浮浴室柜采用深棕木色柜门,搭配宽大的大理石台面,兼顾实用与质感;上方悬挂着两扇鎏金雕花边框的拱形镜,复古感十足。智能马桶与右侧浴缸功能分区清晰,窗户引入柔和自然光,柜底氛围灯与细节软装点缀其间,整体高级又温馨。
更多户型图灵感
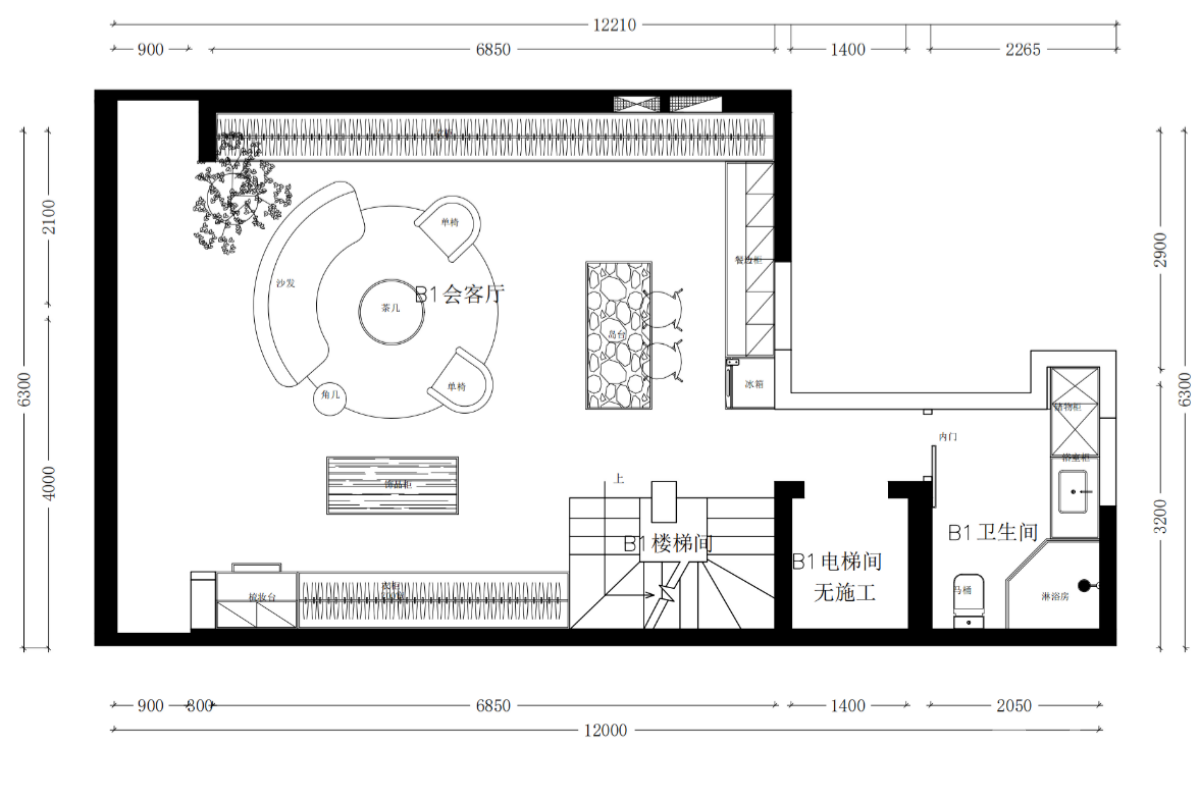
这是一套负一层多功能户型,核心为 B1 会客厅,采用环形沙发围合式布局,搭配品台区与收纳柜,兼具会客与休闲功能。中部设楼梯间,连通上下空间,电梯间暂未施工。右侧规划独立卫生间,功能分区清晰。左侧预留收纳与轻食操作区,整体动线流畅,兼顾社交、收纳与基础生活需求。
更多户型图灵感
一层入户即见大面宽客厅,双沙发布局搭配休闲单椅,采光充足。厨房独立分区,紧邻餐厅,动线流畅。餐厅设圆桌,适配多人用餐。楼梯间、电梯间居中,洗衣房紧邻餐厅,功能分区清晰。动静分离,公共活动区集中,空间利用率高,适合家庭日常与社交需求。