×
北京
手机博洛尼 售前:400-6868-692 售后:400-666-3706
所在位置/首页优秀案例/中建·国望府
点击浏览下一张
案例信息
  • 楼盘名称
  • 案例风格
  • 中建·国望府
  • 轻奢
  • 案例户型
  • 服务店面
  • 案例面积
  • 设计师
  • 850㎡
  • 郑波
案例说明

这套设计以「流动的现代轻奢」为核心,贯穿全屋的弧形线条与温润低饱和色调,构筑出柔和高级的基底氛围。 空间通过挑空、天窗与通透玻璃界面,最大化引入自然光,消解了功能区的边界感;并以无主灯与隐藏式光源营造细腻层次,奢石、艺术装置与金属细节作为点睛之笔,强化空间质感。 从客餐厅、休闲区到书房、卧室,设计兼顾了开放互动与私密静谧的双重需求,将艺术感与生活功能完美融合,打造出一套兼具秩序感、通透度与高级美学的当代居住空间。

客厅
更多客厅灵感

挑空客厅以大理石与暖调灯光打造通透感,艺术吊灯与壁炉营造氛围,红调软装点睛,尽显轻奢优雅的空间气质。

客厅
更多客厅灵感

帮我整理设计思路 60字 以奢石吧台与环形吊灯打造视觉焦点,低饱和基调融入蓝、红软装点缀,动线流畅,营造兼具艺术感与质感的轻奢公区。

客厅
更多客厅灵感

以纯白为基底,通过弧形线条与艺术装置打造流动感空间,无主灯与天窗引入柔和光线,营造通透优雅的轻奢公区氛围。

客厅
更多客厅灵感

以流畅的弧形动线串联功能区,通高采光与通透玻璃消弭边界,艺术装置与隐藏光源点缀,打造兼具秩序感与高级感的复合空间。

餐厅
更多餐厅灵感

用以奢石与温润木饰面打造空间骨架,弧形线条柔化边界,暗藏灯光烘托氛围,于细节处演绎轻奢高级质感,情绪价值。

餐厅
更多餐厅灵感

以奢石岛台与艺术吊灯为视觉焦点,温润木色与高级白调交织,大面采光引入自然,打造通透优雅的餐厨一体化空间。

卧室
更多卧室灵感

以柔和弧面线条勾勒空间轮廓,低饱和暖调营造静谧氛围,软包与木饰面碰撞温润质感,无主灯与隐式收纳,于细节诠释轻奢高级感。

卧室
更多卧室灵感

以柔和弧面线条勾勒空间,低饱和暖调营造静谧氛围,软包木饰面交织温润质感,无主灯与开放收纳尽显轻奢格调。

其他
更多其他灵感

以纯白弧形楼梯为视觉核心,搭配艺术雕塑与暖光氛围灯,结合钢琴区的静谧感,打造流动且富有高级质感的空间叙事。

其他
更多其他灵感

以圆形吊顶与环形灯塑造空间焦点,软包柱体柔化边界,深调展示柜与艺术雕塑点缀,营造精致轻奢的休闲氛围。

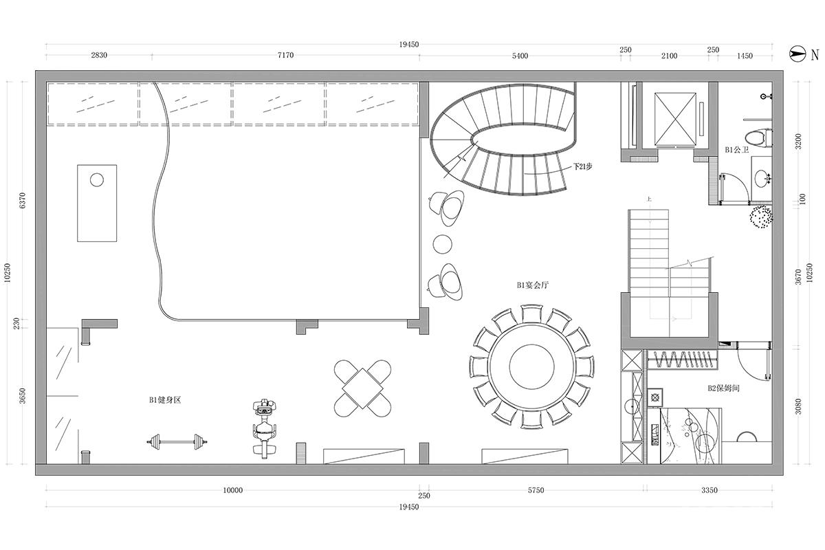
户型图
更多户型图灵感

这套设计以 “流动的高级感” 为核心,用温润低饱和基底搭配利落弧面线条,通过无主灯与天窗引入柔光,以奢石、艺术装置点缀,打造通透优雅、兼具功能与质感的现代轻奢居所。

本案设计师

郑波

钛马赫别墅设计事务所

  1. 202次
  2. 预约数
  1. 20年
  2. 从业年限
  1. 36套
  2. 作品案例

预约TA

轻奢风格的其它案例
更多

【案例】【西山御园】轻奢 五居室 300㎡

闫磊 闫磊 6 4382945浏览 这样装修多少钱?

【案例】【西山壹号院】轻奢 四居室 400㎡

谭为 谭为 9 1143079浏览 这样装修多少钱?

【案例】【宝坻时光小镇101】轻奢 别墅 220㎡

博洛尼 博洛尼 6 903862浏览 这样装修多少钱?

其他的其它案例
更多

【案例】【和平新城】现代 其他 100㎡

刘一禛 刘一禛 6 984244浏览 这样装修多少钱?

【案例】【当代MOMA】现代 其他 350㎡

博洛尼 博洛尼 6 3655422浏览 这样装修多少钱?

【案例】【东方银座】现代 其他 80㎡

博洛尼 博洛尼 6 2533166浏览 这样装修多少钱?