×
北京
手机博洛尼 售前:400-6868-692 售后:400-666-3706
所在位置/首页优秀案例/亚运新新家园
点击浏览下一张
案例信息
  • 楼盘名称
  • 案例风格
  • 亚运新新家园
  • 奶油
  • 案例户型
  • 服务店面
  • 案例面积
  • 设计师
  • 200㎡
  • 王旭
案例说明

业主讨厌冷硬、尖锐、压抑的空间,偏爱软糯、温暖、无攻击性的氛围。崇尚简约但有温度、精致但不张扬的日常美学。

客厅
更多客厅灵感

超大圆形悬浮吊顶,配合右侧弧形垭口,弱化硬朗直角,柔化空间。摒弃了传统主灯,用嵌入式光源 + 灯带打造 “见光不见灯” 的效果,让空间更简洁、高级,同时避免了主灯的压迫感。

客厅
更多客厅灵感

以奶咖、米白为主色,无高饱和跳色,用深棕抱枕、黑色线条做层次点缀,避免空间发飘。弱化直角,用弧线柔化空间,拉伸层高视觉,营造无压感氛围;垭口整合窗区,强化空间整体性

餐厅
更多餐厅灵感

整墙柜体采用无拉手极简分割,弱化冗余造型;右侧弧形垭口柔化空间,延续奶油风 “无攻击性” 的温柔气质,同时优化动线。

卧室
更多卧室灵感

整墙做分缝造型,无冗余装饰,弱化视觉焦点,营造安静睡眠氛围;线条简洁利落,强化空间高级感。左侧做嵌入式开放格 + 地台,搭配双层窗帘,打造多功能休闲区,兼顾采光与隐私,提升空间利用率。

其他
更多其他灵感

以低饱和暖调为基底,最大化利用斜顶阁楼空间,打造集睡眠、休闲、储物、家政于一体的多功能治愈空间,适配奶油风客户 “空间利用最大化、温柔好住” 的需求。

户型图
更多户型图灵感

一层:入户门厅居中,辐射厨房、餐厅、书房 、客厅,动静分区清晰。入户即见餐厅,动线顺畅,入户处设置鞋柜,保证玄关仪式感。

户型图
更多户型图灵感

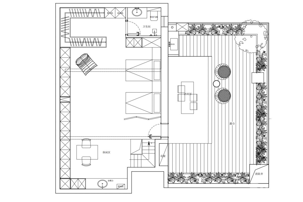
阁楼:以「私密睡眠 + 休闲社交 + 户外露台」为核心,打造上层专属静谧空间,与下层公区形成动静分层,实现 “治愈、松弛、多功能” 的居住需求。

本案设计师

王旭

主任设计师

  1. 168次
  2. 预约数
  1. 13年
  2. 从业年限
  1. 18套
  2. 作品案例

预约TA

奶油风格的其它案例
更多

【案例】【澳林观邸】奶油 四居室 200㎡

康明 康明 9 74449浏览 这样装修多少钱?

【案例】【首城国际】奶油 二居室 150㎡

叶曼 叶曼 6 515769浏览 这样装修多少钱?

【案例】【豪柏公寓】奶油 三居室 128㎡

蒋胜 蒋胜 6 4239浏览 这样装修多少钱?

别墅的其它案例
更多

【案例】【龙熙瓦德拉玛庄园】古典 别墅 1314㎡

博洛尼 博洛尼 6 3505907浏览 这样装修多少钱?

【案例】【自在香山】古典 别墅 300㎡

高宏寅 高宏寅 6 1539349浏览 这样装修多少钱?

【案例】【懋源景玺】古典 别墅 775㎡

渠海东 渠海东 11 823558浏览 这样装修多少钱?