















本案为两层复式住宅,以温润木作与柔和暖调为基底,打造松弛治愈的居家氛围。一层布局开放通透,客餐厅一体化设计,搭配弧形阳台拓展采光与活动空间,餐厨动线流畅,楼梯区做造型优化,兼顾通行与视觉层次。二层规划私密起居空间,设置双卫、主卧与休闲区,衔接户外露台,满足休憩与社交需求。整体延续效果图的复古松弛感,以弧形元素、温润木饰面与艺术软装呼应,在功能上实现动静分区,于美学上营造温暖治愈的居家质感,适配多元生活场景。
更多客厅灵感
米白色沙发搭配实木茶几,营造松弛感;复古吊灯与黑白棋盘格地毯提升空间层次,拱形玻璃门划分客餐厅,保证采光通透。电视墙做嵌入式展示柜,兼具收纳与展示功能,整体风格统一,适配家庭社交与日常起居。
更多客厅灵感
米白色云朵沙发搭配实木茶几,舒适感拉满;复古吊灯与黑白棋盘格地毯呼应整体风格,嵌入式书柜兼具收纳与展示功能。拱形垭口拓展空间通透感,绿植点缀增添生机,动线流畅,功能分区合理,适配多元生活场景。
更多餐厅灵感
餐厅打造通透开放的用餐空间。实木餐桌搭配多把风格各异的餐椅,丰富空间层次;嵌入式餐边柜与大理石台面提升实用性,拱形玻璃门划分客餐厅,保证采光通透。复古吊灯与花艺装饰提升格调,空间与客厅、厨房动线流畅,适配多元用餐场景。
更多卧室灵感
主卧打造静谧私密的休憩空间。实木床架搭配复古吊灯,营造温润氛围;双纱帘引入柔和自然光,提升空间通透感。嵌入式梳妆台与壁龛柜兼顾收纳,艺术挂画与壁灯烘托氛围,动线流畅,功能完善,适配沉浸式睡眠与梳妆需求,营造治愈居家体验。
更多卧室灵感
阁楼卧室以斜顶空间为载体,打造通透松弛的休憩区。玻璃护栏强化空间通透感,无主灯设计提升层高视觉感;实木床架搭配休闲单椅,兼顾休憩与放松。艺术挂画与绿植点缀空间,暖调氛围治愈,动线流畅,功能多元,适配睡眠、休闲等多元生活场景。
更多卧室灵感
阁楼卧室以玻璃护栏划分空间,打造通透开放的休憩区。黑框玻璃既保证隐私又不遮挡采光,实木床架搭配休闲椅,营造松弛氛围。艺术挂画与雕塑摆件提升格调,暖光氛围灯烘托温馨感,空间动线流畅,功能完善,适配睡眠、休闲等多元需求,风格统一且富有层次
更多书房灵感
书房打造静谧治愈的学习工作空间。L型一体化书桌,兼顾收纳与通透感;百叶窗引入柔和自然光,营造光影层次。温莎椅与木质吊顶呼应整体风格,艺术挂画点缀墙面,空间动线流畅,功能与美学兼具,适配沉浸式办公与阅读需求。
更多书房灵感
二层书房以玻璃护栏界定空间,打造通透开放的工作区。实木书桌与储物柜兼顾收纳与实用性,百叶窗引入柔和自然光,营造静谧氛围。绿植与艺术摆件点缀空间,无主灯设计提升质感,动线流畅,功能完善,适配沉浸式办公与阅读需求,风格温润雅致。
更多厨房灵感
厨房打造实用通透的烹饪空间。L型橱柜布局合理,动线流畅,兼顾收纳与操作;百叶窗引入柔和自然光,提升空间明亮度。嵌入式家电提升整洁度,洗衣机区拓展功能,石材台面耐磨易打理,整体风格与全屋统一,适配日常烹饪与家务需求。
更多卫生间灵感
打造通透实用的卫浴空间。悬浮式岩板洗手台搭配木作柜体,兼顾收纳与轻盈感;智能马桶提升使用体验,顶喷花洒打造舒适淋浴区。百叶窗引入柔和自然光,S型电热毛巾架兼具实用与装饰性,无主灯设计搭配氛围灯,营造静谧治愈的卫浴氛围,动线流畅,功能完善。
更多其他灵感
楼梯间以极简通透为设计核心,打造视觉通透的过渡空间。大面弧形落地窗引入山景与自然光,营造开阔视野;黑色扶手线条利落,串联上下层动线。艺术挂画点缀墙面,无主灯设计提升空间质感,整体风格简约大气,衔接各功能区,兼具通行与观景双重体验
更多其他灵感
露台以自然山景为背景,打造开放式户外休闲区。防腐木餐桌搭配藤编椅,适配家庭聚餐与休闲;绿植花箱营造自然氛围,木质围栏保证隐私。遮阳伞提升实用性,石材地面耐磨易打理,整体空间通透开阔,引景入室,适配户外社交、休憩等多元生活场景。
更多户型图灵感
二层聚焦私密起居,规划主卧、双卫与多元休闲区,衔接户外露台,拓展生活场景。楼梯衔接一层,保证动线流畅;主卧独立静谧,配套完善;休闲区与露台可满足办公、会客、休憩等多元需求,双卫设计提升居住便利性,实现动静分离,打造舒适私密的居家休憩空间。
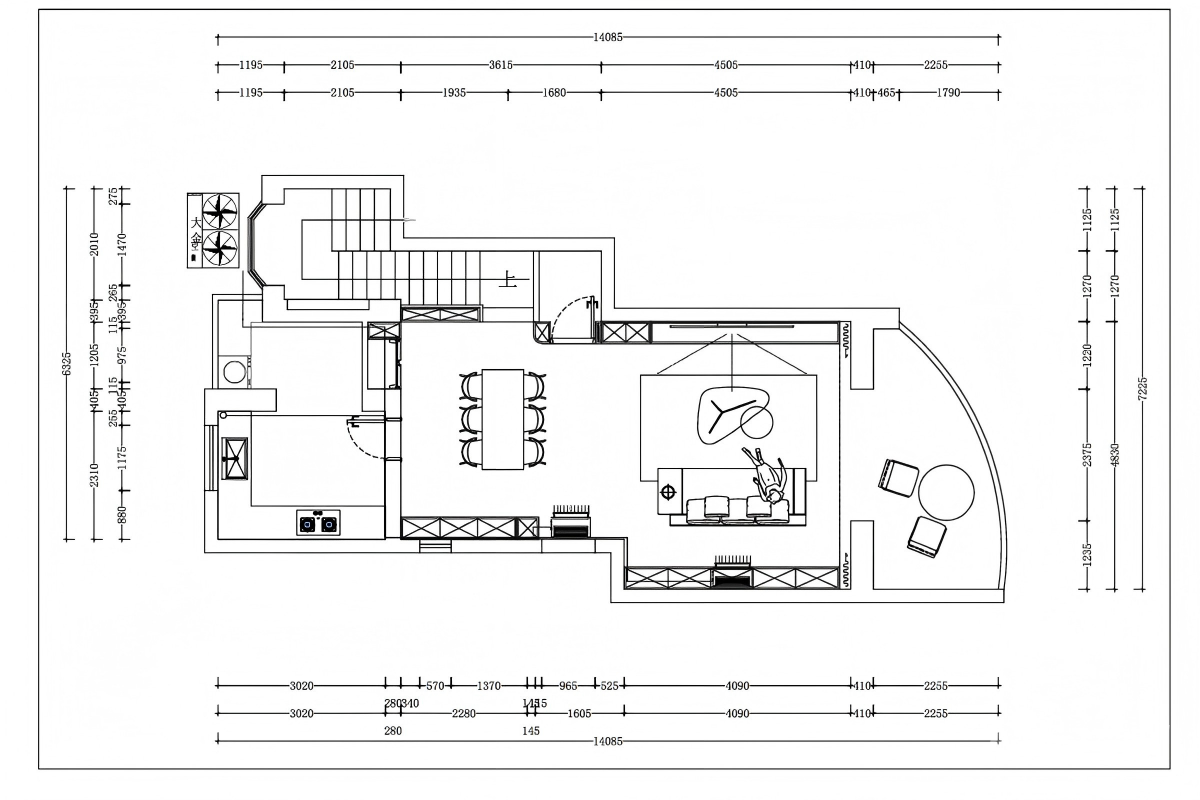
更多户型图灵感
一层以客餐厨一体化为核心,打造开放通透的公共空间。弧形阳台拓展采光与活动区,提升空间灵动性;餐厨动线流畅,紧邻厨房,满足日常用餐需求。楼梯区做造型优化,兼顾通行与视觉层次,同时合理规划厨房、储物等功能区,实现动静分区,适配家庭社交与日常起居,营造松弛治愈的公共氛围。