






本设计以现代意式轻奢美学为核心,秉持 “少即是多” 的设计哲学,旨在打造兼具高级质感与生活温度的理想居所。空间以深木色与浅灰调构建沉稳基底,通过材质的精准配比实现冷暖平衡。
更多客厅灵感
客餐厅一体化布局,弱化空间边界,强化动线流畅性。客厅以奶白色模块化沙发为视觉核心,搭配天然石材茶几与肌理感地毯,用温润材质中和极简的冷感;整面竖百叶帘柔化自然光,营造出朦胧治愈的氛围。餐厅以酒红色餐椅作为点睛之笔,打破空间单调,搭配黑金花大理石岛台与线性吊灯,在简约中注入精致轻奢感。
更多客厅灵感
设计以家庭影院为核心,整面巨幕观影墙搭配环形艺术吊灯与弧形落https://www.bjbln.cn/upload/2026_04/afb8f88a8b2139539bb724c07286d88c.jpg地灯,营造层次丰富的光影氛围;右侧天然毛石文化墙与绿植引入自然肌理,刚柔并济中和空间的精致感;左侧玻璃展示柜实现收纳与展示的双重功能,强化空间的轻奢质感。
更多其他灵感
以专业健身器材为核心布局,跑步机、椭圆机等设备分区规划,满足多元运动需求;右侧定制收纳柜整合哑铃、瑜伽垫等器材的收纳,实现功能与整洁的平衡;顶部环形吊灯与无主灯设计营造柔和光影,天窗引入自然采光,搭配绿植与休闲椅,在运动之余提供放松休憩的角落。
更多衣帽间灵感
整体采用对称式布局,以浅木色柜体与玻璃柜门为主体,搭配嵌入式氛围灯,营造出通透、整洁且富有层次的视觉效果。 地面采用鱼骨拼木地板,强化空间的精致感与延伸感;中央中岛台作为视觉核心,兼具收纳与梳妆功能,提升空间的仪式感;顶部环形艺术吊灯与天窗设计,引入自然采光与艺术光影,让空间更显开阔明亮。
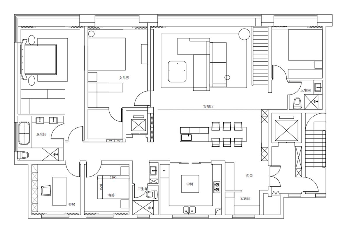
更多户型图灵感
本方案以通透动线、功能分区、动静分离为核心,打造适配多代同堂的高端居住空间。整体采用客餐厅一体化的开放式布局,最大化公共区域的通透感与互动性,中厨独立封闭、西厨吧台衔接客区,实现中西双厨的功能互补。
更多户型图灵感
本方案以私享化、场景化、功能复合为核心,打造承载多元生活需求的复式二层空间。整体围绕家庭核心动线(楼梯)布局,将空间划分为四大功能组团:右侧紧邻楼梯设置独立衣帽间,实现衣物收纳与上下楼动线的高效衔接;中部打造开放式家庭影音休闲区,以围合式沙发为核心,搭配影音设备,营造沉浸式家庭娱乐氛围;左侧整合健身区、绘画书房区,满足运动、创作、办公等多元需求,同时配套独立卫生间与储物间,完善功能细节。