









本案复式客厅以自然原木风 + 侘寂美学为设计内核,打造通透松弛、充满烟火气的挑高起居空间。整体以温润原木色与奶白色为基底,搭配藤编、棉麻等天然材质,弱化空间边界感,营造出治愈松弛的居家氛围。 挑高空间搭配大面积采光窗,引入充沛自然光,让整个空间通透明亮;左侧藤编屏风作为软隔断,既划分了功能区域,又以通透感保留了空间的开阔感。核心区域以慵懒的布艺沙发、实木茶几与藤编休闲椅构建舒适会客区,搭配艺术感云朵吊灯与线性无主灯设计,营造层次丰富的柔和光影。空间中融入绿植、花艺等自然元素,结合嵌入式电梯与楼梯的一体化设计,在极简的线条与天然材质的碰撞中,平衡了复式空间的通透感与居家的温暖感,打造出兼具美学与
更多客厅灵感
本案以原木风 + 自然松弛感为设计核心,打造通透治愈的复式起居空间。整体以温润原木色与奶白色为基底,搭配浅木色地板与棉麻软装,营造出柔和舒展的居家氛围。 空间以藤编屏风作为软隔断,巧妙划分客餐厅功能区,既保留了空间的通透感,又以天然肌理增添复古氛围。客厅区域以休闲躺椅为核心,搭配云朵造型吊灯与大面落地窗,引入充沛自然光,打造沉浸式休闲区;餐厅区域以原木餐桌衔接,动线流畅,兼顾用餐与社交需求。
更多客厅灵感
本案客厅以自然原木风 + 侘寂美学为核心,打造松弛治愈、充满艺术感的复式起居空间。整体以温润原木色与奶白色为基底,搭配棉麻、藤编等天然材质,营造出慵懒松弛的居家氛围。 空间以大尺寸布艺沙发为核心,搭配实木积木茶几与藤编休闲椅,构建舒适会客区;左侧艺术挂画与复古音响为空间注入艺术气息,藤编屏风作为软隔断,既划分功能区,又保留通透感。云朵造型主灯搭配无主灯筒灯,结合充沛自然光,营造层次丰富的柔和光影。
更多客厅灵感
挑高空间搭配大面积采光窗,引入充沛自然光,让整个空间通透明亮;左侧藤编屏风作为软隔断,既划分了功能区域,又以通透感保留了空间的开阔感。核心区域以慵懒的布艺沙发、实木茶几与藤编休闲椅构建舒适会客区,搭配艺术感云朵吊灯与线性无主灯设计,营造层次丰富的柔和光影。空间中融入绿植、花艺等自然元素,结合嵌入式电梯与楼梯的一体化设计,在极简的线条与天然材质的碰撞中,平衡了复式空间的通透感与居家的温暖感
更多书房灵感
本案书房以现代原木风为设计核心,打造兼具高效办公与静谧阅读的多功能空间。整体以温润胡桃木色与奶白色为基底,通顶书柜整合藏书、展示与酒柜功能,暗藏灯带营造层次氛围。大尺寸实木书桌搭配线性吊灯,优化办公动线;落地窗引入自然光,搭配艺术落地灯与绿植点缀,在极简线条与天然材质的碰撞中,平衡了工作效率与居家松弛感。
更多其他灵感
本案以原木自然风为设计内核,打造通透治愈、采光绝佳的复式挑空空间。整体以温润原木色与奶白色为基底,搭配浅木色通铺地板,营造出舒展松弛的居家氛围。 挑空设计搭配大面积落地窗,引入充沛自然光,让上下两层空间通透明亮;二层以玻璃护栏做隔断,既保证了空间的开阔感,又弱化了结构的厚重感。二层书房区域以实木书桌为核心,搭配整墙书柜,满足办公、藏书需求;云朵造型吊灯与线性灯槽,营造层次丰富的柔和光影。
更多其他灵感
本案以日式原木风 + 侘寂美学为核心,打造松弛治愈的多功能起居空间。整体以温润木色与奶白为基底,藤编家具、棉麻软装与天然绿植相融,营造自然通透的氛围。纸艺吊灯与艺术落地灯勾勒柔和光影,整墙博古架兼顾收纳与展示,客茶区动线流畅,在极简线条与天然肌理中,平衡了休闲、会客与品茗的多元需求。
更多户型图灵感
本设计以 **“分层收纳 + 沉浸式社交”** 为核心逻辑,对地下功能层进行全场景规划。以电梯为垂直动线核心,左侧串联入户门厅、设备柜与成品矮柜,构建 “入户即收纳” 的缓冲系统,规整鞋物、运动器材与设备柜体,实现日常物品的精细化分类与高效取用;右侧布局会客客厅与茶室功能区,搭配水吧展示系统,打造家庭休闲社交的核心场域。
更多户型图灵感
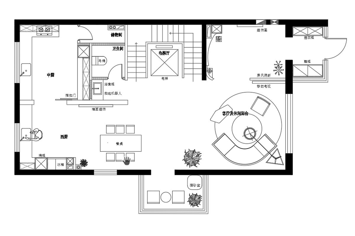
本方案以开放式社交 + 精细化功能为核心,打造通透流畅的家庭核心生活层。以电梯厅为入户枢纽,右侧规划弧形围合式客厅,搭配移动电视与屏风隔断,实现灵活可变的休闲社交场景;左侧整合中西双厨,中厨封闭隔绝油烟,西厨开放衔接餐区,形成一体化餐厨动线,满足烹饪、聚餐多元需求。
更多户型图灵感
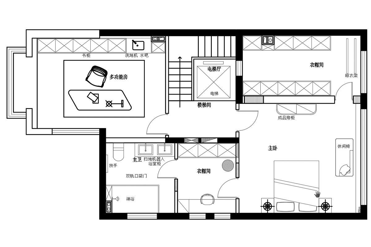
方案以极致私密、功能复合为核心,打造专属主人的顶层奢享起居层。以电梯厅为垂直动线枢纽,东侧规划主卧套房,将卧室、双衣帽间与主卫一体化串联,形成闭环式私密空间:主卧搭配休闲椅打造休憩角,双衣帽间实现衣物精细化分类收纳,主卫以双轨口袋门分隔干湿区,融入扶手、双台盆等细节,兼顾舒适与实用。