






本案以现代极简风为核心,打造通透开阔的大平层起居空间。整体以低饱和灰调与原木色为基底,无主灯设计搭配线性灯带,营造层次丰富的柔和光影。整墙定制柜整合酒柜、收纳与展示功能,奶油风模块沙发与原木餐桌构建客餐一体化布局,在极简线条与天然材质的碰撞中,平衡了社交、用餐与休闲的多元需求。
更多客厅灵感
打造通透开阔的大平层起居空间。整体以低饱和灰调与原木色为基底,无主灯设计搭配线性灯带,营造层次丰富的柔和光影。整墙定制柜整合酒柜、收纳与展示功能,奶油风模块沙发与原木餐桌构建客餐一体化布局,在极简线条与天然材质的碰撞中,平衡了社交、用餐与休闲的多元需求。
更多客厅灵感
客厅以现代极简风为核心,打造通透高级的复式起居空间。整体以温润木色与浅灰大理石为基底,无主灯设计搭配线性灯带,营造层次光影。整墙定制柜整合收纳与展示功能,嵌入式电子壁炉增添温馨氛围;奶油风模块沙发搭配艺术单椅,构建舒适休闲区。大面积竖百叶窗引入自然光,勾勒开阔视野,在极简线条与天然材质中,平衡了空间高级感与居家松弛感。
更多玄关灵感
以现代极简风为核心,打造通透高级的大平层动线空间。整体以深木色护墙与大理石地面为基底,无主灯 + 线性轨道灯营造层次光影。艺术雕塑为玄关注入仪式感,客餐区以原木餐桌衔接,整墙定制柜整合收纳与展示,在极简线条与天然材质中,平衡了空间通透感与居家实用需求。
更多其他灵感
本案阁楼书房以现代简约 + 书香美学为核心,打造静谧治愈的阅读社交空间。整墙通顶书柜以暖光灯带,营造沉浸式藏书氛围;奶油风休闲椅与大理石圆桌,构建舒适会客区。艺术挂画与绿植点缀,斜顶空间以无主灯设计优化光影,在极简线条与温润木作中,平衡了阅读、办公与社交的多元需求。
更多其他灵感
本案茶室以现代极简 + 东方禅意为核心,打造静谧雅致的品茗空间。艺术感茶桌为视觉中心,搭配温润木作茶柜与暖光展示格,营造沉浸式茶歇氛围。天窗引入自然光,艺术壁灯与线性筒灯勾勒层次光影,在极简线条与禅意软装中,平衡了品茗仪式感与居家松弛感。 在设计说明中加入对空间布局的描述 推荐一些优秀的茶室设计说明范文 如何让设计说明更好地突出设计亮点?
更多户型图灵感
以现代极简 + 功能复合为核心,优化空间动线。客餐一体化布局连通公共区域,双楼梯结构适配复式上下层,卧室、多功能区、茶室等功能分区清晰,兼顾家庭居住、社交娱乐与办公需求,在合理动线中,实现空间利用率最大化。
更多户型图灵感
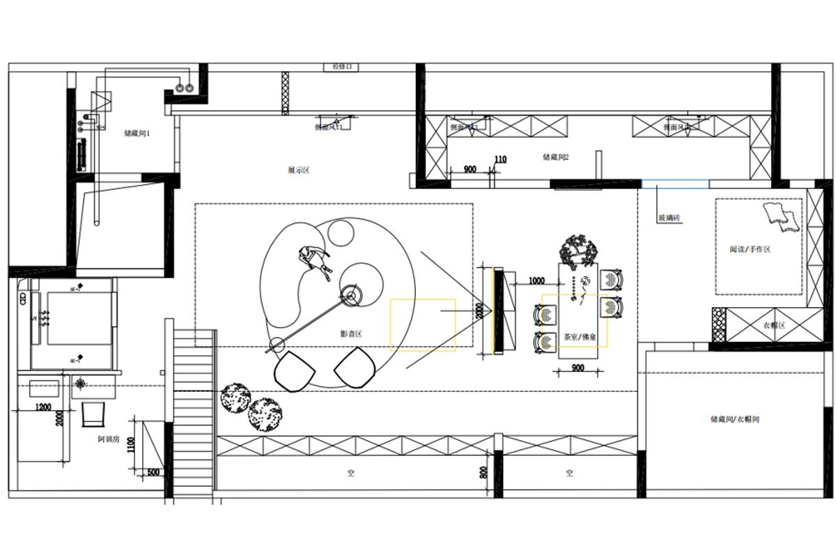
本案阁楼以功能复合 + 空间利用为核心,打造多元私域空间。影音区、茶室 / 佛龛分区清晰,兼顾娱乐与精神需求;阅读手作区、衣帽间与双储藏间,整合收纳与兴趣场景。玻璃砖墙优化采光,动线流畅,在合理布局中,实现夹层空间利用率最大化,适配家庭多元生活需求。