










本方案着眼于年轻家庭的居住需求,在 90㎡的有限空间里,打破传统分区壁垒,以 LDK 一体化开放布局,重构公共区的互动性,让家人日常可顺畅互动,消解小户型的局促感。 同时静区三间卧室各成独立单元,保障个人休憩的私密安静。全屋以温润自然材质为基底,在紧凑户型里,打造出松弛治愈、兼具互动与隐私的理想居家空间。
更多客厅灵感
复古中古风客厅,黑棕撞色的家具搭配,复刻了中古美学的经典质感。魔豆吊灯成为空间的点睛之笔,自带复古氛围感,错落的陶罐与干枝摆件,注入东方禅意的细节。圆形艺术落地灯与拼接茶几,为空间增添设计巧思。无主灯设计搭配大窗采光,光线柔和均匀,整体克制又充满复古细节,打造出高级松弛、充满复古氛围感的治愈居家空间。
更多餐厅灵感
复古中古风入户餐厨区,祖母绿大理石拼接木纹石打造的岛台,天然纹理撞色,复刻了中古美学的高级质感。异形原木餐椅,是中古风的经典设计,自带复古氛围感。背后暖光玻璃酒柜,兼顾藏酒收纳与展示,搭配艺术吊灯与绿植,注入细节巧思。整体克制又充满复古细节,打造出高级松弛、充满复古氛围感的入户过渡空间。
更多餐厅灵感
复古中古风餐厨过渡区,祖母绿大理石岛台延续了全屋的中古质感,天然纹理高级吸睛。飞碟造型的艺术吊灯,是中古风的经典元素,自带复古氛围感。木纹石护墙与开放格,搭配异形中古餐椅,复刻了复古美学的细节。玻璃衣帽间隔断,兼顾隐私与通透,艺术绿植注入生机,整体克制又充满细节,打造出高级松弛、充满复古氛围感的全能空间。
更多卧室灵感
复古中古风主卧,暖棕木作床头背景墙,搭配壁灯,营造出温柔静谧的睡眠氛围。橄榄绿拼白的软包床,自带复古质感,撞色吸睛。藤编床头柜注入温润的中古细节,搭配叶纹地毯,增添自然肌理。大落地窗引入充足采光,无主灯设计让光线柔和均匀,整体克制又充满复古细节,打造出高级松弛、治愈安静的专属休憩空间。
更多卧室灵感
复古中古风主卧,翼型软包床头自带复古造型感,复刻了中古家具的经典设计。暖棕木作背景墙搭配壁灯与线性氛围灯,烘托出温柔静谧的睡眠氛围。藤编床头柜注入温润细节,橄榄绿拼白床品撞色吸睛,人字拼木地板温润有质感。整体克制又充满复古细节,打造出高级松弛、治愈安静的专属休憩空间。
更多卧室灵感
复古中古风主卧全景,翼型软包床头搭配暖棕木作背景墙,复刻了中古美学的经典质感。云朵造型吊灯,搭配艺术落地灯,注入设计巧思。对称藤编床头柜,搭配橄榄绿拼白床品,撞色温柔又高级。大落地窗引入充足采光与户外绿意,无主灯设计让光线柔和,整体通透开阔,打造出高级松弛、治愈安静的专属休憩空间。
更多卫生间灵感
复古中古风卫生间,奶白小方格砖自带复古肌理感,复刻了中古卫浴的经典细节。暖棕木作吊柜搭配暖光开放格,兼顾收纳与展示,陶罐摆件注入温润的中古质感。智能马桶搭配白色烘干架,实用又整洁。弧形阳角搭配线性氛围灯,柔化了空间棱角,整体干净通透,打造出高级复古、整洁治愈的卫浴空间。
更多卫生间灵感
复古中古风三分离卫生间,祖母绿大理石台面搭配暖棕木作浴室柜,延续了全屋的中古撞色质感。椭圆镜复刻了中古卫浴的经典设计,湿区绿色长砖自带复古肌理,撞色吸睛。玻璃隔断划分功能区,实现了洗漱、如厕、洗浴三分离,满足多人同时使用的需求。扫地机器人基站隐藏收纳,功能齐全,整体整洁高级,打造出复古治愈、功能齐全的全能卫浴空间。
更多衣帽间灵感
复古中古风衣帽间,暖棕木作通顶柜搭配黑框玻璃门,内嵌暖光氛围灯,让衣物收纳整洁又兼具展示性。中间化妆台搭配带灯智能圆镜,复刻了中古化妆区的经典设计,兼顾穿搭与化妆功能。错落的绿植与干花摆件,注入自然生机,无主灯设计让光线柔和均匀,整体精致有序,打造出高级复古、充满仪式感的专属穿搭空间。
更多户型图灵感
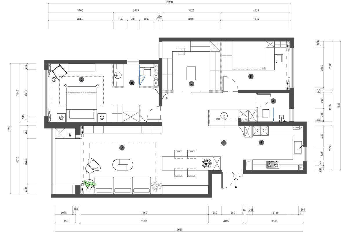
本方案着眼于年轻家庭的居住需求,在 135㎡的有限空间里,打破传统分区壁垒,以 LDK 一体化开放布局,重构公共区的互动性,让家人日常可顺畅互动,消解小户型的局促感。 同时静区三间卧室各成独立单元,保障个人休憩的私密安静。全屋以温润自然材质为基底,在紧凑户型里,打造出松弛治愈、兼具互动与隐私的理想居家空间。