








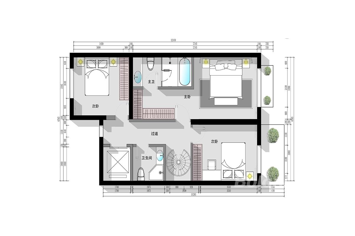
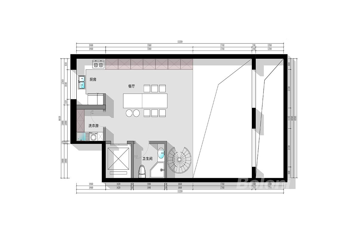
首创禧瑞山项目实际使用面积为350平,该项目在众多别墅项目中户型偏小,需考虑空间浪费问题,结合业主需求做出适合的空间分配。 本套方案一家六口人,男女业主都为商业精英,有一个女孩和一个男孩。俩位老人,业主纠结于美式与极简风格,该居所暂时不用作第一居所,经过与业主的不断沟通,之后采用了美式田园,为本案最终设计风格。
更多客厅灵感
本客厅以轻美式轻奢为风格,浅暖色调铺陈柔和基底,壁炉 + 艺术画营造美式松弛感,隐形收纳与无主灯设计简化视觉,拼色沙发与质感软装丰富层次,灯光与壁炉火光交织出温馨氛围,既保美式舒适内核,又以现代极简手法适配当代生活。
更多客厅灵感
本客厅以轻美式现代为风格,浅暖主调铺陈柔和基底,通厅布局联动餐厨区,隐形收纳与无主灯设计简化视觉,皮质沙发配质感软装,既保留美式舒适松弛,又以极简线条适配当代生活,灯光与通透格局交织出开阔温馨的起居氛围。
更多餐厅灵感
本厨房以轻美式轻奢为风格,白调柜体 + 暖木色岛台铺陈柔和基底,玻璃柜门与复古吊灯呼应美式质感,嵌入式厨电兼顾整洁与功能,氛围灯点缀层次,既保美式厨房的温馨松弛,又以现代极简手法适配当代烹饪与社交场景。
更多卧室灵感
本卧室以轻美式柔居为风格,白调基底配复古石膏线,浅灰床具与暖棕软装呼应美式松弛感,隐形收纳与无主灯设计简化视觉,落地灯与休闲椅营造静谧角落,既保美式温馨内核,又以现代极简手法适配舒适休憩场景。
更多卧室灵感
这份轻美式卧室以柔和米白与低饱和灰为主调,保留美式优雅的同时简化线条:软包床头 + 线条护墙呼应经典元素,黑白格纹床品增添复古质感,搭配简约单椅与球形灯,弱化厚重感,让空间在舒适松弛中透出精致格调。