×
北京
手机博洛尼 售前:400-6868-692 售后:400-666-3706
所在位置/首页优秀案例/凤凰城
点击浏览下一张
案例信息
  • 楼盘名称
  • 案例风格
  • 凤凰城
  • 中古
  • 案例户型
  • 服务店面
  • 案例面积
  • 设计师
  • 110㎡
  • 马翠翠
案例说明

常住人口2人,未来会有小孩,所以我们在空间规划上分为了一个主卧一个多功能房,可以在还没有小孩的时候更好的享受生活。因为厨房的空间不是很大,所以我们在餐厅旁增加了一个台面可以补充操作空间。

客厅
更多客厅灵感

客厅的沙发采用黑色皮质材质,整体上风格为中古风格,与客厅的地毯相呼应,地面用了地板的设置,墙面的色漆采用暖色调。

餐厅
更多餐厅灵感

客厅作为主要的交流空间,在风格上选用了浅色为主调加上中古风格的家具与整个风格相呼应。餐厅边增加一组西厨柜可以增加操作空间。

卧室
更多卧室灵感

主卧顶面上有一小部分边吊,大部分保持原顶高度避免空间压抑。墙体立面有背景墙加灯带的设计,补充灯源的同时增添设计感。

玄关
更多玄关灵感

餐厅用了圆桌,弱化了强硬的棱角感。一进门的位置因为空间不够放鞋柜宽度,所以放置了穿衣镜和洞洞板的设计,可以更好的利用空间。

其他
更多其他灵感

卧室一进门的位置为了避免拥堵,做了深度350的开放格加灯带的设计。床下方有很大空间,所以放置了休闲椅可以更好的享受生活。

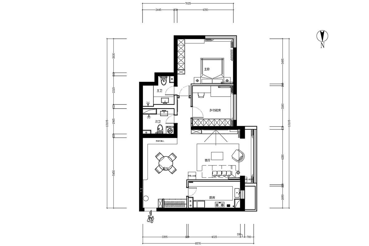
户型图
更多户型图灵感

户型上为两居两厅一厨两卫,因为近几年都是常住两人,所以另一居室先作为多功能房使用,现在可以好好使用享受生活,后期再改为居室使用。

本案设计师

马翠翠

主任设计师

  1. 168次
  2. 预约数
  1. 12年
  2. 从业年限
  1. 30套
  2. 作品案例

预约TA

中古风格的其它案例
更多

【案例】【康乐里小区】中古 二居室 103㎡

张洋 张洋 6 3715浏览 这样装修多少钱?

【案例】【枫丹丽舍】中古 三居室 160㎡

吕宏音 吕宏音 6 2048浏览 这样装修多少钱?

【案例】【棕榈泉国际公寓】中古 三居室 135㎡

渠海东 渠海东 9 3179浏览 这样装修多少钱?

二居室的其它案例
更多

【案例】【御墅临枫】古典 二居室 180㎡

魏焕和 魏焕和 7 4499浏览 这样装修多少钱?

【案例】【民岳家园】古典 二居室 100㎡

尚君 尚君 6 4322浏览 这样装修多少钱?

【案例】【世纪城】古典 二居室 125㎡

赵保祚 赵保祚 6 3371523浏览 这样装修多少钱?