












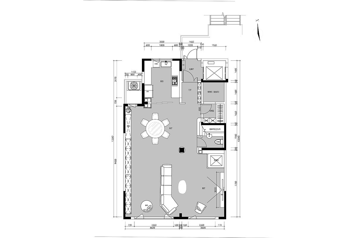
本设计为法式轻奢风格,以优雅米白为主调,通过雕花墙面、水晶吊灯呈现法式浪漫,搭配大理石与金属元素提升质感。开放式布局融合起居与餐厨,精致软装与自然光线交织,打造奢华且具艺术感的生活空间。
更多客厅灵感
本客厅设计为法式轻奢风格,以米白、暖棕为主调营造雅致氛围。艺术感吊灯如树枝垂晶,精致墙板添细节,大窗引景入室。模块化沙发与几何纹理家具,在舒适中尽显奢华质感,打造兼具格调与温度的社交空间。
更多客厅灵感
本客厅采用法式轻奢风格,大理石地面与精致墙板奠定优雅基调,艺术感吊灯如金色枝蔓垂晶,点亮空间。米白绒面沙发搭配几何摆件,大窗引景入室,在复古细节与现代舒适间平衡,打造兼具格调与温度的社交场域。
更多卧室灵感
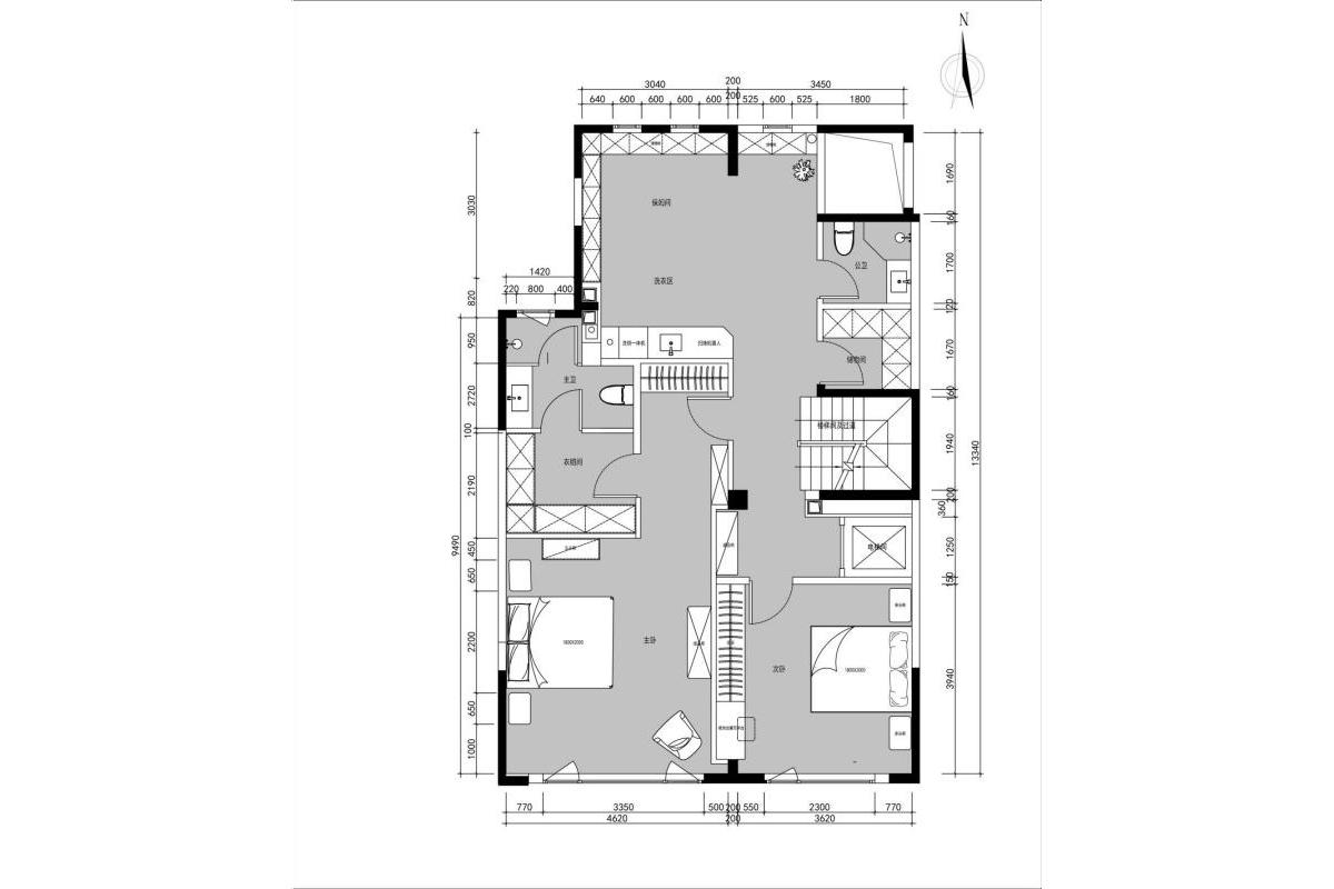
本卧室以法式轻奢风格打造,浅灰墙面搭配雕花吊顶、艺术吊灯,营造雅致氛围。木质地板与柔暖布艺床具传递温馨,大窗引景入室,梳妆台细节尽显精致,在复古与现代间平衡,成就舒适且具格调的休憩空间。
更多厨房灵感
本厨房采用法式轻奢风格,大理石纹理墙面与地面塑造奢华质感,灰白橱柜搭配金属拉手尽显精致。大窗配百叶帘引入自然光线,嵌入式厨电优化功能布局,在复古细节与现代实用间达成平衡,打造优雅且高效的烹饪空间。
更多卫生间灵感
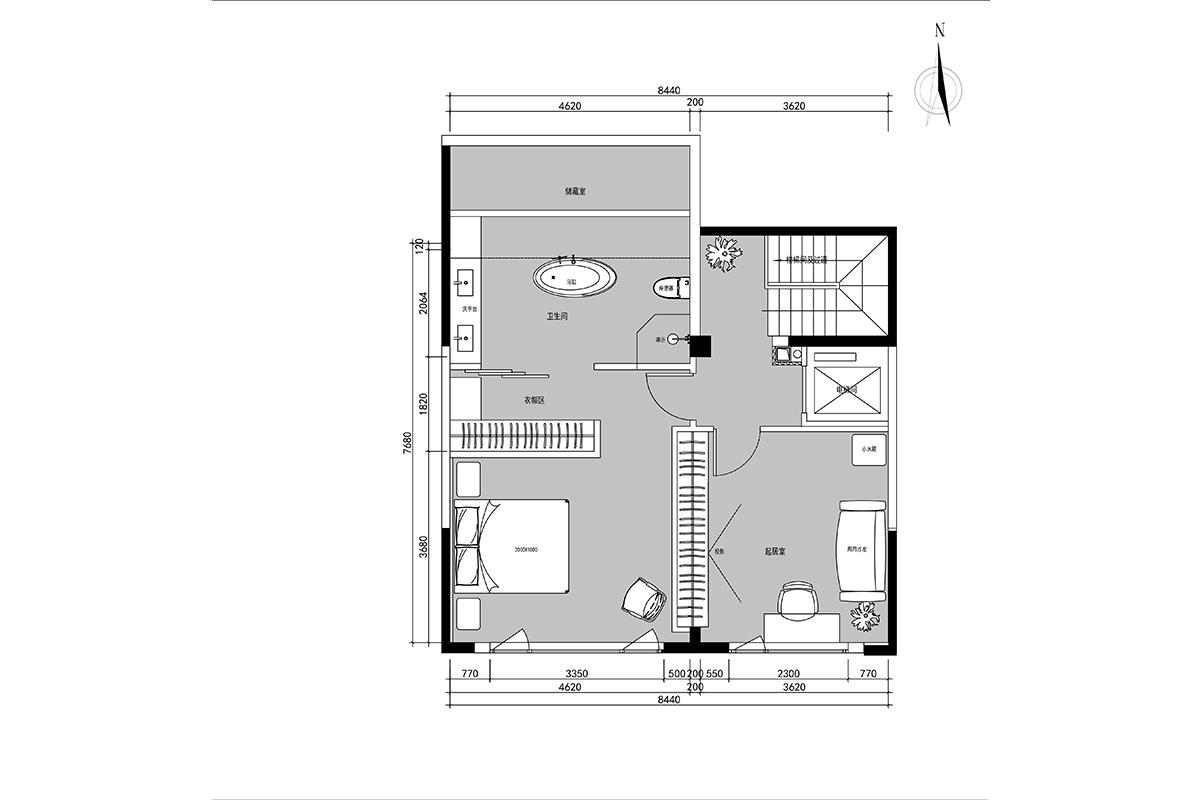
本浴室采用法式轻奢风格,通体大理石塑造奢华质感,水晶吊灯点亮空间。黑金配金饰细节尽显精致,功能分区明确,浴缸与淋浴区兼顾舒适与仪式感,花艺、浴袍等软装营造酒店式奢享氛围,打造优雅疗愈的卫浴空间