×
北京
手机博洛尼 售前:400-6868-692 售后:400-666-3706
所在位置/首页优秀案例/泰欣苑
点击浏览下一张
案例信息
  • 楼盘名称
  • 案例风格
  • 泰欣苑
  • 轻奢
  • 案例户型
  • 服务店面
  • 案例面积
  • 设计师
  • 140㎡
  • 康明
案例说明

本方案为现代轻奢风格,以简约为骨,奢华作韵。甄选金属、大理石等质感材质,低饱和色调铺陈,金棕线条点睛。利落轮廓糅合艺术陈设,于光影流转间,平衡实用与精致,诠释低调而考究的生活美学。

客厅
更多客厅灵感

现代轻奢客厅以深灰为主调,大理石茶几糅合冷冽光泽,金属艺术装置点睛。弧形窗幔柔化硬朗,墨绿抱枕跳脱沉闷,利落线条与细腻材质交织,在光影流转间,诠释克制而精致的奢华气韵。

餐厅
更多餐厅灵感

现代轻奢餐厅以浅棕为基底,金属框玻璃酒柜嵌暖光,大理石墙面衬质感。曲线吊灯添灵动,皮革餐椅柔化硬朗。借材质碰撞与光影层次,诠释优雅通透的用餐格调。

卧室
更多卧室灵感

现代轻奢卧室以浅灰为基底,大理石纹墙板与金属边几碰撞质感,线性灯勾勒利落轮廓。低饱和抱枕柔化空间,球形吊灯晕染温韵,木质地板平衡冷硬,于极简布局中,借材质与光影交织,诠释静谧优雅的休憩格调。

卧室
更多卧室灵感

现代轻奢卧室,浅木基底温润,棕灰低饱和色调铺陈。条纹墙板添层次,金属灯件藏精致,一体化书桌串连功能与美学。以材质柔和与细节克制,筑就静谧且格调自洽的休憩场域。

厨房
更多厨房灵感

现代轻奢厨房以灰白为底,大理石纹理墙面与台面呼应,哑光白柜嵌黑钢线条,利落精致。大窗引景入内,黑色电器勾勒轮廓,于简约布局中,借材质质感与光影交融,诠释实用与优雅的平衡。

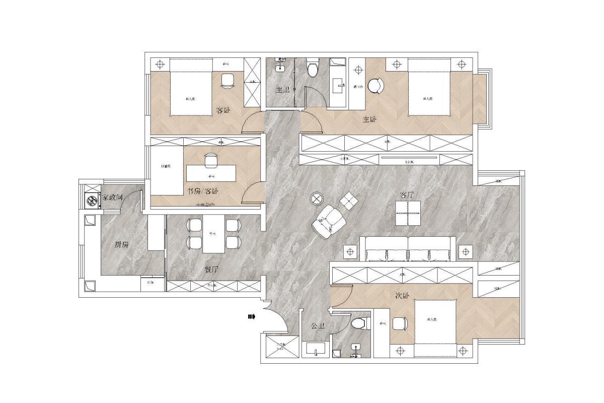
户型图
更多户型图灵感

户型采用大通厅串联客餐厅,营造通透互动场域;动静分区明晰,主卧套间、可变书房兼顾私密与灵活。浅灰石材糅合木质地暖,金属细节隐缀,借布局逻辑与材质呼应,诠释精致有序的生活格调。

本案设计师

康明

特级主任设计师

  1. 168次
  2. 预约数
  1. 18年
  2. 从业年限
  1. 99套
  2. 作品案例

预约TA

轻奢风格的其它案例
更多

【案例】【西山御园】轻奢 五居室 300㎡

闫磊 闫磊 6 4382617浏览 这样装修多少钱?

【案例】【西山壹号院】轻奢 四居室 400㎡

谭为 谭为 9 1142543浏览 这样装修多少钱?

【案例】【宝坻时光小镇101】轻奢 别墅 220㎡

博洛尼 博洛尼 6 902541浏览 这样装修多少钱?

四居室的其它案例
更多

【案例】【金盛家园】古典 四居室 155㎡

霍禹晨 霍禹晨 5 3624489浏览 这样装修多少钱?

【案例】【陶然亭】古典 四居室 117㎡

袁媛 袁媛 6 2548浏览 这样装修多少钱?

【案例】【西钓鱼台庄园】古典 四居室 141㎡

霍伯骞 霍伯骞 8 1969浏览 这样装修多少钱?