×
北京
手机博洛尼 售前:400-6868-692 售后:400-666-3706
所在位置/首页优秀案例/五福玲珑居
点击浏览下一张
案例信息
  • 楼盘名称
  • 案例风格
  • 五福玲珑居
  • 中古
  • 案例户型
  • 服务店面
  • 案例面积
  • 设计师
  • 60㎡
  • 李玉鹏
案例说明

以“东方意蕴+现代适配”为核心,萃取宋明家具线条、传统材质肌理与古典色彩体系,在两居室有限空间内,平衡复古质感与当代生活需求,打造兼具风雅气韵与实用功能的居住空间。

客厅
更多客厅灵感

以“空间联动+东方雅致+实用互动”为核心,将开放式厨房与沙发背靠吧台整合设计,打破空间壁垒,既延续中古风的木作肌理与简雅调性,又适配现代烹饪、社交与休憩需求,打造通透且富有互动感的公共区域。

客厅
更多客厅灵感

拆除厨房与客厅之间的非承重隔墙,形成“L型厨房+客餐一体化”布局,厨房沿墙面设置操作台,预留≥1.2m的烹饪动线,客厅与厨房之间用岛台、吧台或地面材质划分功能区,不影响通透感

卧室
更多卧室灵感

次卧空间有限的特点,实现“睡眠+大容量储物+一体化读写”三合一,适配日常休憩、临时办公、学习或客人留宿等场景。

卧室
更多卧室灵感

以“东方禅静+实用美学”为核心,将地台的低矮通透与中古风的木作肌理、简雅韵味融合,打造兼具休憩、储物、氛围营造的主卧核心区域,延续全屋东方意蕴的同时适配现代睡眠需求。

卧室
更多卧室灵感

秉承中古风“简而有韵”,以实木质感、对称线条、温润色彩为基调,融入中式元素,弱化繁复装饰,凸显东方空间的静谧感,

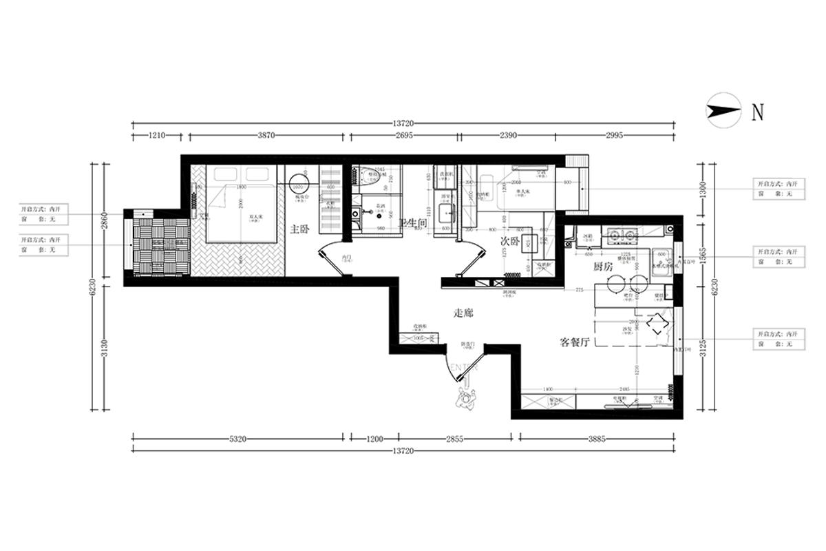
户型图
更多户型图灵感

以户型原始动线为基础,融入中式“藏露结合、虚实相生”的空间逻辑,通过功能分区优化、古典元素植入与现代居住需求适配,让两居室在有限格局内呈现东方美学与实用主义的平衡。

本案设计师

李玉鹏

主任设计师

  1. 168次
  2. 预约数
  1. 10年
  2. 从业年限
  1. 59套
  2. 作品案例

预约TA

中古风格的其它案例
更多

【案例】【康乐里小区】中古 二居室 103㎡

张洋 张洋 6 3687浏览 这样装修多少钱?

【案例】【枫丹丽舍】中古 三居室 160㎡

吕宏音 吕宏音 6 1996浏览 这样装修多少钱?

【案例】【棕榈泉国际公寓】中古 三居室 135㎡

渠海东 渠海东 9 2963浏览 这样装修多少钱?

二居室的其它案例
更多

【案例】【御墅临枫】古典 二居室 180㎡

魏焕和 魏焕和 7 4019浏览 这样装修多少钱?

【案例】【民岳家园】古典 二居室 100㎡

尚君 尚君 6 3734浏览 这样装修多少钱?

【案例】【世纪城】古典 二居室 125㎡

赵保祚 赵保祚 6 3371124浏览 这样装修多少钱?