×
北京
手机博洛尼 售前:400-6868-692 售后:400-666-3706
所在位置/首页优秀案例/东华金座
点击浏览下一张
案例信息
  • 楼盘名称
  • 案例风格
  • 东华金座
  • 中式
  • 案例户型
  • 服务店面
  • 案例面积
  • 设计师
  • 152㎡
  • 张蓉蓉
案例说明

减少公共区与私密区的交叉动线,比如从玄关到客厅、餐厅的路径更顺畅,卧室区相对独立安静:利用自带的衣帽间做“L型衣柜+梳妆台”,床侧配悬浮床头柜,主卫做干湿分离(淋浴+马桶+洗手台),提升睡眠区的静谧与便利:根据需求设为儿童房(搭配高低床+学习桌)或客房(简约床+衣柜),灵活适配家庭阶段。

客厅
更多客厅灵感

以奶白为基底,搭配深木色(家具、钢琴)+水墨纹理(墙面装饰),柔和底色里用木质和中式元素带出雅致感;金属线条、悬浮吊顶等现代细节则弱化了传统中式的沉闷。

餐厅
更多餐厅灵感

以奶白、浅木色为核心基调,搭配黑色(桌腿)+大理石纹(局部墙面),柔和的木质质感中和了简约风的清冷,既温馨又显高级;哑光板材+嵌入式设计让空间更整洁。

餐厅
更多餐厅灵感

以浅木色(柜体、家具)+奶白为基底,搭配大理石纹(岛台)+黑色金属(桌腿),柔和的木质质感带出温馨感,石材与金属的点缀又提升了轻奢精致度。

卧室
更多卧室灵感

以奶白、浅木色为基底,搭配低饱和灰棕(床品)+水墨装饰画,柔和的木质质感带出温馨感,新中式元素(格栅挂画)则注入了雅致韵味。

卧室
更多卧室灵感

用了浅原木色(地板、柜体)+白色(墙面、柜门)的低饱和配色,干净柔和,是日式“自然舒适”的质感;线条简洁利落,比如顶天立地柜、嵌入式床体,都是现代简约的“去冗余”设计,同时结合了榻榻米式的储物床,空间利用率拉满。

厨房
更多厨房灵感

以浅木色(柜体、家具)+奶白为基底,搭配深色大理石纹(岛台)+黑色金属(细节装饰),柔和的木质质感带出温馨感,石材的纹理和金属点缀则提升了轻奢精致度。

卫生间
更多卫生间灵感

主色调是浅米白(墙地)+浅木色(柜面),低饱和配色显通透;线条利落:悬空柜、壁挂马桶、嵌入式镜柜都是“去冗余”的简约设计,同时提升了空间整洁度和清洁便利性。

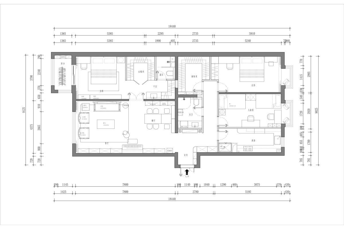
户型图
更多户型图灵感

减少公共区与私密区的交叉动线,比如从玄关到客厅、餐厅的路径更顺畅,卧室区相对独立安静:利用自带的衣帽间做“L型衣柜+梳妆台”,床侧配悬浮床头柜,主卫做干湿分离(淋浴+马桶+洗手台),提升睡眠区的静谧与便利:根据需求设为儿童房(搭配高低床+学习桌)或客房(简约床+衣柜),灵活适配家庭阶段。

本案设计师

张蓉蓉

资深设计师

  1. 168次
  2. 预约数
  1. 12年
  2. 从业年限
  1. 13套
  2. 作品案例

预约TA

中式风格的其它案例
更多

【案例】【远洋山水】中式 跃层/loft 210㎡

底路彬 底路彬 6 3534625浏览 这样装修多少钱?

【案例】【西山艺境】中式 别墅 222㎡

博洛尼 博洛尼 10 3961208浏览 这样装修多少钱?

【案例】【天通苑】中式 二居室 170㎡

博洛尼 博洛尼 7 3330705浏览 这样装修多少钱?

三居室的其它案例
更多

【案例】【富贵园】古典 三居室 200㎡

博洛尼 博洛尼 6 3482317浏览 这样装修多少钱?

【案例】【中海凯旋】古典 三居室 135㎡

于自奇 于自奇 7 6248浏览 这样装修多少钱?

【案例】【世纪城远大园】古典 三居室 140㎡

薛超 薛超 6 1912浏览 这样装修多少钱?