








简约原木风的设计,强调自然、清新与纯净。它追求的是一种回归自然、返璞归真的生活态度,将大自然 的元素与家居空间融为一体,营造出一种宁静、温馨、舒适的居住环境。
更多户型图灵感
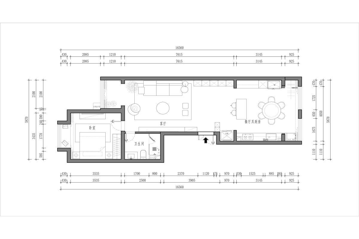
客厅与餐厅无明显墙体分割,视觉上放大空间感;卧室通过合理开窗(隐含设计)引入自然光线,缓解狭长户型的压抑感。客厅、餐厅空间宽敞,可容纳多人活动;卧室尺度舒适,保证床具、衣柜的合理摆放,兼顾功能性与居住舒适度。
更多户型图灵感
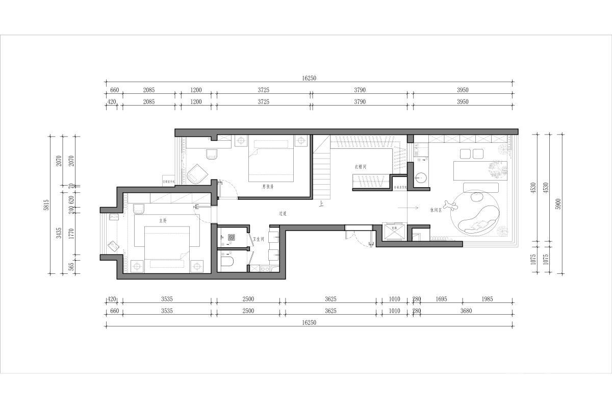
包含主卧(配备独立起居空间,提升主人私密性与舒适感)、客卧(满足访客居住需求),以及卫生间(服务私密区,提升使用便利性)。设置休闲区(配备沙发、休闲家具,打造家庭社交或放松空间)、衣帽间(提供集中收纳,优化衣物整理效率),还有连接上下层的楼梯(实现垂直交通功能)。
更多户型图灵感
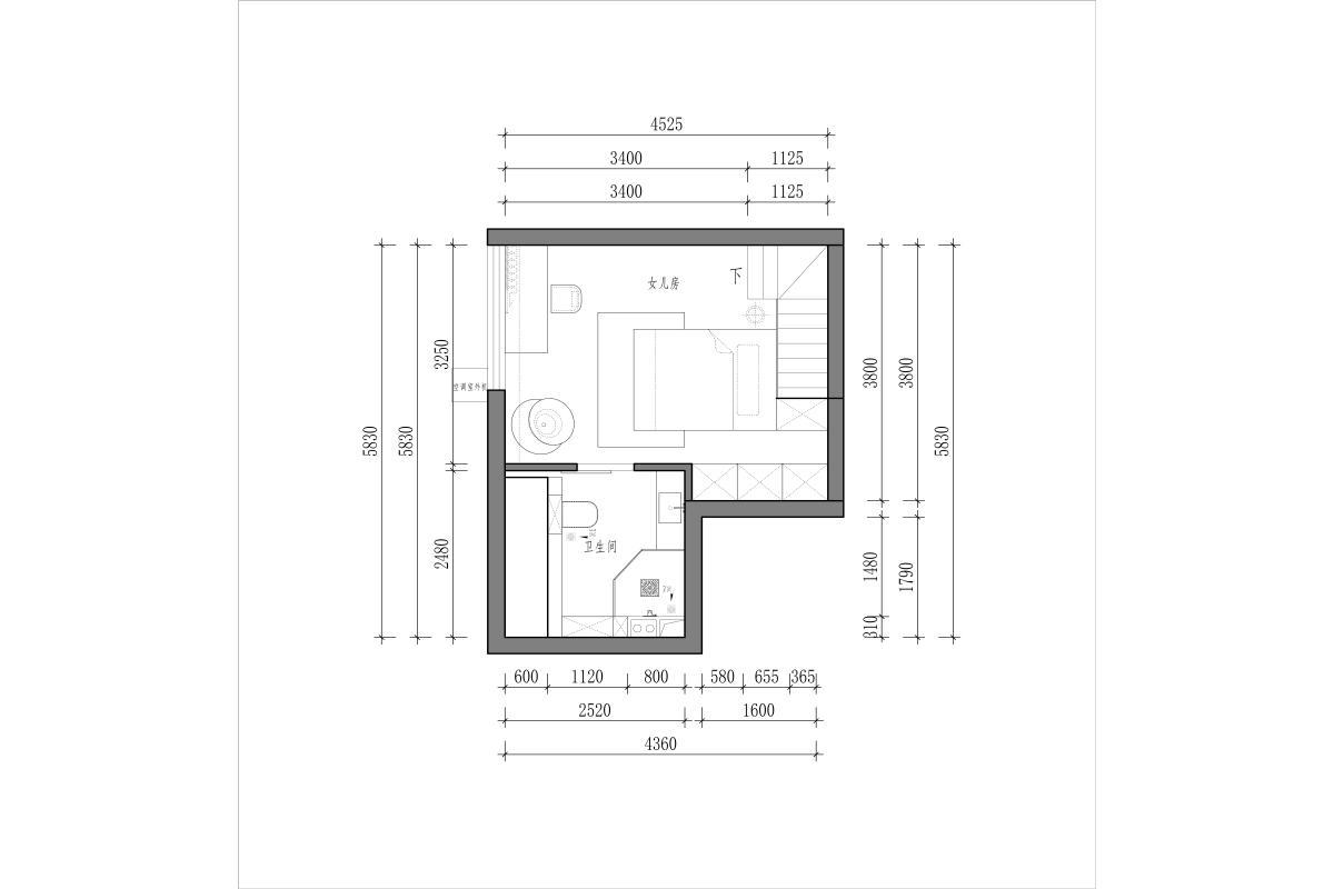
女儿房设置 “观景平台 / 飘窗”(图中左侧标注区域),既引入自然采光,又提供观景、小范围活动的空间,提升儿童房的通透感与趣味性;空间动线简洁(仅 “女儿房→卫生间” 的核心动线),无多余交叉,同时楼梯区域的布局(图中 “下” 的标识)保障上下层交通的安全性与便捷性。