×
北京
手机博洛尼 售前:400-6868-692 售后:400-666-3706
所在位置/首页优秀案例/恒大未来城
点击浏览下一张
案例信息
  • 楼盘名称
  • 案例风格
  • 恒大未来城
  • 法式
  • 案例户型
  • 服务店面
  • 案例面积
  • 设计师
  • 180㎡
  • 张蓉蓉
案例说明

以白色为主色调,融入简洁、明朗的色彩,调和出一种大气的空间氛围。墙面利用简单的石膏线作装饰,既简约又精致;在其中通过壁灯和装饰画点缀。

客厅
更多客厅灵感

以奶白色为主调,搭配浅粉(单人椅)+金属(柜门把手),柔和底色里透出优雅质感;墙面和柜体的线条装饰是轻法式的标志性元素,既保留了法式的柔美元素,又不会显得厚重。

卧室
更多卧室灵感

以奶白、浅木色为主调,搭配褶皱床品、编织床头这类柔性质感单品,整体氛围像“被奶油包裹的温柔”;金色线条(拱门、衣柜框)做点缀,轻法式的精致感立刻就出来了。

卧室
更多卧室灵感

以奶白为基底,搭配柔粉色(墙面、软装)+皮革(床头)+雕花线条,柔和色调里透出法式的浪漫精致;金属把手、雕花装饰则提升了轻奢质感。

厨房
更多厨房灵感

以奶白色为主调,搭配浅灰大理石纹(墙面)+金色金属把手,柔和底色里透出精致的轻奢质感;柜门的线条装饰是轻法式的标志性元素,弱化了厨房的冰冷感。

卫生间
更多卫生间灵感

以奶白、浅米色为主调,搭配金色金属线条(拱门、五金件)+哑光板材,柔和底色里透出优雅的轻奢质感;独立浴缸、通透隔断则让空间更显松弛舒适。

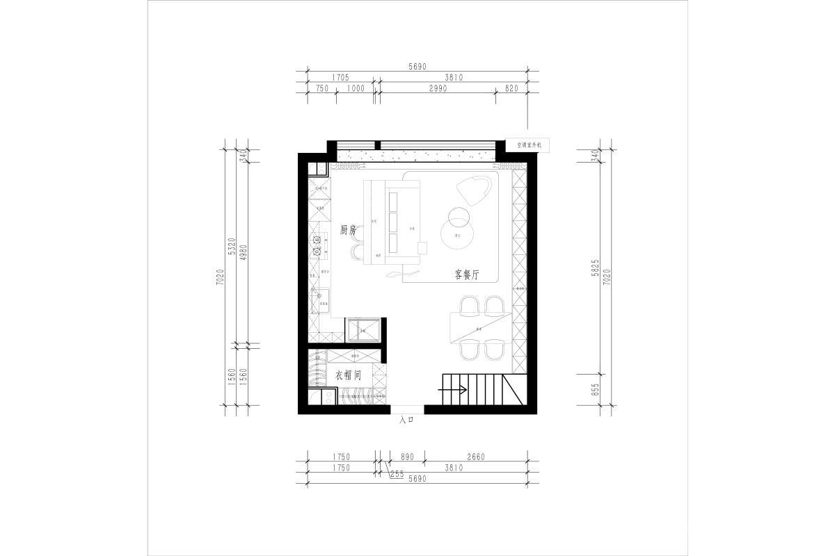
户型图
更多户型图灵感

客厅、餐厅、厨房采用 LDK(Living-Dining-Kitchen)布局,在有限空间内实现 “社交、用餐、烹饪” 的功能联动,避免空间割裂,视觉上放大空间感。楼梯间明确指向 “上层空间”,通过 loft 结构实现 “分层利用”,让小户型在 “平面面积有限” 的情况下,拓展出 “双层空间” 的使用价值。

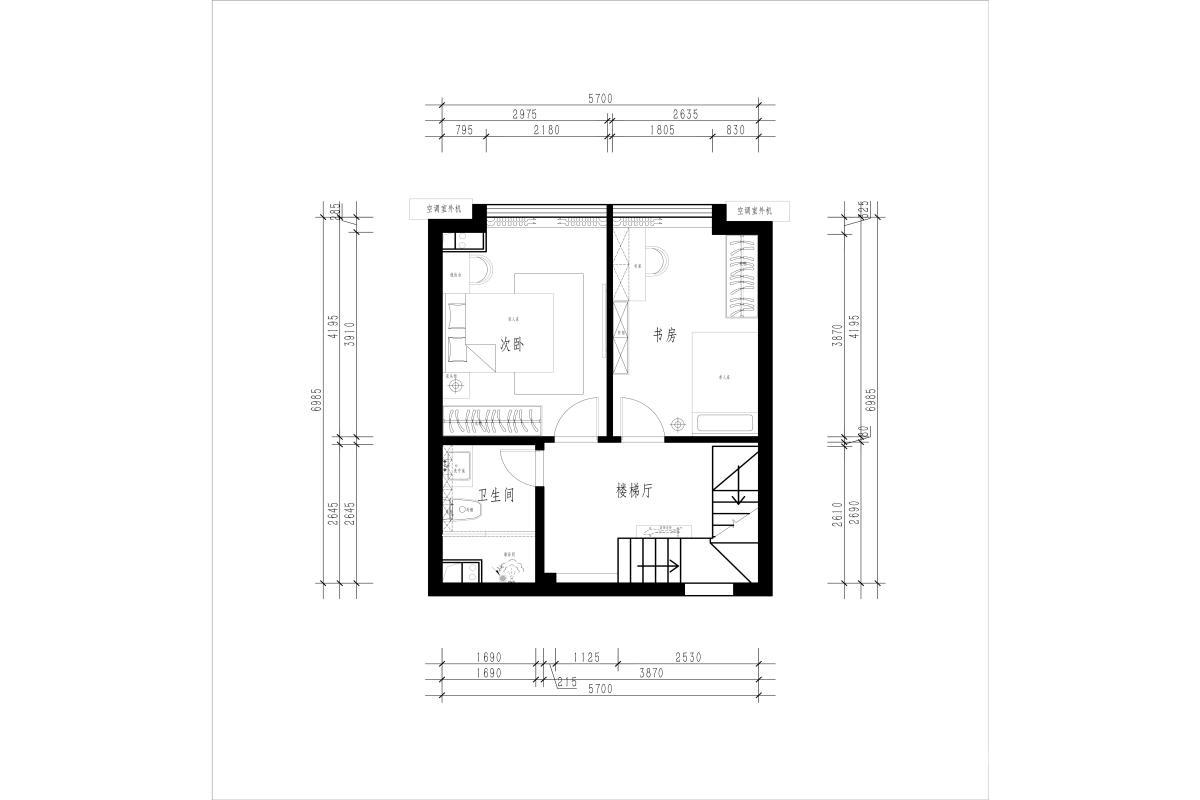
户型图
更多户型图灵感

规划 “次卧” 空间,满足独立睡眠需求,配备充足储物(如衣柜),解决衣物收纳痛点。包含 “卫生间”(满足上层如厕、洗漱需求)和 “楼梯厅”(连接下层空间,实现垂直交通),保障功能完整性。

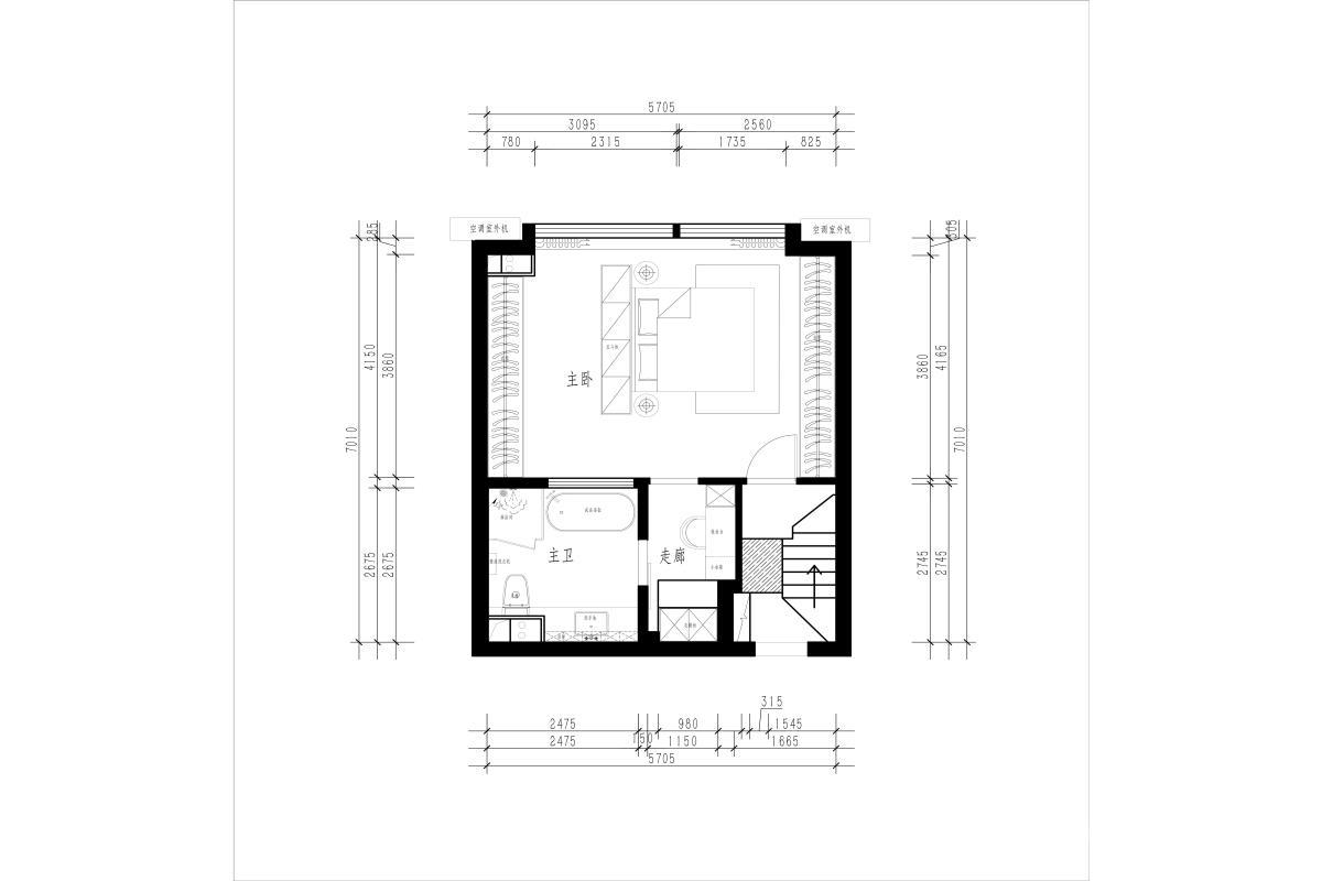
户型图
更多户型图灵感

设置豪华主卫,集成浴缸、马桶、洗手台等功能,通过 “干湿(或功能)分区” 设计,提升卫浴的舒适感与仪式感。楼梯间连接下层空间,保障垂直交通的同时,让三层成为 “独立的顶层领地”。

本案设计师

张蓉蓉

资深设计师

  1. 168次
  2. 预约数
  1. 12年
  2. 从业年限
  1. 13套
  2. 作品案例

预约TA

法式风格的其它案例
更多

【案例】【大郊亭】法式 三居室 160㎡

赵波 赵波 6 6262浏览 这样装修多少钱?

【案例】【玉海园】法式 跃层/loft 120㎡

代伟欣 代伟欣 7 1197547浏览 这样装修多少钱?

【案例】【京西悦府】法式 别墅 300㎡

赵波 赵波 6 3748浏览 这样装修多少钱?

其他的其它案例
更多

【案例】【和平新城】现代 其他 100㎡

刘一禛 刘一禛 6 984050浏览 这样装修多少钱?

【案例】【当代MOMA】现代 其他 350㎡

博洛尼 博洛尼 6 3655284浏览 这样装修多少钱?

【案例】【东方银座】现代 其他 80㎡

博洛尼 博洛尼 6 2533105浏览 这样装修多少钱?