





现代轻奢风格是一种将现代简约风格与奢华元素相结合的室内设计风格。它注重以简洁的线条和几何形状为基础,营造出一种精致、优雅且不失舒适感的居住环境。材质使用搭配:现代轻奢风格常常使用天然材质,如大理石、木材、金属等。
更多户型图灵感
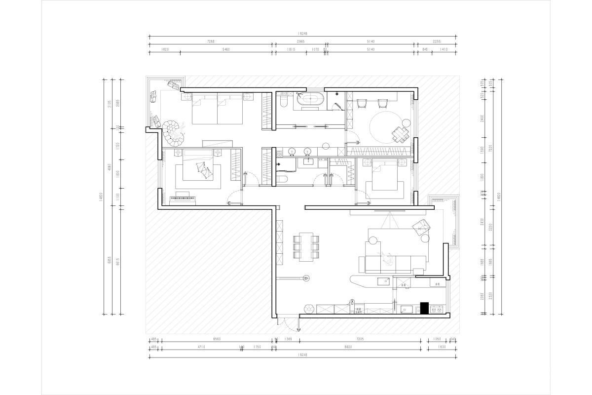
客厅与餐厅一体化设计,拓展了公共空间的视觉感与互动性,适合家庭团聚或待客;厨房采用开放式(或半开放式)布局,与餐厅动线直接,提升烹饪与用餐的联动性。规划了至少两间卧室,保证隐私性;主卧可能配备独立卫浴(图中可见主卧区域有卫浴设施),提升居住舒适度。