×
北京
手机博洛尼 售前:400-6868-692 售后:400-666-3706
所在位置/首页优秀案例/湖光玖里
点击浏览下一张
案例信息
  • 楼盘名称
  • 案例风格
  • 湖光玖里
  • 现代
  • 案例户型
  • 服务店面
  • 案例面积
  • 设计师
  • 302㎡
  • 王春婷
案例说明

本设计以现代风格为核心,立足空间开阔尺度,通过简约线条与通透格局释放空间张力。以克制的色彩体系为基底,融合材质的自然肌理与光影的流动变化,弱化冗余装饰,强化功能与美学的平衡。注重空间的整体性与层次感,让居住场景既符合现代生活的高效需求,又兼具静谧舒适的质感,传递简约而不简单的生活美学。

餐厅
更多餐厅灵感

开放式厨房与中岛台结合,浅木色与极简线条形成视觉延伸。岛台与透明吧椅的搭配,既满足用餐与社交需求,又强化空间通透感,整体色调与材质的一致性,营造出流畅而有温度的生活场景。

餐厅
更多餐厅灵感

木质餐桌与米色餐椅呼应整体色调,吊灯与背景装饰画提升空间层次。大面积落地窗与柔和灯光结合,使用餐环境既温馨又通透,适合家庭聚餐与日常休闲,传递现代生活的仪式感。

餐厅
更多餐厅灵感

开放式布局与长形吊灯形成视觉焦点,浅色墙面与木质细节平衡现代感与温暖。沙发与电视背景的互动,让空间兼具社交与休闲功能,整体色调与材质的一致性,提升居住的舒适度与艺术感。

卧室
更多卧室灵感

斜顶设计与大窗引入自然光线,简约床具与木质地板搭配,营造开阔而舒适的睡眠空间。植物与柔和灯光点缀,弱化功能性,强调情感体验,为居住者打造身心放松的私域。

卧室
更多卧室灵感

采用米色调与木质元素,营造温馨宁静的休憩氛围。床头嵌入式灯带与自然采光结合,提升空间层次;简约软装与绿植点缀,让卧室兼具舒适与艺术感,为居住者提供身心放松的私域。

其他
更多其他灵感

以开放布局与通透感为核心,天窗与大窗引入充足自然光,搭配简约沙发与钢琴等细节,平衡功能与美学。灯光层次与材质的柔和过渡,使空间兼具社交与独处的双重可能,呈现现代生活的雅致。

户型图
更多户型图灵感

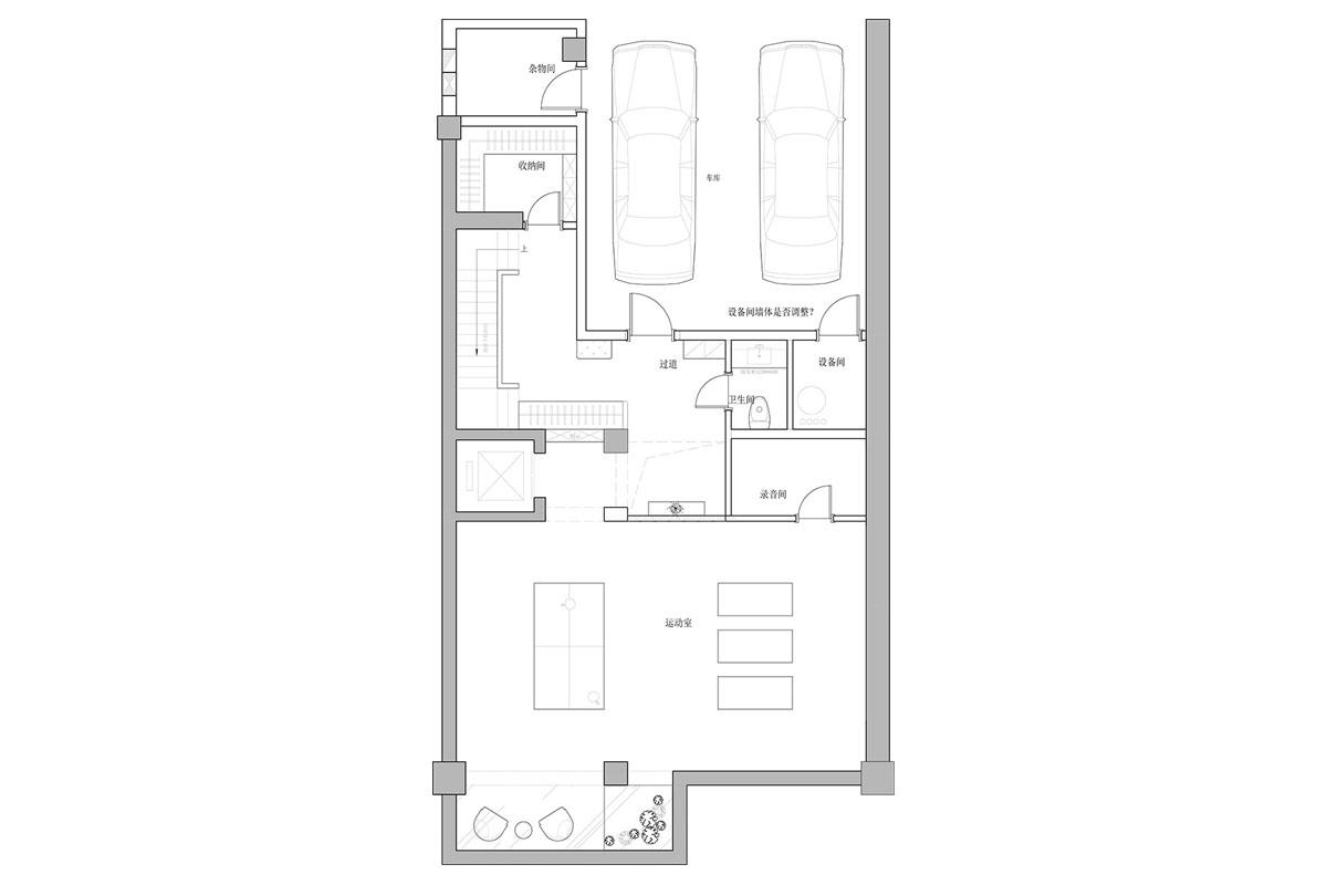
地下空间规划合理,包含车库、运动室、设备间及卫生间等区域,动线流畅,功能完善,满足停车、健身与设备维护需求。

户型图
更多户型图灵感

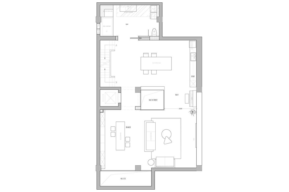
该平面空间布局开阔,包含厨房、客餐厅、休闲区及卫生间等区域,动线流畅,采光充足,满足家庭娱乐与休闲需求。

户型图
更多户型图灵感

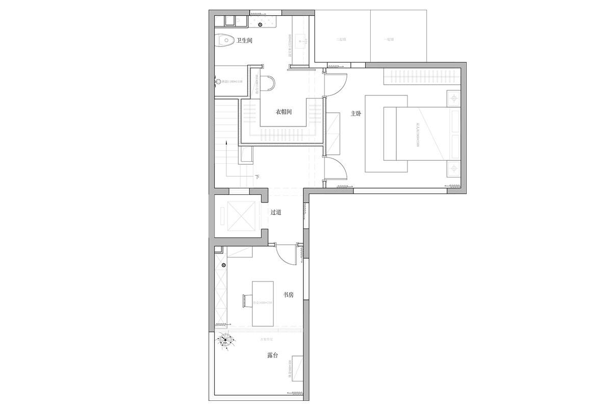
层空间布局以主卧为核心,配备独立衣帽间与卫生间,私密性强。书房与露台相连,营造静谧阅读与休闲环境,整体动线流畅,功能分区合理。

户型图
更多户型图灵感

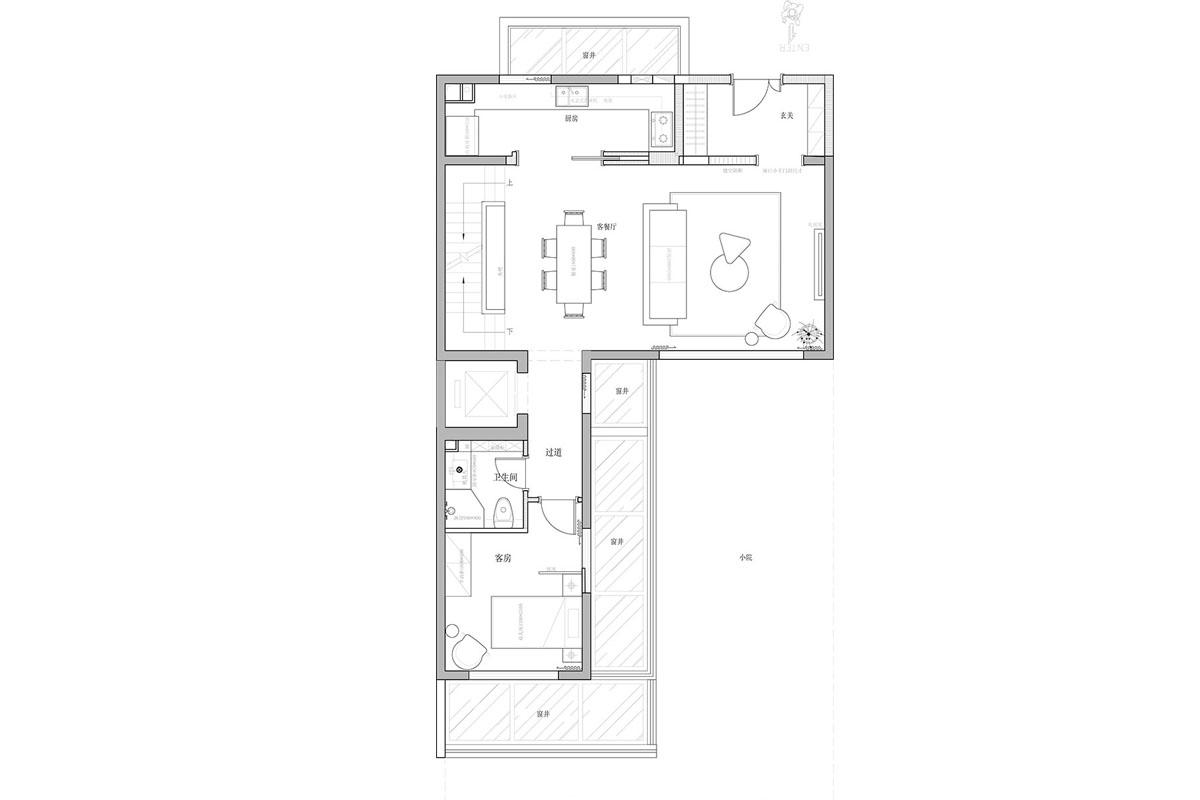
该空间布局方正,功能分区明确,包含厨房、客餐厅、客房及卫生间等区域,动线流畅,采光充足,满足日常起居与待客需求。

本案设计师

王春婷

钛马赫别墅特级主任设计师

  1. 172次
  2. 预约数
  1. 15年
  2. 从业年限
  1. 41套
  2. 作品案例

预约TA

现代风格的其它案例
更多

【案例】【金茂府】现代 四居室 140㎡

渠海东 渠海东 7 844957浏览 这样装修多少钱?

【案例】【万国城】现代 二居室 130㎡

霍俐明 霍俐明 7 4381996浏览 这样装修多少钱?

【案例】【棠颂】现代 别墅 360㎡

李延玲 李延玲 12 3548099浏览 这样装修多少钱?

跃层/loft的其它案例
更多

【案例】【航天城小区】古典 跃层/loft 200㎡

博洛尼 博洛尼 10 2969161浏览 这样装修多少钱?

【案例】【上城郡】古典 跃层/loft 280㎡

博洛尼 博洛尼 7 524700浏览 这样装修多少钱?

【案例】【中海9号公馆御龙府】古典 跃层/loft 360㎡

博洛尼 博洛尼 9 4323857浏览 这样装修多少钱?