×
北京
手机博洛尼 售前:400-6868-692 售后:400-666-3706
所在位置/首页优秀案例/金隅上城郡
点击浏览下一张
案例信息
  • 楼盘名称
  • 案例风格
  • 金隅上城郡
  • 法式
  • 案例户型
  • 服务店面
  • 案例面积
  • 设计师
  • 303㎡
  • 王春婷
案例说明

这套金隅上城郡300㎡法式别墅设计,以米色与木质为主调,线条优雅,细节精致,融合现代与古典元素,营造浪漫舒适的生活空间。

客厅
更多客厅灵感

客厅以高顶设计与大窗引入充足光线,对称布局与精致吊灯彰显法式优雅,艺术挂画与木质家具结合,营造温馨舒适的生活空间。

餐厅
更多餐厅灵感

餐厅采用对称布局与精致吊灯,米色与木质元素结合,艺术挂画与绿植点缀增添活力,开放式设计增强空间通透感,尽显法式生活质感。

餐厅
更多餐厅灵感

餐厅以对称布局与精致吊灯为主,米色与木质元素结合,艺术挂画与绿植点缀增添活力,开放式设计增强空间通透感,尽显法式生活质感。

餐厅
更多餐厅灵感

餐厅以米色与木质元素结合,艺术挂画与绿植点缀增添活力,开放式设计增强空间通透感,尽显法式生活质感与精致。

卧室
更多卧室灵感

卧室以米色与浅白色元素为主,大窗设计引入自然光线,柔和灯光与简约家具营造舒适氛围,整体布局温馨雅致,充满法式浪漫气息。

卧室
更多卧室灵感

卧室以暖色为主调,高顶设计与大窗引入充足光线,精致吊灯与简约家具营造温馨氛围,整体布局舒适实用,充满法式浪漫。

书房
更多书房灵感

书房以木质书架与书桌为主,对称布局与精致吊灯营造静谧氛围,艺术挂画与绿植点缀增添文化气息,整体设计兼具实用性与美学,展现法式优雅。

其他
更多其他灵感

茶室以浅米色为主调,对称布局与精致吊灯营造优雅氛围,木质茶桌与圆凳实用美观,绿植与艺术摆件点缀,尽显法式浪漫与文化底蕴。

户型图
更多户型图灵感

该空间布局合理,功能分区明确,包含客厅、厨房、餐厅、卫生间及北院等区域,动线流畅,采光充足,适合日常起居与待客,北院提供户外休闲空间。

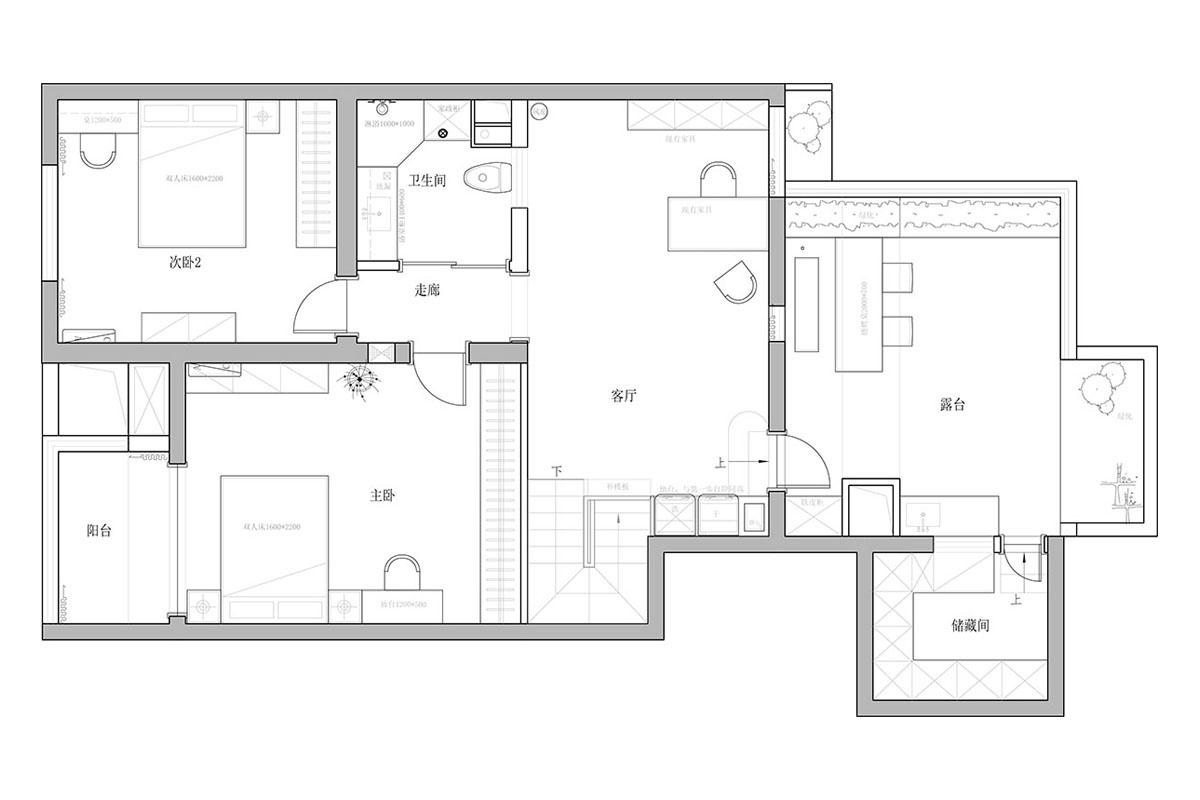
户型图
更多户型图灵感

该空间布局方正,功能分区明确,包含主卧、次卧2、客厅、卫生间、阳台、露台及储藏间等区域,动线流畅,露台与阳台提供充足户外空间,满足居住与休闲需求。

户型图
更多户型图灵感

该空间布局舒适,包含主卧、卫生间及屋顶花园等区域,动线流畅,私密性强,屋顶花园提供静谧的户外休闲环境,满足休息与放松需求

本案设计师

王春婷

钛马赫别墅特级主任设计师

  1. 172次
  2. 预约数
  1. 15年
  2. 从业年限
  1. 41套
  2. 作品案例

预约TA

法式风格的其它案例
更多

【案例】【大郊亭】法式 三居室 160㎡

赵波 赵波 6 6339浏览 这样装修多少钱?

【案例】【玉海园】法式 跃层/loft 120㎡

代伟欣 代伟欣 7 1197595浏览 这样装修多少钱?

【案例】【京西悦府】法式 别墅 300㎡

赵波 赵波 6 3845浏览 这样装修多少钱?

别墅的其它案例
更多

【案例】【龙熙瓦德拉玛庄园】古典 别墅 1314㎡

博洛尼 博洛尼 6 3505664浏览 这样装修多少钱?

【案例】【自在香山】古典 别墅 300㎡

高宏寅 高宏寅 6 1539243浏览 这样装修多少钱?

【案例】【懋源景玺】古典 别墅 775㎡

渠海东 渠海东 11 823357浏览 这样装修多少钱?