×
北京
手机博洛尼 售前:400-6868-692 售后:400-666-3706
所在位置/首页优秀案例/臻园
点击浏览下一张
案例信息
  • 楼盘名称
  • 案例风格
  • 臻园
  • 现代
  • 案例户型
  • 服务店面
  • 案例面积
  • 设计师
  • 314㎡
  • 王春婷
案例说明

臻园这套300㎡现代风格设计,以米白与木色为主调,线条简洁,材质质感细腻,灯光层次丰富,营造出明亮通透、舒适雅致的生活空间。

客厅
更多客厅灵感

客厅采用米白与木色结合,精致吊灯与简约家具营造温馨氛围,大窗引入充足光线,让空间显得开阔而舒适,展现出现代风格的时尚与质感。

客厅
更多客厅灵感

客厅以米白与木色为主调,线条简洁利落,大理石地面与精致吊灯提升空间质感,沙发与茶几搭配舒适实用,整体设计明亮通透,展现现代生活的优雅与从容。

客厅
更多客厅灵感

B1客厅以米白与木色为主,线条简洁,大理石地面与精致吊灯提升空间质感,开放式吧台与艺术挂画增添生活气息,整体设计现代时尚,展现出主人对生活品质的追求。

卧室
更多卧室灵感

卧室以米白与木色为主调,大窗引入自然光线,简约家具与柔和灯光营造舒适氛围,整体布局温馨雅致,让人在忙碌一天后得到充分的放松与休息。

玄关
更多玄关灵感

玄关以米白与木色为主,采用大理石与木质材质,设计简约大气,顶部嵌入灯带与线条,营造明亮通透氛围,与客厅自然衔接,展现现代风格的优雅与质感。

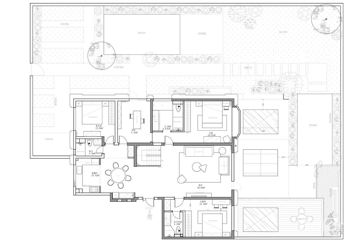
户型图
更多户型图灵感

该层布局合理,功能分区明确,包含客厅、厨房餐厅、卧室、卫生间及书房等区域,动线流畅,采光充足,客厅的大落地窗效果让室内与庭园更好的融合,适合家庭生活与日常起居。

户型图
更多户型图灵感

该层空间规划完善,包含影音室、健身房、阳光房、客房及卫生间等区域,动线流畅,功能多样,满足娱乐、健身与居住需求,整体设计舒适实用。

本案设计师

王春婷

钛马赫别墅特级主任设计师

  1. 172次
  2. 预约数
  1. 15年
  2. 从业年限
  1. 41套
  2. 作品案例

预约TA

现代风格的其它案例
更多

【案例】【金茂府】现代 四居室 140㎡

渠海东 渠海东 7 845124浏览 这样装修多少钱?

【案例】【万国城】现代 二居室 130㎡

霍俐明 霍俐明 7 4382149浏览 这样装修多少钱?

【案例】【棠颂】现代 别墅 360㎡

李延玲 李延玲 12 3548473浏览 这样装修多少钱?

跃层/loft的其它案例
更多

【案例】【航天城小区】古典 跃层/loft 200㎡

博洛尼 博洛尼 10 2969958浏览 这样装修多少钱?

【案例】【上城郡】古典 跃层/loft 280㎡

博洛尼 博洛尼 7 525212浏览 这样装修多少钱?

【案例】【中海9号公馆御龙府】古典 跃层/loft 360㎡

博洛尼 博洛尼 9 4324309浏览 这样装修多少钱?