

















轻奢风的本质是对品质生活的精致表达,它摒弃了传统奢华的繁复,以简约的形式承载高级的材质与细节,最终呈现出 “轻于形,奢于心” 的空间体验。
更多客厅灵感
本客厅轻奢风设计,以米棕为主调,木质与大理石背景墙营造高级感。黑白大理石茶几、金属线条灯具点缀精致细节,艺术单人椅与绿植平衡 “轻” 的雅致与 “奢” 的质感,光影交融间尽显优雅品质空间。
更多客厅灵感
本客厅轻奢风设计,以深棕木饰与大理石电视墙营造高级感,黑白大理石茶几、金属灯具点缀精致细节。艺术摆件与独特单人椅平衡 “轻” 的艺术感与 “奢” 的质感,光影与材质交融,打造优雅且具个性的品质空间。
更多客厅灵感
本客厅轻奢风设计,以米白、深棕为主调,大理石地面与木质背景墙营造高级感。金属线条、艺术摆件点缀精致细节,异形家具与灯光层次平衡 “轻” 的艺术感与 “奢” 的质感,打造出优雅且具个性的品质空间。
更多卧室灵感
本卧室轻奢风设计,以米白与木色为主调,绒面床具搭配精致毛毯尽显质感。透明座椅、金属线条点缀细节,嵌入式灯光与简约布局平衡 “轻” 的雅致与 “奢” 的精致,营造出优雅舒适的品质休憩空间。
更多卧室灵感
本卧室轻奢风设计,以米白与棕色调为主,皮质床具搭配质感毛毯尽显精致。弧形灯带、金属灯具点缀细节,简约柜体与嵌入式布局平衡 “轻” 的雅致与 “奢” 的质感,营造出优雅舒适的品质休憩空间。
更多卧室灵感
本卧室轻奢风设计,以米白与木色为主调,简约床具搭配质感床品尽显精致。金属灯具、线条感边几点缀细节,嵌入式灯光与极简布局平衡 “轻” 的雅致与 “奢” 的质感,营造出优雅舒适的品质休憩空间。
更多书房灵感
本书房轻奢风设计,以木色与石材结合营造高级感,金属灯具、内嵌灯光点缀精致细节。错落书架与艺术摆件平衡 “轻” 的雅致与 “奢” 的质感,空间兼具实用与格调,打造出优雅舒适的品质办公阅读空间。
更多厨房灵感
本厨房轻奢风设计,以黑灰为主调,黑色大理石台面与玻璃吊柜凸显高级感。金属线条、嵌入式厨具点缀精致细节,光影与材质的碰撞,平衡 “轻” 的简约与 “奢” 的质感,打造出优雅实用的品质烹饪空间。
更多卫生间灵感
本卫浴间轻奢风设计,以纹理大理石墙与深棕柜体营造高级感。金属吊灯、艺术摆件点缀精致细节,悬浮马桶与简约台盆平衡 “轻” 的雅致与 “奢” 的质感,光影与材质交融,打造出优雅精致的品质卫浴空间。
更多影音室灵感
本影音室轻奢风设计,以暖棕为主调,质感影音座椅搭配弧形灯光尽显精致。嵌入式声学设计与金属线条点缀细节,光影营造的氛围感平衡 “轻” 的雅致与 “奢” 的品质,打造出沉浸式且具格调的视听空间。
更多衣帽间灵感
本衣帽间轻奢风设计,以木质与玻璃柜体营造高级感,金属线条勾勒精致细节。艺术感座椅、豹纹地毯注入个性,灯光与材质交融,平衡 “轻” 的雅致与 “奢” 的质感,打造出兼具收纳与艺术格调的品质空间。
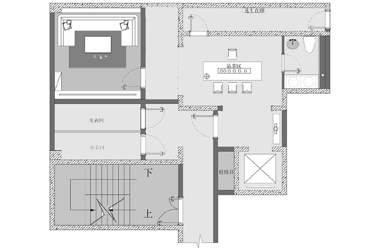
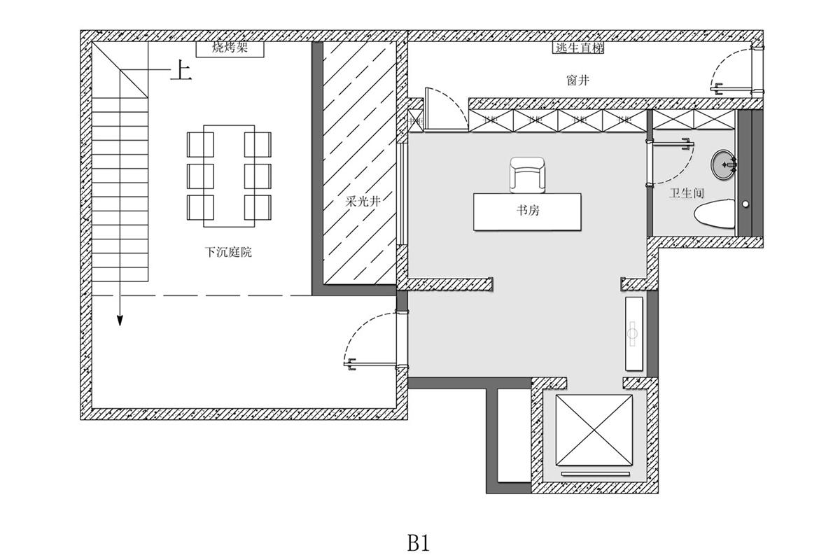
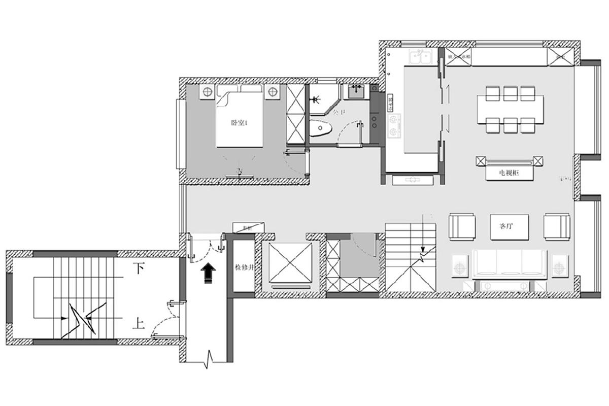
更多户型图灵感
本空间以轻奢风设计,布局客厅、餐厅、卧室及公卫,功能分区清晰。客厅与餐厅联动营造开阔感,卧室私密雅致,细节处融入高级材质与精致布局,平衡舒适与格调,打造出兼具品质与实用的轻奢生活场景。
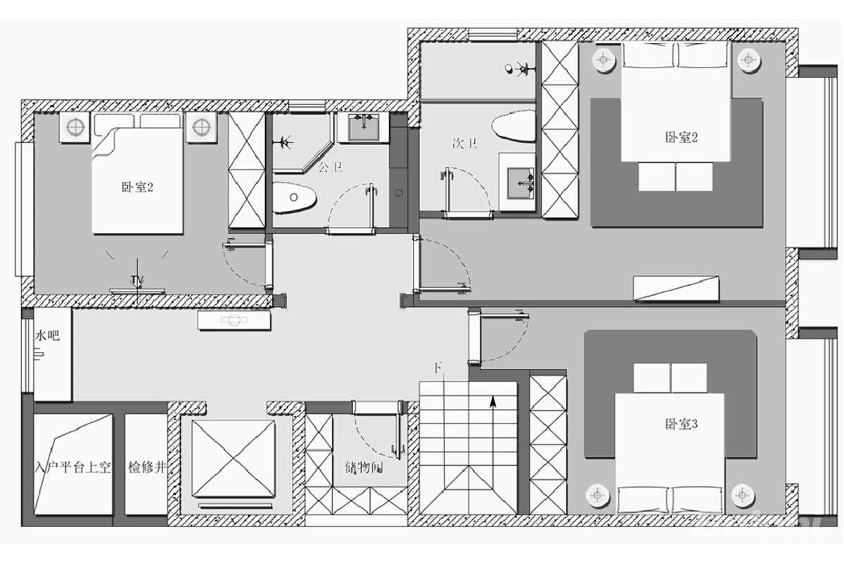
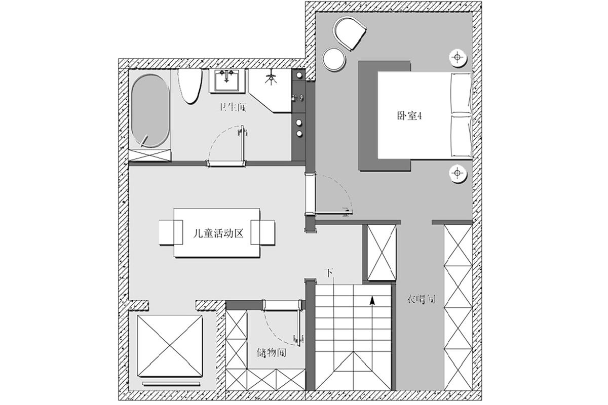
更多户型图灵感
本空间以轻奢风设计,布局卧室、卫浴、儿童活动区及衣帽间,功能丰富且分区明晰。卧室雅致私密,儿童区兼顾童趣与质感,衣帽间与卫浴细节彰显品质,通过合理布局与精致设计,打造出兼具舒适与格调的轻奢居住场景。