






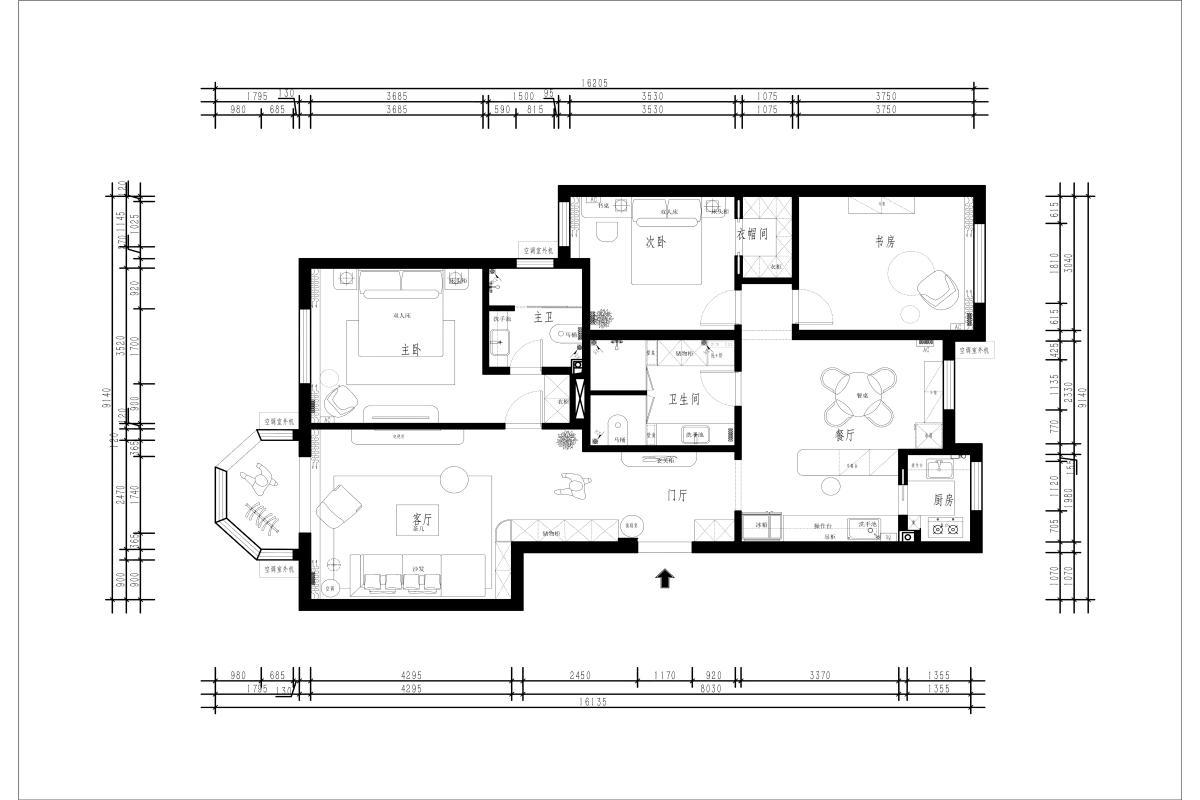
厨房与餐厅紧密相连,形成高效的餐厨动线,买菜归家后可快速备餐用餐;客厅空间开阔,且连接特色的八角休闲区,可打造为观景角或休闲阅读区,既拓展了活动空间,又引入充足采光,让公共区域更具通透感与趣味性。卫生间布局合理,方便家人使用;各空间尺度规划得当,动线流畅自然,从入户到各功能区切换自如,整体营造出功能齐全、居住舒适且富有设计感的品质家居环境。
更多客厅灵感
以米白、浅棕等暖色调为主,营造出温馨舒适的空间氛围,复古花纹地毯的加入增添了层次感与怀旧感。大量使用真皮(棕色皮质沙发)、实木(茶几、电视柜、边柜)、复古金属(吊灯、壁灯的金属部件)等材质,质感厚重且富有岁月感,体现美式风格对天然材质和复古工艺的偏爱。
更多餐厅灵感
以米白、浅棕等柔和暖色调为主,营造出温馨雅致的空间氛围,奠定了法式风格浪漫舒适的基调。餐厨区域功能分区清晰且互动性强,开放式的吧台设计增强了空间的交流感,同时复古拱形窗的隔断又巧妙划分了区域,让空间层次丰富且富有法式风情。
更多户型图灵感
厨房与餐厅紧密相连,形成高效的餐厨动线,买菜归家后可快速备餐用餐;客厅空间开阔,且连接特色的八角休闲区,可打造为观景角或休闲阅读区,既拓展了活动空间,又引入充足采光,让公共区域更具通透感与趣味性。卫生间布局合理,方便家人使用;各空间尺度规划得当,动线流畅自然,从入户到各功能区切换自如,整体营造出功能齐全、居住舒适且富有设计感的品质家居环境。