





现代轻奢既通过“功能复合、隐形收纳”满足日常实用需求,又以“材质、灯光、软装”的搭配,让空间兼具“高级质感”与“松弛氛围”,适配社交、休憩、轻办公等多元现代生活场景。又通过“功能复合、隐形收纳”满足日常实用需求,又以“材质、灯光、软装”的搭配,让空间兼具“高级质感”与“松弛氛围”,适配社交、休憩、轻办公等多元现代生活场景。
更多客厅灵感
空间布局:以电视墙为视觉核心,搭配弧形柜体柔化空间棱角,靠窗设休闲单椅,形成“观影+放松”双场景。材质与色彩:背景墙选用白理石+深木饰面,搭配浅灰地砖、橙色皮质单椅,用“冷硬材质+暖软家具”平衡质感;茶几采用白理石+金属底座,强化轻奢属性。 灯光与软装:无主灯系统+电视墙底部灯带,营造高级氛围;软装以极简绿植、几何地毯点缀,保留空间呼吸感。
更多餐厅灵感
空间布局:客餐厅一体化开放设计,通过同色系地砖、悬浮吊顶强化视觉连通性,形成家庭以“奶白+深灰+浅木”为基底,搭配大理石、金属(如餐桌椅的橙色皮质+灰色哑光、茶几的白理石+金属边),用低饱和撞色提升层次;背景墙结合木饰面与石材质感,平衡冷硬与柔和。
更多卧室灵感
间布局:小空间植入“睡眠+办公”复合功能,床侧定制书桌+开放格,满足临时居住与轻办公需求;通顶衣柜最大化利用垂直空间。材质与色彩:以“浅灰+白+深木”为主,搭配墨绿床头软包、蓝调窗帘,用低饱和色彩提升温馨感;地面选用浅木地板,弱化空间压抑感。灯光与软装:无主灯+床头线性灯,保障阅读照明;软装简约(绿植、条纹抱枕),避免空间杂乱。
更多卧室灵感
深灰木纹墙、浅灰调地板、白纱+墨绿窗帘,用冷色调奠定沉稳克制的氛围;亮点:焦糖橙绒布椅+奶白软包椅形成柔和撞色,既打破单调,又通过“绒布+布艺”的软质材质统一了温暖质感。材质:软硬+通透的层次平衡 硬质:深灰艺术纹理墙(金属链条图案强化艺术感)、大理石纹边几(精致轻奢)、深色木纹墙板(质感厚重);软质:绒布/布艺家具(弱化硬质冷感);通透:渐变玻璃隔断(保证用隔断划分功能区,保障休憩隐私。
更多其他灵感
空间布局:小区域打造“轻社交+放松”场景,搭配圆形休闲椅+迷你边几,适配短暂休憩、闲聊需求。 材质与色彩:背景墙选用艺术纹理石材,搭配橙色绒面椅+白色布艺椅,用撞色提升视觉焦点;地面浅色深灰木纹墙、浅灰调地板、白纱+墨绿窗帘,用冷色调奠定沉稳克制的氛围; 亮点:焦糖橙绒布椅+奶白软包椅形成柔和撞色,既打破单调,又通过“绒布+布艺”的软质材质统一了温暖质感。 2. 材质:软硬+通透的层次平衡
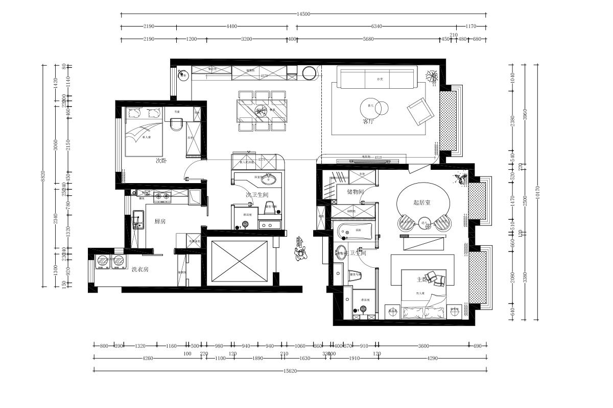
更多户型图灵感
这个空间是现代轻奢风格的休闲/接待角,设计核心是“用质感碰撞营造松弛的高级感”,以“轻社交+独处松弛”为核心功能,适配于住宅的客厅角落、酒店/办公空间的接待区,风格上融合现代极简的线条感与轻奢材质的精致感,既保持视觉高级,又兼顾体验舒适。设计元素的巧思 色彩:低饱和基底+高质感撞色基调。