×
北京
手机博洛尼 售前:400-6868-692 售后:400-666-3706
所在位置/首页优秀案例/禧瑞春秋
点击浏览下一张
案例信息
  • 楼盘名称
  • 案例风格
  • 禧瑞春秋
  • 轻奢
  • 案例户型
  • 服务店面
  • 案例面积
  • 设计师
  • 370㎡
  • 康明
案例说明

本设计以意式轻奢为核心风格,融合极简美学与精致质感,打造兼具高级感与舒适感的生活场域,整体设计既保留了意式风格的优雅与高级,又通过材质、线条的巧思,让空间在极简中透出精致,在冷静中藏着舒适。

客厅
更多客厅灵感

本空间为意式轻奢客厅,以黑白灰为底,浅木色柔化,皮革、大理石与金属细节碰撞出高级质感。利落几何家具加曲线灯艺,兼收极简造型与艺术氛围,软装少而精,让优雅与舒适同存。

餐厅
更多餐厅灵感

本意式轻奢餐厅以浅木、大理石与金属交织质感,圆桌加皮质餐椅显优雅线条,环形灯艺呼应空间韵律。嵌入式酒柜配灯光,壁炉与艺术装置点睛,冷调基底揉暖棕,让精致与松弛共生。

卧室
更多卧室灵感

本意式轻奢卧室以暖棕木与柔米色为底,软包床具衬出松弛质感,嵌入式灯光与极简置物区显精致。办公区与休憩区相融,暖调软装点缀高级细节,让空间兼具优雅格调与舒适实用性。

卧室
更多卧室灵感

本意式轻奢卧室以浅木与柔灰为基底,人字拼地板衬温润质感,软包床具搭暖棕软装显雅致。艺术装置与线性灯光添精致细节,柜区藏实用收纳,让空间在极简格调中兼具舒适与高级感。

卧室
更多卧室灵感

本意式轻奢卧室以浅木、柔白为基底,软包床具搭黑绒软装衬质感层次。玻璃衣帽间加嵌入式灯光显精致,线性灯与艺术摆件添细节,空间在极简线条中融舒适与高级,兼具收纳实用与雅致氛围。

书房
更多书房灵感

本空间以意式轻奢融合东方茶韵:浅木与大理石铺陈质感基底,几何线条吊灯衬出利落格调,茶器陈列柜配灯光显精致。栅格门柔化空间,软装简而雅,让轻奢的高级感与品茗的松弛感相融。

厨房
更多厨房灵感

本意式轻奢厨房以浅木与米白为基底,大理石纹衬出质感,玻璃柜加嵌入式灯光显精致。极简柜体藏实用功能,金属挂件添细节高级感,冷调家电与暖调木色平衡,让烹饪空间兼具优雅与高效。

卫生间
更多卫生间灵感

本意式轻奢卫浴以大理石为主调,浅木柜柔化冷感,悬浮设计显轻盈。弧形镜加金属细节衬出精致,嵌入式灯带与玻璃柜营造氛围,智能马桶添实用质感,让高级与舒适在卫浴空间相融。

影音室
更多影音室灵感

本意式轻奢影音室以深棕木与暖米色为调,悬浮吊顶加氛围灯带营造静谧高级感。模块化软包沙发衬出松弛质感,嵌入式酒柜藏精致细节,光影与材质交织,让观影空间兼具优雅格调与沉浸体验。

衣帽间
更多衣帽间灵感

本意式轻奢衣帽间以玻璃柜加嵌入式灯光显通透高级,深木与浅调软装平衡质感。菱格软凳衬优雅细节,梳妆区与储物区一体,既满足收纳实用,又以光影与材质交织出精致的更衣氛围。

户型图
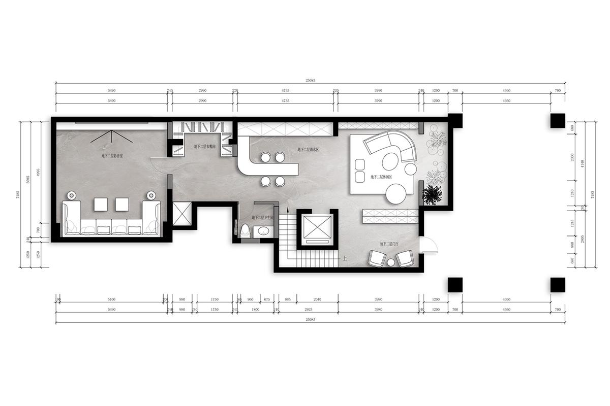
更多户型图灵感

本地下二层空间以意式轻奢为核,规划影音、餐厨、客厅等功能区,动线流畅。材质融木饰面与石纹,灯光嵌于细节,既保收纳实用,又以极简线条与精致软装,营造高级且松弛的休闲场域。

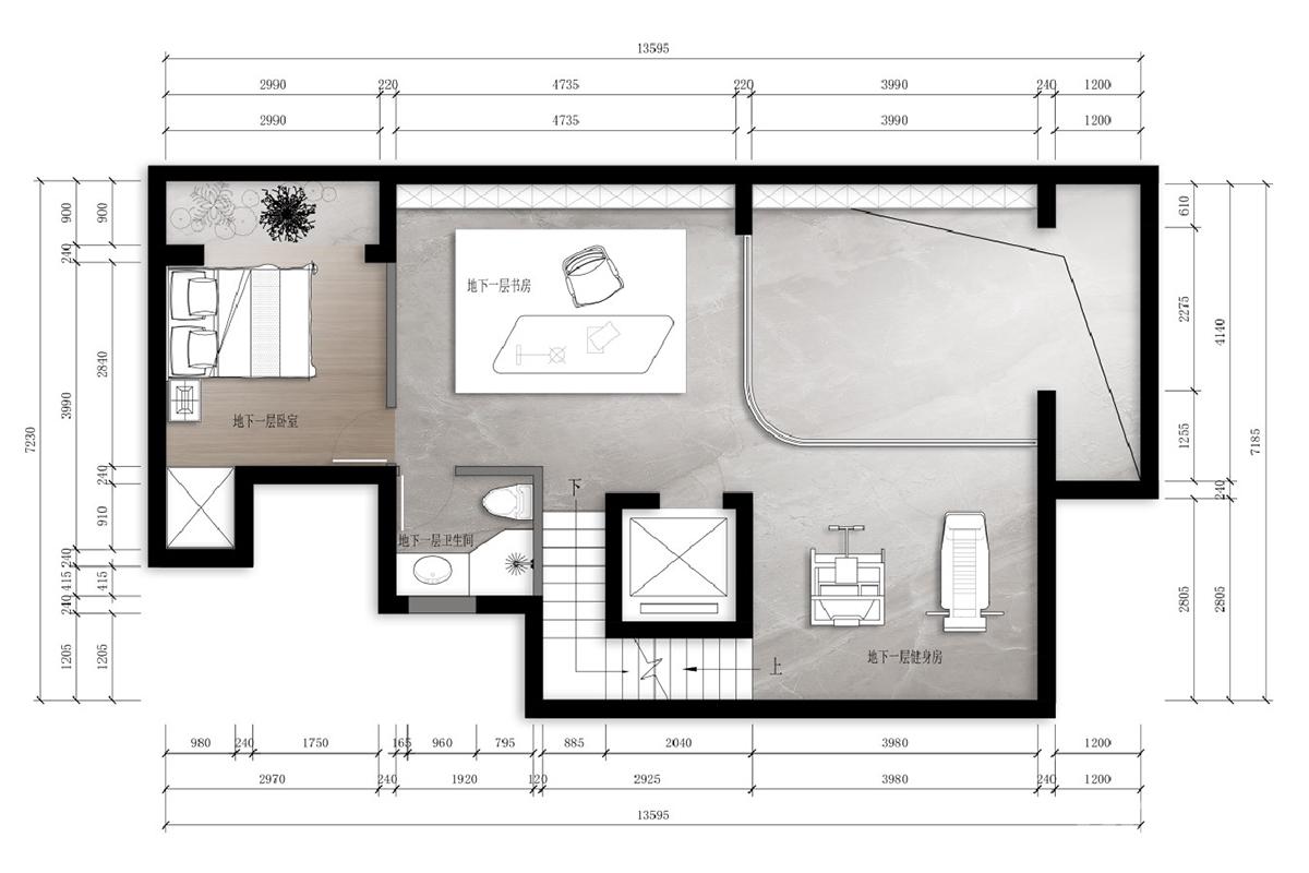
户型图
更多户型图灵感

本地下一层以意式轻奢规划起居、书房、健身等功能区,动线清晰。暖木与简约材质打底,灯光嵌于细节,既保休憩、办公、运动的实用分区,又以极简线条衬出松弛高级的休闲氛围,让功能与格调共生。

户型图
更多户型图灵感

本一层空间以意式轻奢串联起居、餐厨、休憩功能,动线流畅。暖调材质打底,客餐通厅显通透,阳台融自然氛围,极简线条衬出精致质感,既保日常实用,又以松弛高级的格调营造舒适居家场域。

户型图
更多户型图灵感

本二层以意式轻奢规划休憩、收纳等功能区,卧室、衣帽间与洗衣房动线紧凑。暖木基底衬出温润质感,卫浴双区设计显实用,极简柜体藏精致收纳,在松弛格调中平衡生活便利与高级氛围。

本案设计师

康明

特级主任设计师

  1. 168次
  2. 预约数
  1. 18年
  2. 从业年限
  1. 100套
  2. 作品案例

预约TA

轻奢风格的其它案例
更多

【案例】【西山御园】轻奢 五居室 300㎡

闫磊 闫磊 6 4382408浏览 这样装修多少钱?

【案例】【西山壹号院】轻奢 四居室 400㎡

谭为 谭为 9 1142209浏览 这样装修多少钱?

【案例】【宝坻时光小镇101】轻奢 别墅 220㎡

博洛尼 博洛尼 6 901257浏览 这样装修多少钱?

跃层/loft的其它案例
更多

【案例】【航天城小区】古典 跃层/loft 200㎡

博洛尼 博洛尼 10 2966275浏览 这样装修多少钱?

【案例】【上城郡】古典 跃层/loft 280㎡

博洛尼 博洛尼 7 522595浏览 这样装修多少钱?

【案例】【中海9号公馆御龙府】古典 跃层/loft 360㎡

博洛尼 博洛尼 9 4321879浏览 这样装修多少钱?