












轻奢风设计,并非是对奢华的盲目堆砌,而是在简约的基调之上,通过对品质、细节与质感的极致追求,营造出一种低调而精致、舒适且富有格调的生活氛围。
更多客厅灵感
这个客厅以高级灰、米白为主调,搭配金属线条与大理石纹理,奠定轻奢基调。简洁柜体加内嵌电视显利落,壁炉灯带与金属椅脚添精致,软装选质感布艺与简约摆件,在简约中透出低调奢华,平衡舒适与格调。
更多客厅灵感
这个客厅以深木色、大理石纹理为主调,金属线条勾勒柜体与家具,奠定轻奢质感。大尺寸布艺沙发显舒适,嵌入式灯带与精致摆件添精致,硬朗材质与柔和软装平衡,在简约空间里透出低调奢华,兼顾格调与实用。
更多餐厅灵感
这个餐厨区以白、灰为主调,大理石台面显质感,黑色玻璃柜加金色灯具添精致。木色家具与皮质软装柔化空间,弧形吊顶线条提升优雅感,嵌入式收纳兼顾实用。在简约布局里透出低调奢华,平衡了格调与日常餐厨功能。
更多卧室灵感
这个卧室以暖灰、深木为主调,软包床头显舒适,金属吊灯与精致摆件添轻奢质感。地毯的柔和色彩平衡空间,嵌入式收纳兼顾实用,自然光透过纱帘柔化氛围,在简约静谧中透出低调奢华,平衡休憩舒适与雅致格调。
更多卧室灵感
这个卧室以暖棕皮革床、浅调软包墙为主,金属线条与弧形灯添精致感。木纹与柔色软装平衡质感,嵌入式灯光柔化氛围,小摆件与纱帘衬出雅致。在简约休憩空间里,低调透出奢华质感,兼顾舒适与轻奢格调。
更多书房灵感
这个书房以浅木色、暖棕为主调,大理石台面加金属桌脚显质感,嵌入式灯带与金色吊灯添精致。软装选柔色座椅、格纹凳,搭配简约摆件与艺术画,在简约收纳空间里透出低调奢华,平衡办公实用与雅致格调。
更多厨房灵感
这个厨房以暖棕木饰面、浅灰石纹为主调,搭配黑白柜体显简约层次。黑色金属烟机、线条感吊灯添精致,软包凳的质感软装平衡冷硬材质,嵌入式灯光柔化空间,在实用餐厨区里透出低调奢华,兼顾格调与日常功能。
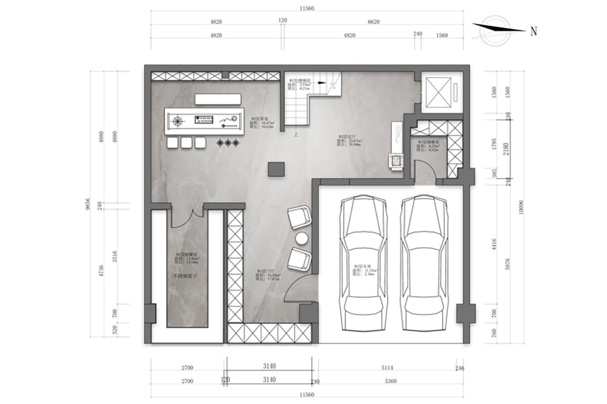
更多户型图灵感
此空间为双车位车库加休闲区布局,划分出停车、待客、储物功能区。以简约动线规划空间,预留不锈钢架子作收纳,休闲区设座椅提升实用性。整体布局紧凑高效,兼顾停车刚需与临时休憩功能,适配现代家庭的多元使用需求。
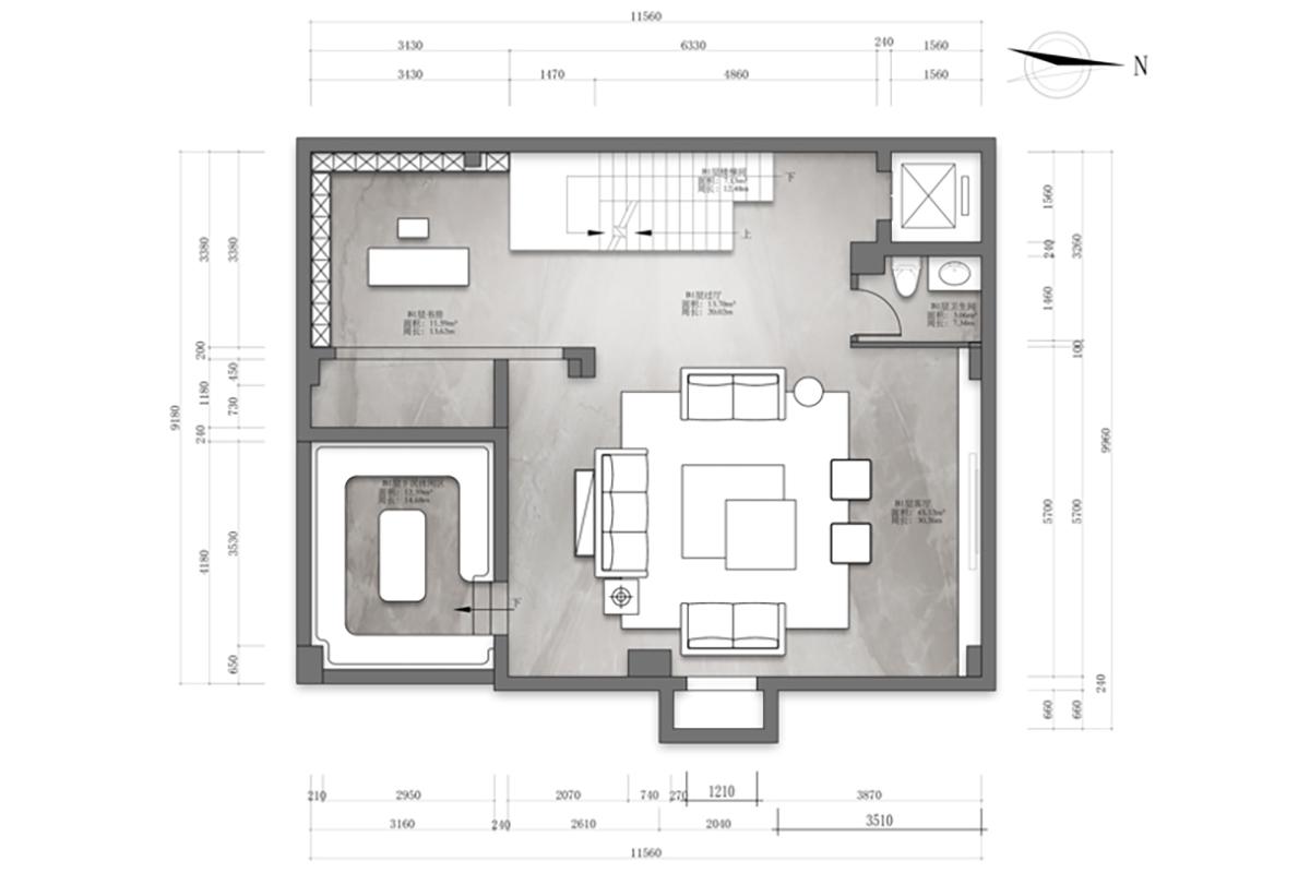
更多户型图灵感
此布局融合室内功能区与户外庭院,室内划分餐区、厨房、卫浴等空间,动线流畅;庭院设休闲桌椅与景观,延伸生活场景。整体内外联动,既满足日常起居,又借庭院提升休闲体验,适配舒适与社交的多元需求。
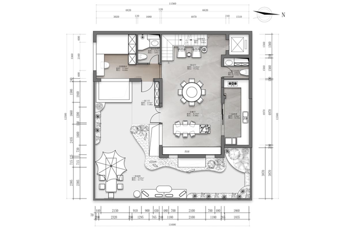
更多户型图灵感
此布局为二层居住空间,设双卧室、双卫浴及储物区,动线清晰且功能独立。卧室分区保障私密性,卫浴紧邻起居区提升便捷性,储物空间适配收纳需求。整体布局紧凑实用,兼顾休憩、洗漱与收纳功能,适配家庭日常居住的舒适需求。
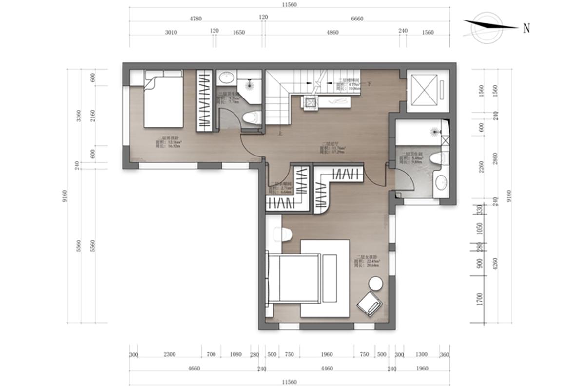
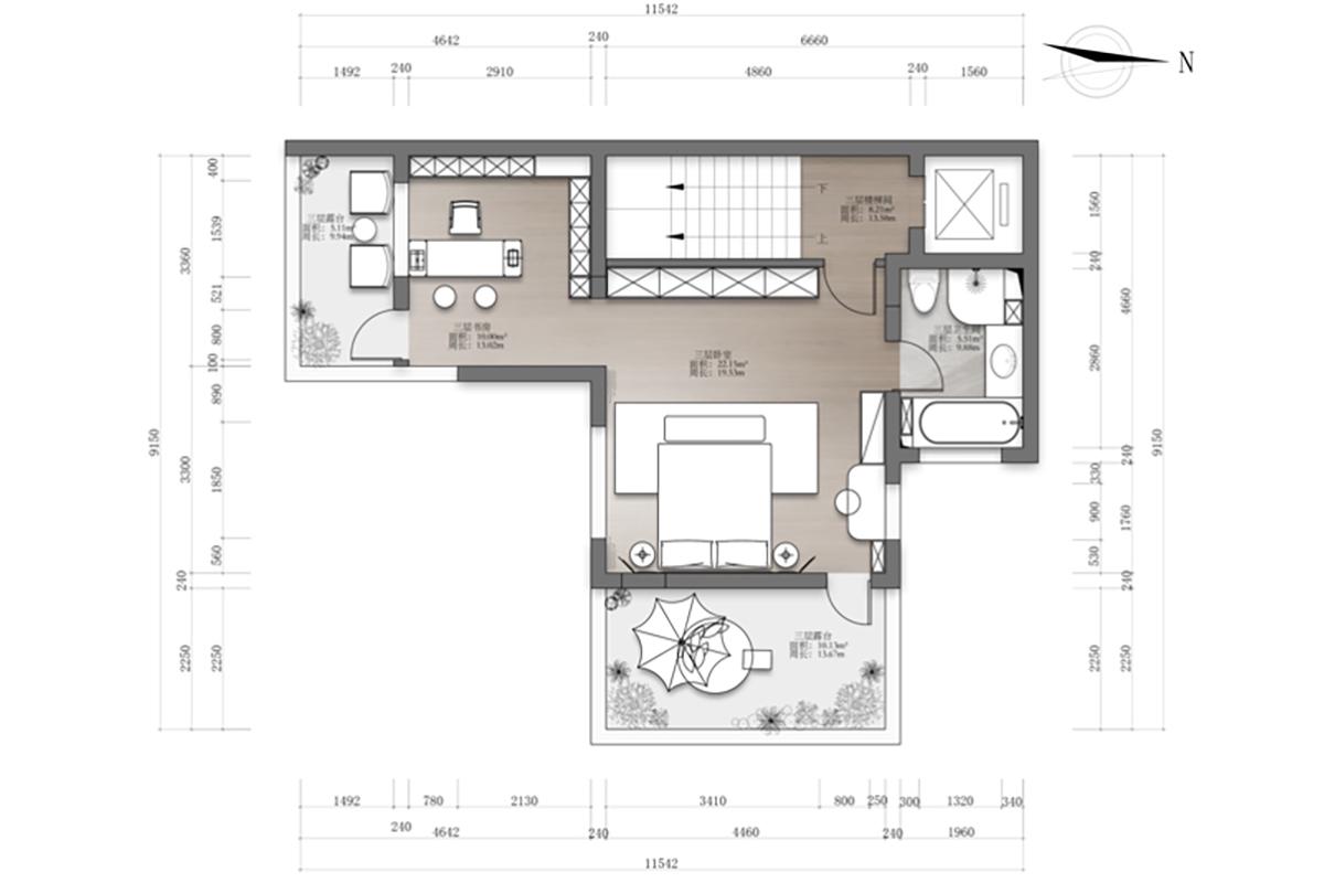
更多户型图灵感
此为三层居住空间,布局含卧室、卫浴、休闲区及露台,功能分区清晰。卧室配舒适卫浴,休闲区衔接露台,借户外空间延伸生活场景。动线流畅且私密性佳,既满足休憩刚需,又以露台提升休闲体验,适配舒适居住与放松需求。